Что собой представляет циркулярнаяпила
В быту и на производствециркулярнаяпиланеобходима для распиливания различных материалов(древесины, шифера, ГКЛ, мягкого металла, фанеры и т. д.). Этот ручной электрический инструмент (в стандартной комплектации) предназначен для выполнения прямолинейного распила глубиной от 40 до 140 мм (большинство выпускаемых производителями моделей позволяют выполнять пропил под прямым углом до 85 мм, но для строительных площадок есть линейка более мощного оборудования). При проведении операции устройство крепко держит в руках оператор и проводит пиление, двигаясь вдоль обрабатываемого изделия. При этом ограничений размеров заготовок по длине и ширине нет. Существует возможность пиления под углом к поверхности детали.
Устройство дисковой пилы
Модели пил различаются мощностью. Самые бюджетные устройства имеютмощность до 1,2 кВти предназначены для распиловки заготовок толщиной до 4,5 см. Они отлично подходят для бытовых нужд, проведения периодических работ в течение коротких промежутков времени и отличаются простотой и неприхотливостью. Если требуется выполнить пропил до 6,5 см, причем делать это нужно часто и подолгу, понадобится полупрофессиональный инструментмощностью до 1,8 кВт. Для выполнения производственных задач выпускается профессиональная техникамощностью до 2,2 кВт, выдерживающая длительные нагрузки и способная производить распил деталей толщиной до 8,5 см. Помимо этого, производится инструмент, предназначенный для использования на предприятиях по деревообработке, способный распиливать заготовки толщиной до 14,1 см. Егомощность доходит до 5,5 кВт, а вес — до 100 кг.
Цены на популярный модельный ряд циркулярных пил
Выбор модификации с учетом назначения
Выбирая диски для инструмента, требуется обращать внимание на их технические параметры
- Угол заточки зубьев. Мягкие материалы распиливают дисками, имеющими зубья с наклоном в сторону вращения диска. Для работы с металлом требуются модели с отрицательным углом заточки.
- Количество зубьев. Для пиления различных материалов следует подбирать диски с разным количеством зубьев: для мягких — модели с большим числом зубьев, для твердых — с маленьким. Например, для древесины минимальное количество зубцов — 24.
Маркировка дисков включает данные о его диаметре и размере посадочного гнезда
Для использования циркулярной пилы в течение длительного периода времени важно, чтобы она не слишком много весила, была эргономичной, а диски — хорошо заточенными. Держать в руке агрегат долго — совсем не просто
Усталость оператора способна привести к снижению качества пиления. Поэтому многими мастерами, работающими с пилами, практикуетсяустановкаих на стол.
Циркулярные пилы часто устанавливают на стол
Смысл такого устройства заключается в закреплении корпуса пилы под столешницей так, чтобы над столом оказался один лишь диск для пиления. Заготовка передвигается по столешнице и распиливается вращающимся диском. Такое стационарное приспособление значительно облегчает труд и позволяет проводить непрерывную работу без потери качества и быстро. Производителями предлагается большое количество моделей пил, размещенных на столах. Самостоятельное изготовление конструкции позволяет не только сэкономить средства, но и получить в распоряжение агрегат в соответствии с собственными требованиями.
Сделатьстолдля циркулярной пилы несложно
Цены на популярные модели сварочных аппаратов
Конструкцию необходимо покрасить, чтобы придать ей эстетичный внешний вид и защитить от коррозионных процессов. В каркасе останется сделать отверстия для монтажа столешницы.
Также стол можно изготовить из бруса или досок сечением 10 х 5 см. Для сборки каркаса понадобятся металлические уголки, шканты и саморезы.
В качестве основания для циркулярной пилы можно использовать и старую мебель, например офисный стол. Необходимо лишь, чтобы его база была прочной. В большинстве случаев стандартные размеры таких конструкций вполне подходят для проведения работ по распиловке древесины. Но саму столешницу рекомендуется установить новую. Как вариант — склеить два листа фанеры толщиной 1,2 см. Такой толщины будет вполне достаточно для установки пилы весом около 5 кг.
READ Лобзик электрический deco пилит криво что делать
Можно склеить 2 листа фанеры
После изготовления основания можно приступать к самому важному этапу — подготовке поверхности и установке пилы. Таблица
Что может понадобиться для проведения работ
Таблица. Что может понадобиться для проведения работ.
| Инструмент, приспособление | Фото |
| Электролобзик | |
| Шуруповерт | |
| Дрель | |
| Шлифовальная машинка | |
| Фрезерный агрегат | |
| Рулетка | |
| Угольник |
Особенности сборки циркулярки своими руками из болгарки
Дисковая пила найдется далеко не в каждой домашней мастерской, а вот болгарку имеет практически любой хозяин, который выполняет определенные работы в домашнем хозяйстве своими руками. Для создания стационарной пильной установки также понадобится верстак или специальный стол, крепиться инструмент будет снизу, подобно дисковой пиле.

Крепление к болгарке выполняется с использованием болтов.
А вот далее процесс сборки несколько сложнее. Чтобы сделать из болгарки циркулярку своими руками, как показывает практика, необходимо хорошо продумать вариант крепления ручного инструмента к станине.
Это может быть следующий способ:
- На болгарке натягивается металлический ленточный хомут, стяжка которого должна быть внизу.
- Сложенная вдвое полоска из металла крепится к отверстиям для скользящего упора.
- В редукторе электроинструмента проделываются отверстия. Предварительно корпус разбирается, намечаются места просверливания.
- При помощи проделанных отверстий крепится дополнительно изготовленная осевая рукоять.
Рукоять можно изготовить из металлической трубки или прута. Заготовке нужно придать форму скобы. В тех местах, с помощью которых она будет крепиться к редуктору, также необходимо проделать отверстия. Большая и серьезная помощь для изготовления циркулярки из болгарки своими руками – чертежи. Они позволят правильно рассчитать размеры и количество элементов, не допустить ошибки при расчете мест креплений. Если выполнить схему будущего агрегата самостоятельно затруднительно, можно воспользоваться уже готовыми чертежами, предложенными в интернете.

Чтобы сделать из болгарки циркулярку, необходимо хорошо продумать вариант крепления инструмента к станине.
Мини циркулярная пила своими руками
Для распиливания деталей небольшого размера можно изготовить мини-станок без рабочего стола.
В качестве электропривода для распилочного механизма может послужить старая дрель. Специальный вал для вставки в патрон дрели придется заказать у токаря. На него должен прочно насаживаться зубчатый диск и 2 подшипника.
Каркас для установки вала изготавливается из двух параллельных отрезков доски твердых пород древесины с отверстиями для запрессовки подшипников. Рабочую поверхность можно изготовить из оргалита или оргстекла. Дрель и каркас устройства крепятся к доске толщиной 30-40 мм.
Инструмент, установленный вверх ручкой, должен быть надежно закреплен хомутом к основанию в цилиндрической части корпуса около патрона. Доска, служащая основанием мини-циркулярки, притягивается к обычному столу струбцинами. Корпус перевернутой дрели и плита основания должны находиться на одном уровне.
Направляющую планку для мини-циркулярной пилы можно изготовить из бруска 50×50 мм.
На одном конце его жестко закрепляется упор, выпиленный из доски. Он должен прилегать к торцу рабочей поверхности. В другой торец направляющей планки закрепляется шпилька с резьбой.
На нее надевается второй упорный элемент (брусок) через высверленное в нем отверстие. Упоры стягиваются с помощью закручивания на шпильке гайки-барашка. Направляющий ограничитель устанавливается на необходимое расстояние от диска и закрепляется по типу струбцины.
По вашему усмотрению самодельную циркулярную пилу в простом исполнении вы можете усовершенствовать установкой дополнительных элементов и применением других материалов. Улучшить функционал станка можно оборудованием его кареткой для подачи материала, изменением крепления рабочего механизма, установкой других дополнительных устройств для управления пилой.
Наличие в домашнем хозяйстве необходимого минимума инструмента для несложных работ вполне оправдывает необходимость иметь в обиходе небольшой ящик с самыми простыми инструментами.
А вот когда возникает необходимость провести простой ремонт или реализовать давнюю мечту о небольшом хобби, вот тогда и возникает необходимость в покупке или самостоятельном изготовлении несложного, но очень нужного столярного инструмента – стационарной циркулярной пилы.
Практическое применение подобного рода инструментов у разных мастеров проходит по-разному, в одном все сходятся однозначно, это то, что такой станок просто необходим в парке домашнего инструмента.
В практическом плане стационарная циркулярная пила необходима:
- для продольного роспуска древесины;для обрезки краев не обрезной доски для получения ровных сторон;для получения одинаковых по размерам планок, реек, досок;для выборки части доски (четверти) для создания плотного соединения досок в щит.в чисто хозяйственном плане циркулярка, просто необходима для резки дров из отходов деревообрабатывающего производства.
Вместе с тем в случае если к вопросу оборудования станка подойти творчески и приложить немного больше усилий, то в результате может получиться станок с целым набором универсальных функций:
- пиления;шлифования;строгания;сверления;заточки инструмента.
Дополнительная важная информация
Столярные работы требуют особого внимания. В случае, если вы желаете сделать высококачественный и высоконадёжный стол своими руками для циркулярной пилы, то хорошо подготовьтесь к работе.
https://youtube.com/watch?v=yvZMoDqyktg
Выполняйте следующее:
Приобретите все без исключения нужные материалы и приборы. После установки каркаса в обязательном режиме установите его на ровную плоскость и проверьте, чтобы крышка конструкции не перевешивала в какую-либо сторону. Установить столик для циркулярной пилы правильнее в том участке, где он и будет находиться в дальнейшем, чтобы устранить вероятные проблемы, сопряжённые с неровностью полов. Если из-за шероховатого пола столик вибрирует в процессе работы, то необходимо подкорректировать длину ножек, применяя уплотнённый материал либо резину. Столешница продукта может быть как единой, так и складывающейся
Для того чтобы сформировать складывающийся столик для пилы, будет необходимо потратить чуть больше времени и самого материала и уделить внимание увеличению прочности станины, пребывающей в разобранном состоянии. Размеры материала, применяемого для создания стола, формируются опытным путём
В идеале уровень конструкции должен соотноситься с ростом мастера. Отверстие, которое будет выполнено в столешнице, должно отвечать размерам определённой пилы, имеющейся в наличии. Чтобы продлить период службы всех применяемых материалов, собранных в общую конструкцию, необходимо подвергнуть их обработке специальными химическими веществами, способными увеличить рабочие свойства дерева либо металла (к примеру, уберечь их поверхность от ржавчины, гниения, возникновения плесени и т. д
). Обрабатывать дерево либо железо правильнее на улице, а не в помещении, чтобы не получить отравление интенсивными испарениями.
д. ). Обрабатывать дерево либо железо правильнее на улице, а не в помещении, чтобы не получить отравление интенсивными испарениями.
Вдохновившись этой статьёй, вы сможете сделать прочную подставку для циркулярной пилы в виде столика.
Ручное устройство из угловой шлиф машинки
Множество работ производится популярным инструментом «болгарка». Из данного инструмента получится незаменимая хозяйству циркулярная пила, сделанная своими руками. Достаточно изготовить скользящий упор из подручного материала. Конструкция предполагает наличие двух небольших отрезков уголков, которые располагаются параллельно диску. Соединение происходит с использованием болтов, зазор регулируется поставочными шайбами.
https://youtube.com/watch?v=gM0UDc25VxA
Ленточный хомут устанавливается таким образом, чтобы расположение винта находилось снизу. Следом присоединяется полоса метала с отверстием, в другом случае, конструкция может быть единой, но так теряется толщина металла. Следующий шаг это пропил отверстий в корпусе, через которые крепится рукоятка для выполнения основных работ. Рукоятка, сделанная своими руками, представляет собой рог или скобу, за основу берется металлический прут или труба. Стоит учитывать и клепку, если концы будут расслаблены, возможен прогиб рукоятки во время механического воздействия на нее.
Что необходимо для создания
Чтобы приступить к работе, необходимо тщательно подготовиться.
Материалы и инструменты
Для самодельного стола потребуется прочное металлическое или деревянное основание. Некоторые мастера предпочитают делать столы из алюминия, стали.
Работать с большими объемами древесины обычной циркуляркой сложно, поэтому ее лучше установить на стол.
Важно! Древесину обязательно обрабатывают специальным средством, которое обладает антисептическим составом, чтобы предотвратить процессы гниения. Материалы, которые потребуются в процессе работы:
Материалы, которые потребуются в процессе работы:
- основа, толщина которой не меньше 22 см;
- брусья для усиления и изготовления опоры (можно использовать обрезную доску в количестве 5 штук);
- деревянные шканты, размером в 10 см (для работы потребуется 12 штук и больше);
- столярный клей;
- крепежи из металла (не меньше 4 штук, а точное количество зависит от габаритов и длины стола);
- металлические уголки в количестве 10 штук;
- саморезы.
Перед работой нужно подготовить инструменты. Для отметок берут карандаш или маркер, метр, рулетку, электрический лобзик, фрезер ручной модели. Чтобы обработать дерево, потребуется шлифовальная машина, наждачная бумага разного уровня зернистости, которая убирает зазубрины.
Современный электролобзик оснащается встроенным средством защиты, электронными регулировками скорости, гасителями уровня вибрации и шума.
Также необходим рубанок, дрель и шуруповерт. Материалы и инструменты готовят заранее, располагают на рабочем месте.
Дело пойдет куда легче, если пользоваться шуруповертом.
Определение дизайна и конструкции
Чтобы выбрать дизайн, необходимо определиться с материалом основания. Для деревянных столешниц подходят листовые породы деревьев, которые отличаются устойчивостью к процессам гниения при правильной антисептической обработке. В основании делают специальное отверстие под диск.
Стол для дисковой пилы можно соорудить самостоятельно, точно придерживаясь определенной схемы.
Для деревянного основания используют крепкую станину из четырех козлов, досок размером в 50х150 мм. Она должна быть устойчивой для обеспечения безопасности. Для работы не подходят кривые или гнутые листы металла, потому что существует высокая вероятность получения травмы.
Сооружение собственными руками элемента позволяет сделать пилу максимально подходящей под индивидуальные условия.
Можно сделать простую конструкцию или оснастить ее расклинивающим ножом съемной конструкции. Дополнительно выполняют дисковую защиту, чтобы рабочая стружка не летела на человека, который будет работать за столом. Чтобы делать распил под углом, необходимо добавить детали для регулирования наклона диска.
Можно подогнать изделие по нужному размеру, распределить все так, чтобы удобно было именно вам.
Для циркуляции делают направляющую каретку стола. Она включает в себя следующие элементы:
- направляющие брусья;
- фанеру;
- пропил;
- бортики для надежного упора;
- планка съемной конструкции.
После выбора дизайна конструкции, необходимо сделать чертежи стола для дисковой пилы своими руками.
Собственноручно созданная модель будет единственной в своем роде, что делает ее уникальной.
Чертежи и схемы
Обратите внимание! Чертеж нужен для предотвращения ошибок в процессе работы. В первую очередь делают расчет размеров, чтобы перенести их на картон
В нем делают отверстие, которое должно подойти к габаритам пилы. Перед созданием чертежа и схемы нужно купить режущий инструмент. Универсальные отверстия в этой конструкции не предусматриваются, потому что они не смогут обеспечить максимальную устойчивость, безопасность и выдержку больших нагрузок
В первую очередь делают расчет размеров, чтобы перенести их на картон. В нем делают отверстие, которое должно подойти к габаритам пилы. Перед созданием чертежа и схемы нужно купить режущий инструмент. Универсальные отверстия в этой конструкции не предусматриваются, потому что они не смогут обеспечить максимальную устойчивость, безопасность и выдержку больших нагрузок.
Сделать стол для циркулярной пилы вполне по силам каждому мастеру.
Можно оставить немного дополнительного места для инструмента или деревянных заготовок. Подходящие габариты: 120х120 см.
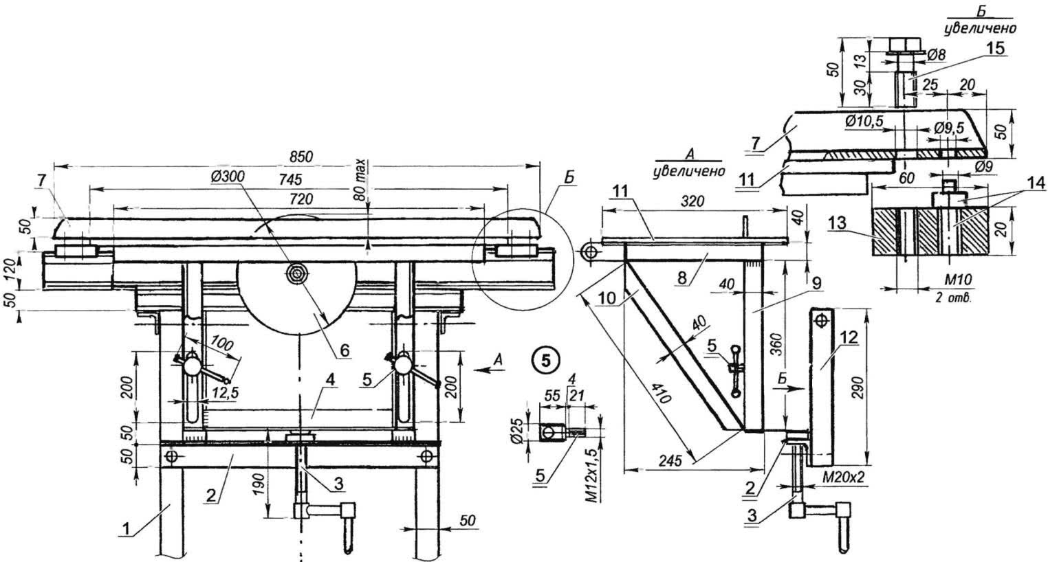
Пример чертежа столика для циркулярной пилы:
Сложностей в процессе не возникнет, если тщательно изучить вопрос.
Схема с подробным описанием и размерами:
Стол изготавливают с учетом того, что ручной инструмент будет установлен и закреплён на столе, превратившись при этом в стационарное оборудование.
Материалы изготовления
Станину и столешницу можно сделать из деревянных досок. Основные требования, предъявляемые к материалам — прочность, легкость обработки, хорошее качество. Можно использовать разные породы дерева.
|
Разновидность древесины |
Достоинства |
Недостатки |
|
Дуб |
Прочность, устойчивость к внешним воздействиям |
Сложность обработки дома |
|
Клен |
Мягкость, податливость |
Повышенная восприимчивость к влаге |
|
Ель |
Дешево стоит |
Быстро рассыхается |
Покупные станки для распиловки, как правило, изготовлены из нержавеющей стали. Они удобны, функциональны, а также не теряют своих рабочих качеств в условиях повышенной влажности воздуха. Однако, стоимость такого оборудования высокая; есть смысл приобретать их только для работы с ДСП в промышленных масштабах. К тому же, срок службы деревянного распиловочного стола точно такой же, как у металлического изделия. Все это следует учитывать при выборе материала.
Для изготовления столешницы можно использовать фанеру хорошего качества. Она должна быть идеально ровной. Размеры зависят от габаритов ручной циркулярной пилы, размещаемой на платформе. Пазы, в которые потом вставляют инструмент, делают при помощи фрезера.
ДубКлёнЕльСталь
Этапы работы
Циркулярная пила довольно опасный инструмент. Распиловочный стол должен иметь такое расположение, чтобы пила находилась ровно по центру, без смещения центра тяжести. Исходя из составленных схем на доске делается разметка карандашом, а затем лобзиком выпиливается основание. После этого полученную столешницу нужно тщательно прошлифовать для придания гладкости.
https://youtube.com/watch?v=NDMyS1Inchw
После проделанных работ столешница переворачивается и на внутренней стороне наносится разметка для углубления под подошву циркулярки. Фрезером создают углубления. Пила устанавливается в самодельный стол, тщательно крепится и проверяется на прочность.
https://youtube.com/watch?v=zQlfcCut7eg
Ножки для ручной циркулярки крепятся в последнюю очередь. Размеры, так же как и высота, зависят от мастера, главное их качественно закрепить на болты и саморезы. Ставить их нужно слегка враспор, а контролировать прочность с помощью все тех же ребер жесткости.
Отделочные работы
Финальным аккордом станет облагораживание вашего самодельного стола. Обязательным этапом в этой процедуре станет покрытие поверхности лаком циркулярного стола. Сначала шлифуйте поверхность наждачной бумагой до гладкости материалов. По желанию можете выполнить тонировку стола. Далее, берём лак и при помощи ватной губки с марлей наносим лак на все поверхности циркулярного стола, а особенно тщательно на столешницу.
Так вы обеспечите стойкость поверхности к износам и притупите выделения природных запахов деталей стола
Не менее важно, что после обработки и покрытия лаком, поверхность станет максимально гладкой и приятной. Это обеспечит удобный рабочий процесс и оставит ваши руки в безопасности от болезненных скалок
В дополнение можно покрасить весь стол в ваш любимый цвет, и он будет радовать глаз во время труда.
Рекомендуем: Ремонт перфоратора своими руками – не так страшен процесс, как это кажется!
Как видите, самодельный, и в то же время регулируемый циркулярный стол создать проще простого. Вам нужно лишь подойти к данному вопросу со всей ответственностью и энтузиазмом. Главный совет — всегда перепроверяйте замеры во избежание ненужных растрат на покупку новых материалов и т.д. Следуйте всем вышеперечисленным советам, и, вы наверняка выполните задуманное и создадите себе идеальное рабочее место для работы с пиломатериалами.
Под этой статьей мы для вас оставили одно из наиболее удачных видео с подробным пошаговым описанием всего процесса. Приятного просмотра.
Как сделать своими руками — пошаговая инструкция
Алгоритм (порядок действий) при сборке такого станка:
Во-первых. Следует определиться с размерами (длина, ширина, высота). При выборе размеров рабочего стола учитывается размер основного количества заготовок, которые придется пилить. Под небольшие заготовки большой стол не нужен. Учитывается и расположение в мастерской: как и где расположить станок, уместится ли он.
Пример деревянного каркаса:

Все заготовки нарезаются по длине и проводится сборка.
Как пример, простейший стол на фото:

Основные шаги и последовательность сборки:
- Собирается каркас.
- Устанавливается и крепится пила.
- Примеряется и размечается место пропила под диск на листе рабочего стола.
- Делается пропил по тщательно выполненной, проверенной разметке.
- Ставится и крепится рабочий стол.
Но надежнее установить пилу на отдельные несущие уголки или прочные бруски.
Более детальная инструкция не имеет смысла, так как крепления могут быть выполнены по-разному. Для представления, как можно сделать простейший станок, предлагаем посмотреть интересное видео.
https://youtube.com/watch?v=nobZTokVRSc
Станок на видео полностью выполнен из разобранной старой мебели, то есть из бросового материала. Но следует учесть, что это ламинированное ДСП, скорее всего, советского образца, которое отличалось прочностью. Минус такого материала – может использоваться только в сухом помещении. При высокой влажности или попадание воды любое ДСП разрушается.
Процесс производства стола
- Из листа фанеры нужно вырезать столешницу требуемого размера. Разметку наносят на нижнюю область с применением металлической линейки и карандаша. Раскраивают фанеру лобзиком, края при необходимости фрезеруют. Если фанера не ламинированная, плоскость стола зачищаем шкуркой.
- Перекладывают и с нижней части делают разметку для крепления циркулярки ручного типа. Для этого с прибора убираем диск и ставим его подошвой в необходимое место. Осуществляем отметки на столешнице и в основании под крепёж и отверстие для пильного диска. Просверливают отверстия под болты. Они будут скручиваться сверху под столешницу и внизу держаться гайками. Поэтому с края рабочей плоскости отверстия зенкуют, а шляпки болтов заравнивают, чтобы они не выступали.
- В случае если намечается резка материала под разными углами, прорезь под пильчатый круг производится в форме опрокинутой трапеции. Для прямого пиления производится обыкновенный паз. Перед тем как обозначить прорезь и отверстия для крепежа, нужно приложить пилу, откорректировать отметки и только затем вырезать.
- Нанесите карандашом зоны расположения рёбер жёсткости. Их делают из досок и устанавливают внизу в 8−9 см от кромки самой столешницы. Ножки стола нужно фиксировать к рёбрам. Ребра закрепляются саморезами с интервалами 15−25 см, в дополнение проклеиваются ПВА. Саморезы вкручиваются поверх, под столешницу, головки целиком утапливаются. Ребра между собою скрепляются саморезами.
- Ножки делают из бруса либо доски, их протяжённость составит от 100 до 113 см. Значительную устойчивость придадут ножки, расходящиеся вниз. Их фиксируют на крупные болты, скрученные снаружи, внутри укрепляют гайками. Стяжки из бруса упрочат каркас.
- Для того чтобы корректировать высоту стола, внизу прикрепляются гайки, в которые подвинчиваются болты М14. Теперь же можно снизу закрепить пилу, пропустив накопитель в подготовленную прорезь.
- Прикрепляем на стол электророзетку, пускаем от неё электрический кабель и ставим выключатель. Питание к розетке будет передаваться от выключателя. От него протягиваем кабель к ближайшему источнику в мастерской. С поддержкой строительной стяжки фиксируем клавишу ВКЛ-ВЫКЛ на корпусе круговой пилы в утопленном состоянии.
- Приступим к производству вспомогательных упоров. Для упора потребуется алюминиевая труба квадратного разреза № 30 и 2 винта с гайками-барашками. Отпиливаем кусочек трубы по протяжённости столешницы, в 3 см от края делаем отверстия под винты. С кусочков фанеры выпиливаются 2 прижима. Система готова.
- Для обработки поперёк стола осуществляем салазки из фанеры. Их ровняем относительно кромок стола, придавливаем и продвигаем вдоль зубчатого круга. В участке прохода круга пропиливаем отверстие. Небольшие составляющие можно класть непосредственно внутрь салазок и распиливать. Отвод пыли будет из-под стола, но значительная часть ее при этом будет все же разлетаться вверх, поэтому хорошо дополнить приспособление верхним пылеотводом.
Работа на круговой пиле очень опасна, по этой причине необходимо побеспокоиться о защите пальцев. С куска дощечки либо мебельного щита вырежьте толкатель.
https://youtube.com/watch?v=uvIiT8OsSE8
Дополнения к сделанной конструкции
Некоторые мастера, собирая стол для ручной циркулярной пилы согласно уникальным чертежам, целиком убирают заводской предохранительный кожух, а заводскую платформу замещают самодельной. В случае если не намечается распиловка под углом, можно убрать и все приспособления для регулирования наклона диска. Электропила закрепляется непосредственно на новом основании, что даёт возможность выиграть пару миллиметров глубины пропила.
Без внутреннего кожуха легче убирать диск, электропила не так будет забиваться стружкой при работе с влажными дощечками. Демонтаж потребует лишнего времени, однако сохраняется ресурс мотора, предупреждается перегруженность.
Монтаж дисковой пилы
Дело осталось за малым. Циркулярная электропила располагается внутри приготовленного отверстия. Подошва укрепляется на болты, а зубчатый накопитель должен свободно входить в гнездо.
Стол для круговой пилы практически готов. Теперь же его необходимо подвергнуть обработке защищающим от влажности материалом, затем покрыть лаком в несколько пластов (для минимизации скольжения).
Полученная система может быть дополнена чем-либо на усмотрение пользователя (предохранительный чехол, приспособление для регулирования наклона диска, каретка и прочие).
https://youtube.com/watch?v=VDQri9PQiac
Конструкция циркуляционной пилы, станок из дисковой пилы Байкал
Обычный стол, который можно приобрести в комплектации с плитой циркуляционной, выполняют в большинстве случаев из нержавеющего железа. Умельцы используют простую сталь, а опорную конструкцию сваривают из металлических уголков. Диск, режущий древесину, крепится во внутренней части стола, на валу с подшипниками, а подача механической энергии производится посредством ременной передачи. В плите находится разрез для диска, который со всех сторон окружен деревянной опалубкой, а с внутренней части стола регулируется винтами. Зазор между столом и режущим диском, должен быть несколько миллиметров, иначе опилки в работе будут забиваться в щель, и приводить к неисправности агрегата. Зазор настраивается в зависимости используемых дисков.Каждый старается выполнить чертежи циркулярного стола своими руками, чтобы сделать универсальный и хороший стол для деревообработки, но недостаток знаний может сыграть плохую шутку.
https://youtube.com/watch?v=Bzrdma8Ge44
Видео:
Расчет параметров
Во избежание издержек и несуразностей, строго соблюдайте основные параметры изложенных материалов, и вы сделаете качественный стол столярный своими руками. Когда мы собираем стол для ручной циркулярной пилы своими руками, необходимо учитывать мощность электродвигателей, которые будут применены. Если вы собираете стол для ручного фрезера своими руками также необходимо учитывать производительность мотора.
Для более глубокого понимания конструкции и схемы изделия, просмотрите сюжет про столярный стол своими руками видео которого выложено на сайте. При учете того, что стол будет универсальным, необходимо делать конструкцию максимально устойчивой и прочной. Выполняют умельцы чертежи стола под фрезер своими руками, но если конструкцию сваривать будет другой человек, необходимо в деталях объяснить, чтобы в итоге все элементы находились в нужных местах. Можно отдельно не изготавливать фрезерный стол для ручного фрезера своими руками, поскольку большинство мастеров, сделав универсальный стол, работают на нем и ручными инструментами. Это очень удобно, поскольку места для работы хватает, все находится под рукой и продуктивность повышается.
Расчет мощности
Чтобы смастерить хороший стол для дисковой пилы своими руками, нужно совершить правильный расчет мощности, при соотношении силы электродвигателя и предполагаемой работы. То есть, для комфортного распиливания различных пород древесины, достаточно поставить электродвигатель 1000-1200 Вт. Эксперты не советуют использовать более мощные двигатели, поскольку это большой риск. При необходимости значительных мощностей и производительности установки, следует делать конструкцию стола более основательной и совершенной. При должном подходе, многие умельцы создают стол для ручного фрезера своими руками, гораздо лучше и продуктивнее, нежели модели от брендовых производителей.
Для более точного понимания, просмотрите сюжет, как сделать фрезерный стол своими руками видео которого находится в открытом доступе для просмотра. Индустриальные станки, как указывалось выше, полностью выполнены из металла, а нижняя часть, дополнена бетонной плитой, для большей надежности крепления агрегата. Стол для циркулярки своими руками, умельцы изготовляют целиком из металла или в дуэте с деревянными элементами.
Рекомендации по упрощению сборочного процесса
Для регулирования натяжения ремня электродвигатель необходимо устанавливать так, чтобы его можно было перемещать. Проще всего достичь этого созданием прорезей большего размера, чем требуется под крепежные болты мотора. При этом расширение отверстий должно выполняться по направлению натяжения ремня.
Если полностью следовать чертежу, то понадобится сделать более сложный механизм натяжения ремня. Процесс будет осуществляться за счет подтягивания платформы с электродвигателем с помощью шпилек и фиксации ее стопорными болтами в нужном положении (на чертеже эти конструктивные элементы обозначены цифрой 10).
Всю конструкцию и процесс сборки можно значительно упростить, если сделать циркулярку из дисковой пилы. В таком случае необходимость в монтаже ряда деталей (двигателя, диска, вала, ремня, пускателя) отпадает. Но возможности созданной модели будут ограничены мощностью использованного инструмента.
Самодельную циркулярку в любом случае необходимо заземлить. Также в щитке дополнительно рекомендуется установить устройство защитного отключения или дифференциальный автомат. Эти мероприятия защитят от поражения электрическим током, если корпус станка окажется под напряжением, например, из-за пробоя изоляции проводов. Комплектующие для электрической части циркулярного станка лучше выбирать так, чтобы они были пригодны для ремонта и просты в обслуживании. Свободный доступ к узлам оборудования поможет без проблем заменять вышедшие из строя детали.
https://youtube.com/watch?v=jr-OfPzMefk
Простая циркулярка из болгарки или дисковой пилы
Углошлифовальная машинка (болгарка) – один из самых востребованных инструментов домашнего мастера, с ее помощью несложно резать металл, зачищать сварные швы. Кроме того, используя вместо штатного абразивного диска диск для дерева, болгарку можно превратить в ручную дисковую пилу (ее называют также паркеткой), а изготовив станину со столиком – в стационарную циркулярку.
Необходимые принадлежности
Для работы понадобится:
- многослойная фанера толщиной 10 мм и более;
- выключатель и провод;
- болты со шляпкой под потай;
- шурупы;
- деревянный брусок 40х40 мм.
Читать также: Подключение светодиодной ленты сечение провода
Также надо подготовить дрель или шуруповерт, молоток, отвертку, плоскогубцы, линейку и карандаш. С помощью этих инструментов предстоит сделать своими руками циркулярку.
Конечно, надо не забыть саму болгарку или ручную дисковую пилу. На первом этапе она поможет раскроить материал, а после займет место в качестве рабочего органа циркулярки.
Последовательность действий
Первым делом изготавливается корпус циркулярки. Для этого отлично подойдет толстая фанера, можно использовать любые прессованные древесные плиты. Потребуется вырезать четыре прямоугольных листа, размер 40 х 80 см. Из них собирается короб с квадратом 80 х 80 см в основании. В углах для простоты сборки и надежности конструкции устанавливают четыре бруска.
Сверху полученный короб закрывается столешницей. Ее можно изготовить из той же фанеры, но лучше использовать какой-либо листовой материал с ламинированным покрытием. Это гарантирует долговечность станку, обеспечит удобство эксплуатации самодельной циркулярки.
В столешнице делают пропил для выхода диска, по бокам от него сверлят отверстия для крепления инструмента.
Болгарку необходимо надежно зафиксировать под столешницей. Конструкция фиксатора может быть самой разнообразной, все зависит от конфигурации самой машинки. Основное требование к креплению – оно должно надежно удерживать болгарку, не позволяя ей смещаться.
Простейшее крепление может выглядеть так: два металлических угольника, между ними стальным хомутом фиксируется болгарка.
Для дополнительной прочности рекомендуется задействовать резьбу боковой рукояти, в нее ввинчивается болт с подходящей резьбой.
В верхних полках угольников, удерживающих болгарку, сверлят по два отверстия. Конструкцию с помощью болтов с потайными головками крепят снизу к столешнице. Останется только заблокировать кнопку включения, подключить болгарку через внешний выключатель.
Таким же образом можно изготовить своими руками циркулярку из дисковой пилы. В данном случае работа заметно упрощается благодаря тому, что не нужно придумывать крепление. Достаточно сделать вырез под диск, просверлить отверстия по отверстиям плиты ручной дисковой пилы.





