Как сделать бутовый фундамент своими руками
Работы по возведению делятся на несколько циклов, каждому из которых нужно подойти с ответственностью:

- отрывка котлована и уплотнение основания;
- кладка ниже уровня земли;
- кладка выше уровня земли;
- гидроизоляция и засыпка фундаментов.
Каждый этап имеет свои особенности.
Земляные работы
Избежать данного этапа позволяет лишь устройство здания на винтовых сваях.
Перед началом работ на местность выносят разметку осей или расположения ленты фундамента.
При наличии в здании подвала котлован устраивают под всю площадь здания. Если подвал не предусмотрен, вырывают траншеи под стены. Ширина траншеи принимается больше, чем ширина фундамента по обрезу, так как бутовая конструкция имеет трапециевидную форму в разрезе, то есть утолщается снизу.
Для определения глубины отрывки котлована необходимо знать глубину промерзания грунта. Она приводится в нормативных документах для каждого типа местности.Грунт вынимают на 20-30 сантиметров ниже промерзания. На этой дополнительной глубине укладывают подушку из крупнозернистого песка, которая образует ровное основание и играет роль дренажа.
Удаленный грунт оставляют неподалеку, он понадобится на завершающем этапе работ.
Необходимые инструменты и материалы:
- экскаватор или специальные машины для разработки грунта, при большой глубине залегания фундаментов;
- лопата для доработки грунта;
- доски для укрепления стенок котлована или траншеи;
- песок крупнозернистый для песчаной подушки;
- вода для проливки песка при уплотнении;
- полиэтиленовая пленка, укладываемая поверх песчаной подушки для предотвращения попадания влаги в фундамент.
Кладка стен фундамента

Снизу укладывают самые крупные камни. Второй ряд кладется с обеспечением перевязки, то есть верхний камень опирается на два нижних. Перевязку обеспечивают как в продольном, так и в поперечном направлении.
В качестве связующего состава для камней используют цементно-песчаную смесь. При приготовлении на три части песка используют одну часть цемента. Пустоты между камнями заполняют щебнем с «тощим» бетоном жидкой консистенции.
Кладка выше уровня земли выполняется из самых ровных камней. Обычно высота цоколя составляет 50-60 сантиметров. Необходимо такое же обеспечение перевязки, как и при укладке нижних слоев.
Инструменты и материалы для выполнения работ и их примерная стоимость:
- бут – от 500 рублей за тонну;
- цементно-песчаный раствор – от 2800 рублей за кубометр;
- щебень и бетон марки М100. Цена за щебень составит от 300 рублей за метр кубический, а на бетон от;
- кельма и растворная лопата. В сумме обойдутся в 200-300 рублей;
- отвес, шнур-причалка и строительный уровень для контроля вертикальности и горизонтальности кладки. Отвес можно сделать самостоятельно. Цены на строительный уровень начинаются от 1300 рублей;
- прямоугольная и остроносая кувалды для разбивки и сколки камней, обе можно приобрести за 1000 рублей. Существуют двухкомпонентные кувалды, способные заменить сразу и прямоугольную, и остроносую, цена от 500 рублей.
Рассчитать необходимый вес бутового камня несложно: достаточно объем умножить на плотность. Нужный объем определяют, перемножив длину стен фундамента на их толщину и на глубину залегания. Плотность камня от 1800 килограмм на метр кубический.
Расход раствора составляет 0,3-0,4 кубометра на 1 метр кубический кладки.
Закончив кладку, засыпают пазухи грунтом, оставшимся после отрывки котлована. Работу производят послойно, тщательно уплотняя каждый слой. Поверх засыпанного грунта устраивают отмостку на влагостойком основании. Она устраивается вдоль всего периметра здания и может быть выполнена из бетона, асфальта, брусчатки или тротуарной плитки.
https://youtube.com/watch?v=m6jDQWTKd8k
После засыпки пазух выполняют гидроизоляцию стен. В отличие от всех остальных ленточных фундаментов, бутовый камень не требует вертикальной защиты, что уменьшает трудоемкость и снижает затраты на материалы.
От попадания излишней атмосферной влаги фундамент защищает отмостка. Для защиты материала наружных стен по обрезу конструкции выполняют горизонтальную гидроизоляцию. Для этого применяются рубероид, гидроизол или линокром, уложенные в два слоя. Эти материалы представляют собой основание, пропитанное вяжущим веществом. Самым дешевым вариантом станет рубероид, это кровельный картон с битумом. Линокром и гидроизол более современные материалы.
Рулон рубероида площадью 15 квадратных метров будет стоить от 300 рублей, цены на гидроизол начинаются от 35 рублей за метр квадратный, а на линокром от 55 рублей.
Качественно выполненные фундаментные работы способны обеспечить очень большой срок эксплуатации бутового фундамента, который прослужит нескольким поколениям.
Столбчатые фундаменты
Столбчатые фундаменты применяются в следующих случаях:
— при каркасной системе здания;
-при большой несущей способности грунта
и небольших нагрузках от здания;
-для малоэтажных зданий и глубине
залегания грунта основания более
В приведенных случаях столбчатые фундаменты экономичнее ленточных. В каркасных зданиях столбчатые фундаменты
располагаются под каждой колонной каркаса (рис.3.11, 3.15). В зданиях с несущими стенами столбчатые фундаменты
располагаются под углами стен, на пересечениях и примыканиях внутренних стен к наружным и под простенками через
1,5 – 6 м. По обрезу столбчатых фундаментов укладывают фундаментные балки (рандбалки) из металла но обычно из железобетона. Рандбалки предназначены для передачи нагрузки от стен на фундамент (рис.3.12,3.13).
По конструктивному решению столбчатые фундаменты могут быть монолитными и
сборными (рис. 3.14).
По форме сечения – ступенчатые и «с подушкой». Сборные фундаменты могут быть стаканного типа– под колонны каркаса и сборные из железобетонных плит под кирпичные столбы (рис.3.14, рис.3.15).
Под кирпичные столбы столбчатые фундаменты могут быть из бута, бутобетона и глиняного кирпича.
Площадь подошвы столбчатого фундамента определяется по расчету.

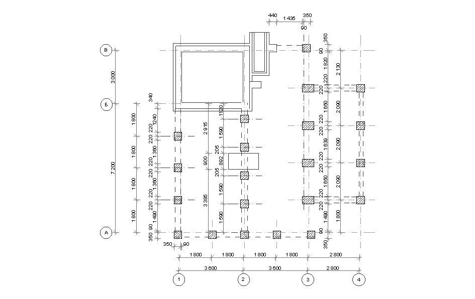
Рис.3.11. План
столбчатого фундамента каркасного
здания

Рис.3.12. Столбчатые железобетонные
сборные фундаменты под стены:
а
— для одно- и двухэтажных каменных зданий;
б — для деревянных рубленных, каркасных
и щитовых зданий; 1 — отмостка; 2 —
фундаментная балка; 3 — песчаная или
шлаковая подсыпка; 4 — железобетонный
столб 200х200мм;
5
— кирпичный цоколь деревянного здания;
6 — столб из сборных железобетонных
блоков

Рис. 3.13. Схемы фундаментных балок
столбчатых фундаментов:
1-
стена; 2 — балка; 3 — столб; 4 — каменная
стена; 5 — деревянная стена;
6
— сборная балка; 7 – сборные перемычки;
8 — монолитная балка;
9
— рядовая армокирпичная балка; 10 —
армокирпичная балка со стальным каркасом;
11 — деревянная балка; 12, 13 — деревянная
балка из клееной древесины




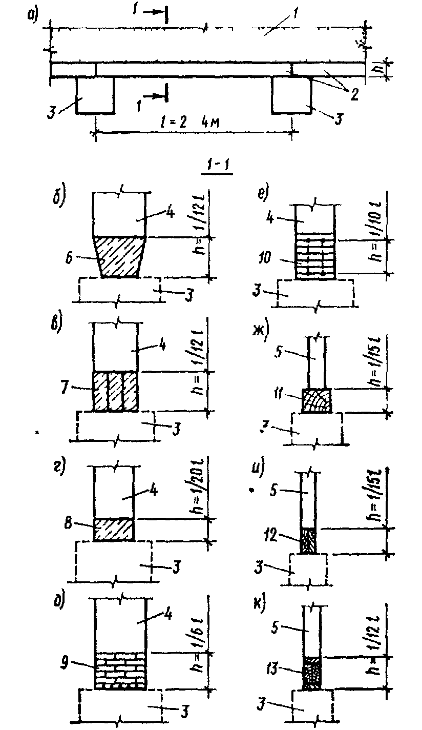
Рис.1.14. Столбчатые фундаменты:
а
– бутовый или бетонный под кирпичный
столб (общий вид); б – то же, разрез и
план; в – то же из сборных железобетонных
блоков-подушек; г – то же, из железобетонной
плиты; д – стаканного типа под
железобетонную колонну; 1 – кирпичный
столб; 2 – бутовый или бутобетонный
фундамент; 3 – сборные железобетонные
блок- подушки; 4 – колонна; 5 – башмак
стаканного типа; 6 – блок- башмак; 7 –
опорная плита
а) б)

Рис.
3.15. Фундаментная часть крупнопанельного
каркасного здания:
А
— разрез по фундаменту; б- общий вид и
план фундамента стаканного типа; 1-
песчаная подсыпка; 2 — башмак стаканного
типа; 3 — колонна; 4 — цокольная панель; 5
— заливка цементным раствором;
6
— подкладные фундаментные плиты
Бутобетон фундамент
Предельный угол a выполняются, как правило, в опалубке . Пластичность бетона должна обеспечивать свободное втапливание камней без трамбования. Составы растворов для каменной кладки стен и фундамента показаны в табл.4 здесь ниже. Заполнитель утапливают в раствор послойно с трамбованием.
Бутобетонный ленточный фундамент: выбор камня, пошаговая инструкция от Сделай сам из вилок
3. Организация работ при кладке бутовых и бутобетонных фундаментов. Кладку бутовых фундаментов можно начинать лишь после выполнения всех подготовительных работ.
Вибрирование кладки фундамента, возводимого в траншее, отрытой в плотных грунтах, допускается только при выполнении кладки враспор со стенами траншей.
Работы по устройству фундаментов должны выполняться в соответствии с требованиями. СНиП Земляные сооружения, основания и фундаменты СНиП Несущие и ограждающие.
Если верхняя часть фундамента называется обрезом, то нижняя — подошвой. Высотой фундамента называют расстояние от его подошвы до обреза
ВНИМАНИЕ!
На осаженный слой камня укладывают новый слой бетонной смеси и после вибрационного уплотнения в него вновь втапливают камни и т.д.
Толщина стен подвалов из бутобетона принимается — не менее 35 см, размеры сечения столбов не менее 40 см. Фундаменты стен.
ВНИМАНИЕ! Прямоугольное сечение бутобетонного фундамента по высоте допустимо лишь при небольших нагрузках на фундамент и достаточно высокой несущей способности грунта. Стационарные столбчатые или отдельные бутовые фундаменты имеют вид отдельных опор, устраиваемых под стены. Варианты устройства ленточных и столбчатых бутобетонных фундаментов
Варианты устройства ленточных и столбчатых бутобетонных фундаментов
Стационарные столбчатые или отдельные бутовые фундаменты имеют вид отдельных опор, устраиваемых под стены. Варианты устройства ленточных и столбчатых бутобетонных фундаментов.
Стационарные фундаменты ;
- Песок ;
- Цемент М-500/М-400.
В зависимости от того, сколько в бетонном растворе содержится воды, его можно разделить на:
Технология бутобетонного фундамента предполагает использование пластичного бетонного раствора. Так, жесткая смесь легко укладывается вибратором и сохраняет форму, тогда как пластичная смесь форму не сохраняет и плохо растекается, не до ровной поверхности. Пластичную смесь очень легко утрамбовывать, применяя самую обыкновенную лопату. Отличительная черта литых смесей состоит в том, что при растекании они формируют ровную поверхность горизонтали.
Заливка фундамента зимой и технология бетонирования в зимнее время
Как выполняется бутобетонная кладка зимой?
Прочность бутобетонной кладки зависит от прочности входящего в ее состав бетона. Если бутобетонную кладку возводить методом замораживания, то в период оттаивания прочность ее будет практически равна нулю. Поэтому замораживание бутобетона допускается лишь после того, как прочность бетона в нем достигнет 50% проектной, но не менее 7,5 МПа. Это возможно, если будет применяться способ «термоса» (при больших объемах бетонных работ) или электропрогрев бутобетона.
Каковы особенности закладки фундаментов в зимних условиях?
При кладке фундаментов зимой основание предохраняют от промерзания, как во время производства работ, так и по окончании их, иначе просадка основания при оттаивании может привести к появлению трещин в кладке. Зимой нельзя устраивать и выравнивать основание песчаными слоями толщиной, превышающей 100 мм, так как при большой толщине искусственного песчаного основания возможны неравномерные осадки, трещины в фундаментах и стенах здания. При возведении фундаментов способом замораживания разрешается использовать кирпич, камни правильной формы и блоки. Допускается также возводить стены из постелистого бутового камня, если расчетом подтверждено, что они выдержат нагрузку в период оттаивания.
Как производить бетонирование фундаментов в зимних условиях?
Лучше бетонирование фундамента в зимнее время поручить специалистам. В зимнее время применяются следующие методы: бетонирование методом «термоса»; бетонирование в термоактивной опалубке; обогрев бетона термоактивными гибкими покрытиями; обогрев бетона инфракрасными излучателями; введение противоморозных добавок. Например, по технология бетонировании фундаментов методом «термоса» бетонную смесь погружают в термоизолированную опалубку. При электропрогреве (сквозном и периферийном) конструкция должна постоянно контролироваться с помощью контрольно- измерительных приборов. Разновидностью электропрогрева является электротермообработка бетона греющими кабелями и проводами. Самым перспективным способом является выдерживание бетона в термоактивной опалубке. Теплота передается через палубу щита в поверхностный слой бетона, а потом распространяется по всей толщине.
Преимущества
Положительные качества ленточного фундамента заключаются в следующих его параметрах:
- этот вариант наиболее просто изготавливать;
- при сооружении легких строений, оказывающих незначительную нагрузку на почву, лента является наиболее экономичным способом подготовки основания;
- такой тип конструкции без проблем удается утеплить, изолировать от насыщения влагой;
- эту конструкцию удобно выполнять из железобетонных блоков, максимально сокращая время строительства;
- ленточный фундамент прекрасно выдерживает значительные температурные перепады;
- основание доступно для самостоятельного изготовления, оно не требует привлечения посторонних мастеров;
- при монтаже ленты внутри грунта не требуется сооружать опалубку.
Анализ грунта – этап первый
От грунта, на который будет установлен фундамент, так же как и от качества строительных материалов, используемых вами, зависит долговечность и устойчивость фундамента. Грунт под вашим гаражом должен быть равномерно снижаем и прочным. Ни в коем случае, он не должен оползать, проседать или вспучиваться.
Это моет привести к появлению на стенах фундамента трещин и его осадке. Так что не стоит выбирать грунты, которые имеют примеси пылевого песка, глины, торфа, они могут при намокании образовать плавуны. А, вот вспучиваются супеси, глинистые грунты и лессовые, при замерзании.
Ленточный бутобетонный фундамент будет для вас наиболее оптимальным вариант, при условии, что у вас не тяжелый грунт.
Такая конструкция поможет сэкономить денежные средства и, с легкостью, будет поддерживать наземную конструкцию. Если вы запланировали постройку с использованием тяжелых материалов, то такой фундамент вам использовать не рекомендуется. В данном случае, ваши планы сэкономить приведут к большому разочарованию.
Именно поэтому, перед началом строительства следует не поскупиться и заказать анализ грунта на площадке под строительство.
Если вы будете иметь на руках готовый анализ, то вы смоете правильно подготовить почву к строительству гаража. В таком случае он не подмокнет после первого дождя, не потрескается, и не сползет. Ну, и, наверное, само главное, при таком исследовании вы твердо сможете для себя решить, следует ли вам строить такой фундамент или все-таки не стоит рисковать.
Общая информация
Особенность возведения бутобетонного фундамента заключается в том, что для его кладки необходимо применять природный камень. Материал должен быть прочным, крупным, без сколов и трещин. К буту относятся следующие скальные и горные породы:
- песчаник;
- базальт;
- известняк;
- доломит;
- гранит;
- плотный ракушечник;
- диорит.
Чтобы организовать надежный бутобетонный фундамент своими руками, то первоначально надо проверить качество камня: следует по нему стукнуть молотком. Если стройматериал прочный, то при ударе он не расколется. Кроме того, существует искусственный блочный бут, формы и размеры которого имеют определенную пропорцию. Но такое сырье используют во время проведения облицовочных работ, а для строительства основания его применяют редко.
Перед тем как начинать возведение бутобетонного фундамента, нужно правильно подобрать марку бетона и породу камня. Чтобы сократить стоимость строительных работ, рекомендуется покупать материалы в тех магазинах, которые доставляют сырье не из дальних мест: транспортировка природного камня обходится дорого. При проектировании необходимо учитывать тот факт, что ширина основания должна быть на 10 сантиметров больше наружной стены здания. Кроме того, следует знать: такой фундамент лучше возводить на прочной почве.

Как сделать?
При выполнении работ по возведению бутового фундамента следует придерживаться пошаговой инструкции, а также приобрести все необходимые материалы и инструменты:
- песок и щебень;
- цемент;
- каменная порода;
- емкость для раствора;
- штыковая лопата, кельма;
- строительный уровень;
- отвес и трамбовка.
Щебень будет использован для заполнения пустот, которые возникают в ходе укладки камней, песок нужен для приготовления раствора, а также обустройства подушки внизу даже при условии неглубокого заложения фундамента. Чем меньше по размерам бут, тем большее количество его понадобится для основания. Кроме того, для работ потребуется гидроизоляция. В качестве такого материала может быть использован рубероид или любая другая продукция.
Технология укладки бутового фундамента включает в себя выполнение таких работ:
Устройство траншеи
Стоит обратить внимание, что ее ширина должна составлять не меньше, чем 2,5 метра. Обусловлена подобная необходимость большими размерами породы
Лента основания получится около 0,5-0,6 м.
С внутренней стороны ленты оставляется отступ около 0,7 м, с наружной – 1,2 м. Такая особенность поможет в работах по передвижению опалубки. Внешний зазор заполняется песком.
Для бетонирования с укладкой породы опалубку необходимо выполнять по размерам, соответствующим высоте цоколя здания.
Внутренняя поверхность досок укрывается пленкой, которая предотвратит вытекание бетонного раствора сквозь имеющиеся зазоры между планками. Кроме того, она не даст древесине впитывать в себя влагу из состава.


Укладка бутового камня производится по такой схеме:
- после укладки пленки на дно выполняется заливка раствора;
- на него укладывается два ряда камней, следует подбирать элементы схожие по размеру;
- далее заливается слой раствора, который необходимо разровнять;
- выполняется перевязка наружной или же внутренней стороны тычковым рядом;
- после этого кладка выполняется продольными слоями;
- углы конструкции перевязываются породой.
Для повышения этого показателя используются различные добавки, например, пластификаторы для бетона или же моющие составы.


Бетонирование фундамента с камнем выполняют по следующей схеме:
- на дно траншеи заливают слой бетона, его толщина должна составлять около 300 мм;
- после чего укладывают камень, слой породы должен быть 200 мм;
- чтобы погрузить породу в состав, необходимо воспользоваться арматурным прутком или же специальным инструментом;
- оставшиеся 500 мм основания заливаются без укладки породы. Для армирования конструкции используют стальные прутья.


Особенности бутовых фундаментов
По сути, современный бутовый фундамент – это кладка из камня на цементном растворе. Чтобы он получился надёжным, мало знать технологию его возведения. Нужно учесть характер грунта на участке строительства, выбрать качественный бут, определиться с типом основания, рассчитать количество необходимого материала.
Камень – основа фундамента
Наиболее пригодными для устройства фундамента являются плоские камни – плитняк. Это различные горные породы со слоистой структурой. При разработке карьеров они раскалываются на пластины разной толщины и формы. Практически параллельные плоские грани позволяют вести кладку с минимальным расходом раствора. А неповторимая неправильная форма каждого элемента – создавать оригинальную фактуру поверхности.
Для возведения фундаментов используют такие распространённые и недорогие породы бута, как:
- известняк;
- сланец;
- туф;
- доломит;
- песчаник; ракушечник.
Плоский камень самый удобный для кладкиИсточник tildacdn.com
Также допускается применение речного булыжника, но его округлая форма усложняет кладку, требуя устройства опалубки.
Виды бутовых фундаментов
Из камня можно делать ленточные и столбчатые фундаменты. Последние подходят только для хозяйственных построек, бань и лёгких каркасных домиков. Сложенные из камня столбы устанавливают под углами здания, на пересечении внутренних и наружных стен, и соединяют их обвязкой-ростверком, являющимся основанием для возведения стен.
Столбчатый бутовый фундаментИсточник remont-domov.by
Для капитального жилого дома лучше делать ленточное основание. Оно подходит для зданий с подвалом, в два и даже три этажа. Так как армировать бутовый фундамент нет необходимости, то при условии расположенного поблизости карьера он обходится дешевле железобетонного монолита, и обладает не меньшей прочностью.
Технология сооружения бутобетонного ленточного фундамента
Бутобетонный ленточный фундамент требует тщательной подготовки траншей и сборки опалубки
Собирая ее своими руками необходимо учесть отсутствие металлического каркаса, обратить особое внимание на обустройство подушки и тщательность заливки раствора. Посмотрите видео, как заложить фундамент из бутового камня
Технология выполнения строительных работ проста:
Для обустройства подушки на дне траншеи из двух слоев песка и мелкого щебня делают подушку. Основательно пролив ее водой, трамбуют.На этой подушке возводят бутобетонный ленточный фундамент, начиная с заливки первого 15 сантиметрового слоя бетона, который закрывают гидроизоляцией.
Для первого ряда выбирают булыжник, чтобы не повредить изоляционный материал.Без помощи машин, своими руками складывают крупные камни поверх застывшего раствора. Булыжники не должны вдавливаться и соприкасаться. Образовавшиеся между ними пустоты заполняет смесь, приготовленная из трех частей песка и одной части цемента марки М500.
Ширина такого основания составляет не менее чем 50 сантиметров, но постепенно кладка становится немного уже и на уровне начала цоколя шири фундамента составляет уже 30 сантиметров. Высота всей конструкции зависит от определенной высоты цоколя. Это значит, что при глубине 1,5-2 метра и высоте цоколя 70 сантиметров высота самого фундамента составит около 2,5 метров.Опалубка, сохраняющая форму основания, выставляется с использование большего количества поперечных перемычек, удерживающих щиты.
Каждый очередной слой камней закрывается раствором до середины. После его застывания следующий слой камней укладывают так, чтобы было похоже на обычную кладку.
Верхний слой полностью покрывают раствором, а после его окончательного застывания с помощью цементной смеси выводят ноль, делая фундамент по уровню. Работы по возведению бутобетонных фундаментов проводят в теплое время года, но при высокой температуре воздуха необходимо кладку закрывать от солнечных лучей и регулярно увлажнять. Постепенное высыхание снизу вверх позволит избежать растрескивания.
(Пока оценок нет)
https://youtube.com/watch?v=fp1o-BuLEykrel%3D0%26amp%3Bcontrols%3D0%26amp%3Bshowinfo%3D0
- betonopedia.ru
- fundamentt.com
- www.banidom.ru
- fundamentaya.ru
Постройка бутового фундамента – описание технологии
Кладка требуемой нам конструкции выполняется в несколько стадий:
- Расчищаете земельный участок.
- Копаете траншею нужных размеров. Ров необходимо делать с небольшим запасом. Выдерживайте дистанцию между границей будущего фундамента и краями стен (несущих) возводимого дома на уровне 15–20 см. Глубина траншеи – ниже отметки промерзания земли в вашей местности.
- Делаете опалубку из досок. Она предохранит ров от опадания в него грунта. Опалубочная конструкция демонтируется сразу после заливки и схватывания бетонной смеси.
- Обустраиваете на дне ямы 30-сантиметровую песчаную подушку. Песок нужно засыпать отдельными слоями, трамбуя каждый из них.
- Настилаете внахлест на сделанный пирог листы рубероида. Они станут отличным гидроизолятором для фундамента.

Создание фундамента из бутового камня
После этого начинайте укладывать бут. Его обязательно смачивают водой перед началом работ. Тогда камни станут хорошо сцепляться с цементной смесью
Обратите внимание! Камни нельзя укладывать в траншею вплотную один к одному. Оставляйте небольшой зазор между отдельными кусками бута
Сама технология кладки простая. Вам нужно запомнить, что короткую сторону бутовых камней называют тычком, а длинную – ложком. В одном ряду ложок должен чередоваться при укладке с тычком. Общую толщину кладки обычно принимают на уровне 0,6–0,7 м. Для жилого дома этого вполне достаточно. Монтаж камней выполняется при помощи небольшой кувалды либо массивного молотка.
Ленточный фундамент из бута: устройство и расчет

Глубину закладки основания рассчитывают с учетом максимальных минусовых показателей и особенностей рельефа территории. Чем ниже температура зимой, тем сильнее и глубже промерзает почва, тем, соответственно, глубже нужно закладывать бутовый фундамент.
Для одноэтажного дома из легких материалов (каркасные, деревянные дома) достаточно закладывать основание на глубину в 50 сантиметров, для 2-3-этажных зданий – до 1 метра, тяжеловесные постройки требуют фундамента глубиной 1.5-2 метра.
Ленточный фундамент делают на 20 сантиметров шире внешней стены и на 50 сантиметров шире стены внутренней. В соответствии с периметром будущего здания, шириной стен, глубиной закладки рассчитывают нужный объем камня. Если основание строят на сухой почве, глиняный раствор замешивают в пропорции 1:5, для влажного грунта понадобится цементно-глиняная смесь, приготовленная в пропорции 1:1:9 (цемент : глина : песок).
https://youtube.com/watch?v=ZhPUvaA-VsY
https://youtube.com/watch?v=H_iw6ZpP6Vc
https://youtube.com/watch?v=AbV3a-aLxYY





