Особенности выбора
При выборе двери в гардеробную необходимо соблюдать следующие рекомендации:
- предпочтение следует отдавать моделям известных брендов;
- гарантийное обслуживание — договор поможет избежать долгих поисков нужной детали при поломке двери;
- проверка комплектации — в комплекте должны присутствовать все детали;
- предварительное измерение размеров двери — обеспечит идеальное совпадение параметров проема и полотна;
- материал изготовления профиля (алюминий и сталь), стальные стоят дешевле, но со временем могут начать издавать шум при открывании и закрывании;
- установка замка с защелкой — рекомендована при наличии в квартире маленьких детей.
При выборе двери для гардеробной следует обращать внимание на ее стоимость. Конструкция не может быть слишком дешевой или дорогой, предпочтение следует отдавать моделям среднего ценового сегмента
Варианты готовых планировок для гардеробной комнаты
При выборе планировки гардеробной комнаты, после того как вы определитесь с ее габаритами, надо решить, каким будет их размещение и подробно продумать все детали. Даже в маленьком помещении, размеры которого не более двух квадратных метров, можно оборудовать вместительную и удобную гардеробную.
Независимо от размеров этого помещения, в нем обязательно надо делать вентиляцию, иначе будет неприятный запах и может повышаться влажность.
Гардеробная комната – планировка с размерами 2х2
Даже в планировке маленькой гардеробной комнате с размерами 2х2 каждому члену семьи надо выделить отдельное место для хранения вещей для избежания путаницы. То, что используется редко, укладывается в дальние углы, для хранения костюмов и платьев купите чехлы. Даже если есть окно и естественное освещение, все равно надо предусмотреть искусственный свет, так как пользоваться этой комнатой вы будете не только днем. Лучше устанавливать не выключатель, а датчик движения, тогда в темноте не надо будет искать где включается свет.
площадью 2 кв м
Даже в таком маленьком помещении можно разместить всю одежду, которая есть у вас дома. Одним из вариантов компоновки является установка шкафа с полками по центру, а с обоих боков устанавливаются штанги для вешалок с одеждой.

Если размеры комнаты маленькие, то под потолком можно разместить полки, на которых будут лежать разные вещи. Для большей практичности такой гардеробной, с одной стороны рекомендуется разместить много небольших полок, а на противоположной стене тумбу с выдвижными ящиками.
Планировка гардеробной комнаты 3 кв м
Это самый распространенный размер гардеробных комнат, которые можно обустроить в большинстве наших квартир. В этом случае, для хранения вещей используются полки разного размера, выдвижные ящики, вешалки-штанги, которые могут быть как стационарными так и выдвижными. Удобно, когда есть ниши для небольшой одежды.
На три квадрата

Если комната размером 3 м2, то в ней рекомендуется использовать встроенную в полку вешалку-штангу. Это позволит сэкономить пространство, так как на полке вы будете размещать одежду, а на штанге хранить вещи на плечиках. Можно также обустроить шкаф выдвижными ящиками и обычными полками. А ниша для вешалок с одеждой делается сбоку.
Планировка гардеробной комнаты 4 кв м
При размерах комнаты 4 м2, кроме того, что в ней будут храниться вещи, есть уже достаточно свободного пространства, чтобы в центре организовать место для переодевания. Кроме этого, в такой гардеробной можно отдельно поставить тумбу для хранения обуви.
На четыре квадрата

Хотя помещение размером 4 м2 и не очень большое, но в нем можно хранить много различной одежды, обуви и других вещей. При выборе компоновки такой гардеробной, необходимо сразу определиться, какие именно вещи вы в ней будете сберегать и в зависимости от этого, делать больше полок для небольшой одежды или больше вешалок для платьев костюмов.
Освещение и отделка
Выгодно обыграть имеющуюся площадь можно не только при помощи аксессуаров, но и освещением
Описанные светильники зрительно приближают стены, только уменьшая пространство.
Удачно продуманное освещение создаст в прихожей уютную обстановку
В подвесной потолок можно встроить светодиодные светильники, а рядом с зеркалом повесить пару стильных бра
Выбор должен основываться на рациональности и практичности. Потому отличным вариантом становится точечный свет. Можно дополнить помещение изящными моделями бра. Организовать естественное освещение в коридоре не получится. Поэтому стоит сделать максимально светлой комнату, используя искусственный свет. Чтобы не утяжелять атмосферу и вид, рекомендуется выбирать легкие и прочные материалы для отделки.
Как лучше расположить?
Площадь 4 квадратных метра позволяет выбирать разные варианты расположения гардеробной комнаты. Изначально стоит выбрать место для ее создания. Самыми распространенными вариантами являются следующие: ниша, кладовка, балкон, чердак, мансарды и угол в любой комнате.

Самое важное правило – обеспечить хорошее освещение и вентиляцию. Света должно быть достаточно, чтобы вы без труда выбирали одежду и примеряли ее
Вентиляцию необходимо оборудовать достаточно для 1 человека. Так одежда будет всегда свежей, внутри не появится плесень или грибок. Не оборудуйте приточную вентиляцию из ванной или кухни, чтобы ткань не пропиталась посторонними запахами.
Проблем с расположением нет, если уже в квартире есть какая-либо ниша или кладовая соответствующих размеров. В остальных случаях люди чаще всего предпочитают использовать угловую часть комнаты. Можно изготовить межкомнатную перегородку. Это самое логичное решение для гардеробной комнаты. Обязательно проведите расчеты и представьте, как в будущем будет выглядеть комната.
В частном доме идеальное место для гардеробной на мансарде, чердаке или в нише под лестницей. Как правило, там достаточно места для хранения всей своей одежды. Приведем несколько наиболее распространенных вариантов планировки.
- Линейное расположение вдоль одной из стен. Удобно, когда комната непропорциональна. Располагать гардеробную систему следует вдоль длинной стены. Но нужно следить за тем, чтобы проход оставался комфортным. Ширина должна быть не менее 0,8 м.
- Расположение в нише – еще один удобный вариант. Зачастую ниши бывают в коридорах старых квартир. Обязательно рассмотрите вариант расположения гардеробной системы в нише, это действительно удобно. К сожалению ниши площадью 4 квадратных метра встречаются нечасто.
- Угловое расположение. Интересный вариант для большинства случаев. Нередко хозяева выделяют угловую часть спальни или гостиной под гардеробную. В результате вы получите эффектный внешний облик комнаты.
- П-образное расположение подходит для отдельных помещений. Система хранения располагается внутри по всем стенам. Можно разделить на зоны для каждого члена семьи, что очень удобно.
https://youtube.com/watch?v=MRbzSG2bwwE
Выбирайте вариант, который больше подходит под конфигурацию выделенного пространства. Также подумайте, вполне возможно, что вам лучше сделать гардеробную зону, если вещей действительно много. Так вы сэкономите куда больше пространства.
Внутреннее наполнение
Грамотное проектирование решает вопрос рационального и функционального использования гардеробной. Внутреннее наполнение оптимизируют, выбирая готовые системы хранения. Сохранность, быстрый поиск нужных вещей обеспечивают удобно совмещенные полки, штанги, стойки, корзины, коробки для гардеробных. Основными конструкциями наполнений могут служить:
Создание гардеробной своими руками, этапы работы, идеи оформления

Алюминиевые

Стальные

Сетчатые

Корпусные
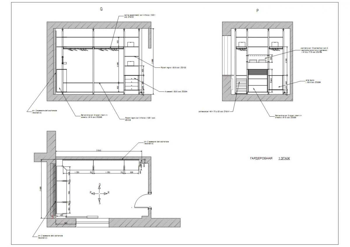
Все элементы корпусной мебели связаны между собой и крепятся к стене. В случае разборки потребуется ремонт всего помещения, поэтому демонтаж, перенос таких изделий нецелесообразен. Элементы наполнения используют унифицированные или изготавливают своими руками. Они комбинируются между собой: плетеную пластиковую корзину или коробку можно установить на полки из дерева или плиты МДФ, гардеробный короб – совместить с металлическими стойками. Планируя наполнение, следует учитывать условия, необходимые для хранения одежды, обуви, аксессуаров. В таблице указано примерное оборудование для размещения различных вещей.
| Что хранится | Элементы наполнения |
| Верхняя одежда (пальто, плащи) | Высокая штанга |
| Верхняя одежда (куртки, пиджаки, рубашки, блузы) | Низкая штанга, штанга — пантограф |
| Брюки, юбки | Вешалка с защипками |
| Белье, постельные принадлежности | Выдвижные ящики, корзины, полки |
| Обувь | Коробки, ярусные полки |
| Вещи, не требующие глажения | Закрытые корзины, коробки, контейнеры |
| Аксессуары (галстуки, ремни, пояса, шарфы, шали, платки) | Подходят брючные вешалки, конструкции с крючками, зажимы на стенках |
| Вещи хозяйственного, спортивного назначения | Ящики в антресолях и в свободных секциях без контакта с одеждой |

Пантограаф

Вешалка с защипками

Выдвижные ящики

Корзины

Полки

Коробки

Ярусные полки

Закрытые корзины

Контейнеры

Брючные вешалки

Конструкции с крючками

Ящики
Особенности
Проект гардеробной можно сделать самостоятельно, но проще спроектировать пространство с помощью бесплатных программ. В Сети выложены различные варианты, на которых показано внутреннее пространство гардеробной размером 2 кв. метра, опубликованы подсказки от пользователей.
Особенностей организации гардеробной на площади 2 кв. м.:
- Сначала определяют длину и ширину. Длина плечиков – 65 см. Такая ширина помещения нужна для установки продольной штанги. При уменьшенном формате помещения допускают торцевые вешала. В этом случае ширина гардеробной может быть 40 см.
- Длину гардеробной определяют по сумме длины шкафов, мебели, которую туда планируют поставить.
- Двери. Они должны быть складными или купе. Установка может быть сложной, зато на двери-купе удобно навешивается зеркало – еще одна экономия пространства. Если двери – это дорого, их заменят роллеты, рулонные шторы, жалюзи.
- Внутренняя площадь должна использоваться по максимуму. Задействуйте все – стены, углы, потолки. На потолках фиксируют подвесные штанги, куда устанавливают сетку, подвешивают коробки. Убрав цоколь шкафов, мастер сделает выдвижную полку для обуви.
- Крючки и подвесы – их должно быть много. Фиксируют крючки на стену, на верхний крюк натягивают цепочку – готовы секции для вешалок.
- Горизонтальные перекладины на выдвижной штанге, установленные с шагом 5 см – место для брюк. Так предметы гардероба не сомнутся, а даже одной штанги в 50 см хватит на десяток штанов.
- Подвесные органайзеры незаменимы в маленькой гардеробной 2*2 м. Их шьют сами, оснащая любым количеством карманов, покупают готовыми.
А теперь главное – где разместить гардеробную:
- в кладовой комнате – там уже есть двери, можно сделать систему стеллажей с ящиками, подвесами, линейное размещение будет самым удобным;
- в шкафу-купе – вместительные конструкции подойдут для организации хранения всех нужных вещей, их дополняют полками, коробками;
- в прихожей – удобно, но только при условии, что ее размер не менее 4 кв. м.
Выбирая планировку, при условии узкого и длинного пространства стоит отдать предпочтение Г-образной системе хранения. П-образная подойдет для помещений с высокими стенами.
Треугольная, квадратная форма гардеробной площадью 2 кв. м – вариант для нишевых проемов в спальне, комнате для детей или в промежуточных проходных помещениях.
Примеры проектов
Оригинальным решением считается гардеробная, напоминающая букву П. Не рекомендуется игнорировать этот вариант, считая, что он будет уместен только в большом помещении. Если проявить фантазию, можно грамотно распорядиться даже малым количеством квадратных метров, предусмотрев зону для размещения тех или иных вещей. Возможно, сам интерьер от этого станет экстравагантным, зато весьма эргономичным. Для максимальной функциональности используют монолитный гарнитур, закрытые ящики и вешалки.
Линейные проекты привлекают комфортностью и легкостью в реализации. Полки устанавливаются вдоль одной стены, позволяя задействовать минимум пространства для хранения вещей. Чтобы скрыть конструкцию, используют раздвижные двери. Оптимальное наполнение таких гардеробных — выдвижные вешалки.
При угловой планировке от перегородок отказываются, ведь стеллажи превращаются в часть комнаты. Такой прием позволяет существенно сэкономить бюджет, кроме того, вариант универсален, если площадь гардеробной менее двух квадратных метров.
При минимально возможной квадратуре в полтора квадратных метра одна из сторон не должна быть меньше 1,2 м, чтобы проход не был слишком неудобным и узким. Глубина стеллажей со штангами — не менее 50 см, выдвижных ящиков — минимум 30 см. Высота полок для хранения обуви — от 20 см. Высота отделов для брюк и рубашек — от 1,2 м, для пальто и платьев — от 1,5 м. Все остальные параметры определяются на усмотрение хозяев.
Линейная
Угловая
П-образная
Проекты с учетом площади
Идеальный вариант – это проекты домов с гардеробными комнатами, но и в обычной квартире с типовой планировкой можно устроиться не хуже.
П-образная гардеробная комната
Чтобы помещение было удобным и уютным, необходимо учесть определенные нюансы. Они не зависят от того, где будет находиться гардеробная. Ее можно обустроить в прихожей, спальне, коридоре или на балконе.
Работы по обустройству следует начинать с выбора мебели. Лучше всего использовать заранее изготовленный гарнитур. Установить его можно как своими силами, так и воспользовавшись помощью профессионалов.
Можно собрать корпусную мебель, применив отдельные модули. В данном случае преимуществом будет самостоятельный выбор дизайна и будущего места для хранения одежды и обуви.
гардеробная комната в классическом стиле с островом
Одним из критериев, по которому определяется функциональность гардеробной, является качество освещения. Лампы во флаконах светят тускло, поэтому их желательно избегать. Лучше всего использовать точечное освещение. Стоит помнить и о качественной вентиляции. Особенно если гардеробная комната не является частью открытого пространства. Если стеллаж, на котором хранятся вещи, устроен в кладовке, то там следует установить вытяжку или кондиционер.
Площадь гардеробной 1 кв. м.
на маленькой площади для экономии пространства используются исключительно открытые стеллажи
На пространстве такой площадью возможно разместить вещи только на стеллажах. Однако дизайн проекты маленьких гардеробных комнат позволяют оборудовать их и в гостиной, и в стандартном коридоре. Объект весьма прост в установке и компактен.
На подобной маленькой части пространства можно поместить лишь несколько полок, где, например, будет храниться одежда. Для белья следует дополнительно оборудовать полочки.
Проект гардеробной 2 на 2 кв. м.
компактная гардеробная линейного типа
Гардеробная комната на такой площади будет небольшой по размеру, но функциональной. Комнату можно сделать в форме буквы Г или П. Используется минимальная площадь, но обеспечен удобный доступ к вещам.
Подобную комнату можно устроить в доме или в квартире в любом помещении, кроме кухни. В проекте гардеробной 2 на 2 стеллажи для вещей должны гармонично вписываться в общий интерьер.
Площадь гардеробной 3 кв. м.
гардеробная может быть обустроена на чердаке или мансарде при наличии хорошего отопления и вентиляции
На площади такого размера поместится просторная полноценная комната для вещей. Она может быть открытой или закрытой. Это зависит от планировки дома или квартиры, расстановки мебели, межкомнатных дверей.
Гардеробную можно отделить небольшой перегородкой или отдельной дверью, выполненной в виде гармошки. При желании в подобную гардеробную комнату можно поставить туалетный столик.
Площадь гардеробной 4 кв. м.
дизайн гардеробной с несколькими ящиками
На подобном пространстве можно позволить пофантазировать. Фактически, гардеробная является отдельной комнатой. В ней будет размещено множество вещей. Поэтому гардеробную лучше всего в данном случае зрительно отделить от других зон в жилом помещении.
Стоит тщательно и детально обдумать, как расположить объекты, в каком порядке и как использовать полки и стеллажи. В комнате также можно поставить большое кресло и повесить зеркало. Посмотрите, что может получиться из такого помещения, на фото проектов гардеробных комнат 4 на 4 в конце статьи.
Площадь гардеробной 5 кв. м.
Г-образная гардеробная комната для хранения повседневных вещей
В гардеробной комнате подобного размера смело можно хранить большое количество повседневных вещей. Здесь можно смело поставить бытовую технику, например, утюг или пылесос.
Комнату можно при желании поделить на мужской, женский, детский отделы. В результате подобного решения будет легко и просто найти нужный предмет гардероба за короткое время.
Площадь гардеробной 6 кв. м.
дизайн гардеробной комнаты с зеркалом
Гардеробная комната такого масштаба дает простор полету фантазии владельца. Идеи можно воплотить в жизнь в больших частных домах или дуплекс-квартирах.
Как сделать гардеробную в маленькой комнате – дизайн-проекты, фото
Если у вас до сих пор возникают сомнения относительно того, как сделать гардеробную в маленькой комнате (фото далее) в небольшой квартире, значит ваша жилая площадь недостаточно изучена. Гардеробную в малой площади можно выполнить тремя вариантами:
- Классический вид. Вариант, который подразумевает расположение полок на площади либо Г, либо П- образной формы. Подобная гардеробная уместна в тех случаях, если в помещении планируется место на шкаф.
- Квадратная. Удобна в том случае, если оформлять ее в комнате – увеличивается вместительность.
- Треугольная. По сути, это та же угловая гардеробная, выгодное решение, если есть желание выделить под хранение лишь один угол. Реализовать идею можно с помощью раздвижной формы-гармошки.
Несколько слов стоит сказать о размерах;
- Площадь выбранного помещения должна быть не менее 3,5, но не более 8 м2.
- Определите Расстояние от шкафа или полок до противоположной стены —должно быть не менее 1,5 м.
- Чтобы располагать на полках вещи с комфортом, глубина их должна быть не меньше, чем 50 см.
- Высота между полками должна быть до 40 см.
- Если полки крепятся непосредственно к стене, надо ряды из них чередовать с пролетами для той одежды, что вы будете развешиваться. Рекомендованная длина — 80 см.
Если в квартире есть кладовая, чулан или балкон, то там можно оборудовать маленькую гардеробную комнату. Дизайн проекты (фото ниже) из кладовки должны подразумевать, что помещение не должно быть меньше 2 квадратных метров. Возникает вопрос: что делать с распределением полок и комплектующих? Вариантов может быть несколько:
- подобрать готовые ящики и вешалки и все это грамотно распределить в отведенном месте;
- воспользоваться услугами специалистов или самостоятельно сделать все необходимые модули гардеробной.
Необходимо чтобы в гардеробной помещались следующие приспособления:
- выдвижные ящики для постельных принадлежностей;
- крючки для галстуков, шейных платков, сумок;
- рейки для ремней и шарфов;
- полки для обуви;
- полка для хранения дорожной сумки или чемодана.
Предлагаем вам несколько вариантов проектов готовых гардеробных.
Небольшая прихожая 1х3 м: как обустроить
В маленькой прихожей устроить гардероб почти невозможно. Но если она хотя бы вытянутая, то придумать систему хранения все-таки можно. Прихожих, у которых длина всего 3 м очень много, а ширина в 1 м встретиться может разве что в очень редко квартире. Скорее всего, имеется в виду 1 м полезной площади, который остается уже в обставленной прихожей.
Итак, какой же может быть гардероб вытянутой и узкой прихожей? Предполагается длинный шкаф-купе с небольшой глубиной, максимум в 45 см.

Такой пример может показаться неубедительным. Но только если не видеть конкретных ширм, очень красивых, современных, интересных.
Конечно, 3 метра это совсем немного, узость комнаты не дает возможность создать по-настоящему вместительную гардеробную. Приходится жертвовать другой комнатной мебелью – пуфами, банкетками, комодами. Но здесь вопрос выбора, если есть шанс перенести гардеробную зону в другую комнату, так и сделайте.
Назначение dressing room
На смену громоздким «стенкам» 90-х годов пришли изящные шкафы-купе. Привычка хранить одежду и другие гардеробные аксессуары в одном месте сформировала новый общественный запрос: гардеробные зоны.
Отдельная зона позволяет содержать одежду, обувь и постельное в одном месте, не размещая ее по комодам, тумбам и шкафам всего дома.
Просторная гардеробная позволит хранить все текстильные вещи в одном местеИсточник pragmatika.media
Дизайн гардеробной обычно подстраивают под общий стиль помещения. Так, в комнате, выполненной в скандинавском стиле вряд ли будет уместна стеклянная конструкция из стиля модерн, а кирпичная стена в стиле лофт не станет гармонировать с элегантными вензелями арт-деко.
Дизайн гардеробной не должен нарушать общий стиль помещенияИсточник i.dobrzemieszkaj.pl
Современные dressing room поражают разнообразием дизайна и компоновки. Они выступают и отдельными загороженными зонами в квартирах-студиях и даже независимыми от спальни помещениями в особняках. Основной состав конструкции: несущий каркас и оснащение, вентиляционные отверстия и точечная подсветка.
Ряды стеллажей – наиболее эргономичная и функциональная мебель для подобных нужд: благодаря ей удается рационально использовать пространство от пола до потолка. Стеллажи легко окинуть взглядом, нет нужды долго перебирать вещи в комодах и выдвижных шкафах.
Стелажи в гардеробнойИсточник garderobnaya-msk.ru
Гардеробная 21 века – не роскошь, а скорее необходимость для тех, кто ценит свое время, особенно в утренние часы, когда поиск нужной вещи может задержать или выбить из графика. Здесь все призвано к максимальному порядку и удобству.
Все полочки на виду – это ускоряет процесс поиска нужной вещиИсточник гудхоум.рф
Стеновые шкафы обычно скреплены между собой стяжками и выглядят как один или группа модулей. Существуют системы, представляющие собой единую несущую панель, закрепленную вдоль стены посреди квартиры-студии.
Каркасная система состоит из металлических стоек, к которым крепятся все прочие элементы. Металлический каркас модульной гардеробной обеспечивает легкость и надежность сборки. Модульную конструкцию можно достраивать и переделывать по мере необходимости, ее легко демонтировать и перевозить.
Каркас и наполнение dressing room, спроектированной на заказ, будут стоить значительно дороже сборных модулей, но зато они грамотно впишутся в домашний интерьер.
Модульная конструция может уменьшаться или достраиваться при необходимостиИсточник www.praim-mebel.ru
Необходимость гардеробной
Многие люди просто не могут представить жилую недвижимость без данной комнаты. Она выполняет множество функций, поэтому необходима для:
- оптимального расположения всех вещей на полках или в шкафах, поэтому они содержатся в порядке, а также люди прекрасно знают, где именно располагается та или иная одежда;
- обеспечивается создание большого количества пространства, предназначенного для хранения вещей;
- чаще всего используются в маленьких комнатах вместительные полки, не скрываемые за дверьми, поэтому вся одежда находится в пределах видимости, что снижает затраты времени на поиск нужной вещи;
- все предметы гардероба являются скрытыми, поэтому не портят внешний вид других комнат в жилье;
- для создания гардеробной используются пространства, остающиеся чаще всего незадействованными, например, участок под лестницей;
- легко маскируются разными полками или шкафами многочисленные неровности на стенах или иные проблемы на них.
Таким образом, даже гардеробная 2 на 2 м считается прекрасным решением для размещения многочисленной одежды. Если при этом грамотно подойти к ее планировке и оформлению, то она будет удобной, привлекательной и многофункциональной.
Перед непосредственным обустройством данной комнаты следует определиться, какое свободное пространство будет использоваться для этих целей. Для этого можно применять кладовку или воспользоваться разными нишами. Нередко определенная часть комнаты просто отгораживается специальными панелями или ширмой.
Гардеробная из кладовки в хрущевке
Наличие кладовой в квартире – бесценное сокровище для тех людей, которым всегда не хватает места. Сделайте из кладовой уютное место для переодевания несколькими способами. Например, в хрущевке кладовую можно заменить шкафом.
Гардеробная в хрущевке
Для этого вам необходимо выполнить следующие действия:
- Демонтируйте дверь.
- Удалите секции.
- Сделайте замер полученной ниши.
- Найдите нужную модель шкафа, или выберите гардероб.
- Установите.
Совет Если дверь будет открываться внутрь или двигаться на роликах, то такая конструкция позволит еще больше сэкономить пространство, попробуйте сделать дверцу зеркальной.
Гардеробная будет не менее привлекательной, если сделается по другому плану. Для создания нового функционального пространства из кладовки необходимо сделать чертеж и обновить дизайн внутренних поверхностей стен. Стоит отремонтировать потолок. Можно сделать гардероб освещенным и провести электропроводку внутрь.
Удобный и функциональный уголок
Если вы планируете добавить свет в шкаф, найдите электрический блок, который может обеспечить источник питания и спланируйте маршрут кабеля. Если вы не знаете, как это сделать, позвоните лицензированному электрику, чтобы он помог вам подключить и установить свет. Купите большое зеркало, которое устанавливается на двери. Теперь нужно продумать разные отсеки.
Больше пространства должно быть выделено для длинных вещей, нельзя забывать про планку для вешалок. Кроме того, нужно подобрать специальные подставки для обуви, верхние полки на которых будут храниться шапки. Когда все делается своими руками, дизайн может быть изменен в соответствии с личными предпочтениями.
Гардероб должен учитывать женский комфорт, предусмотрев коробки для мелких предметов. Например, в них могут храниться кисти, нити, иглы и другие устройства.
Грамотно распределите место
Как сделать шкаф из деревянных реек?
Нужно больше места в шкафу? Если у вас есть достаточная занимаемая площадь и некоторые базовые навыки столярных работ, вы можете построить шкаф в спальне, гостевой комнате, кабинете или коридоре, который будет выглядеть так, будто он стоял там все время.
Первый шаг – построить каркас шкафа и прикрепить его к окружающим стенам. Далее будет отделка дверного проема и установка двери (дверей) по вашему вкусу. Наконец будет установлена штанга или вы настроите интерьер с помощью стержней, стеллажей, ящиков и любых других аксессуаров, которые вы хотите.
Функциональное, небольшое пространство
Планирование строительства стен шкафа
Планируйте построить каркас шкафа 2 на 4 м с помощью 2/4 дюймовых планок, делая глубину не менее 70 см. Вы можете построить раму одним из двух способов: построить стены на полу, а затем поднять их на место или построить их на месте.
Гораздо проще соединить все элементы вместе на полу, если в комнате есть большая свободная область для работы. Но, используя этот метод, вам придется внести небольшую модификацию в высоту стен шкафа, потому что невозможно поднять стену высотой 2м в пространство высотой 2м. Итак, постройте стену на 1см короче высоты потолка, а затем установите прокладки или тонкие блоки между верхней панелью и потолком.
В светлых тонах
Начало работы
Сначала отметьте положение верхней планки (на рисунке «top plate») и нижней (sole plate). На потолке отметьте оба конца центральной линии новой стены шкафа. Измерьте 1 3/4 дюйма (половину ширины верхней планки 2 на 4) с обеих сторон каждой метки. Зафиксируйте параллельные линии между соответствующими отметками с помощью мела, чтобы показать положение верхней планки.
Основные структурные элементы
Затем, повесьте отвес от каждого конца линий и отметьте эти точки на полу. Закрепите эти линии мелом, чтобы соединить точки пола, обозначив положение подошвы. Если шкаф имеет боковую стенку, выложите ее верхнюю и нижнюю планку также.
Совет Используйте прямоугольник каркаса, чтобы убедиться, что это будет идеально перпендикулярно передней стенке. Обрежьте нижние и верхние планки до нужной длины.
Идеально подойдет для семьи из 3-х человек
Отметьте верхнюю планку и подошву для расположения штифтов, используя угольник и карандаш.
Наполнение гардеробной готовые решения
Внутреннее наполнение гардеробной комнаты в большинстве случаев изготавливается специалистами под заказ. Тем не менее, магазины мебели следят за новинками и тоже предлагают множество вариантов комплектующих, так что детали можно скомпоновать самостоятельно.
- Стандартный набор, как правило, включает:
- стеллажи;
- многоуровневые штанги разной длины;
- полки;
- ящики;
- корзины или закрывающиеся контейнеры;
- кронштейны для галстуков и ремней;
- отсеки для короткой одежды;
- модуль для обуви;
- набор крючков и стержней.
В условиях ограниченного пространства угловых гардеробных следует планировать максимально большое количество открытых и неглубоких полок. Тем не менее, в проекте должны быть предусмотрены закрытые выдвижные ящики для хранения нижнего и постельного белья, полотенец.
- Если позволяет место, гардеробная должна также вместить:
- зеркало;
- пуф;
- выдвижную или складную гладильную доску
- утюг.
Полки для гардеробной комнаты
Эти детали могут быть закрепленными или выдвижными. Ширина полки обычно варьируется в пределах 30-40 см. Для антресолей можно использовать полки шириной до 60 см.
Мобильные полки могут быть складывающимися и выдвижными.
Мебель для гардеробной комнаты
Выбирать мебель необходимо с учетом площади, отведенной под гардеробную. Заводские модели имеющихся в доме шифоньеров или тумб скорее всего не удастся вписать в пространство гардеробной, поэтому мебель придется изготавливать на заказ по индивидуальным размерам.
Когда пространство ограничено, предпочтительно использовать мебель открытого типа, для просторных помещений можно выбрать закрытые стеллажи и шкафы.
В гардеробной, неважно, закрытая она или открытая, крайне необходимо разместить большое зеркало. Это облегчит вам выбор одежды, даст возможность переодеться и привести себя в порядок в отсуствие посторонних глаз
Да и аксессуары в тон к сумочке и обуви перед зеркалом подобрать будет намного проще.
Для комфорта специалисты рекомендуют также расположить в гардеробной пуфик или небольшую скамейку.
Гардеробные системы (фото)
Чтобы обеспечить удобное расположение вещей, необходимо продумать требуемое количество и размеры тех или иных отсеков.
Например, в женском гардеробе шкаф должен быть рассчитан на платья длиной до пола, а это значит, что его высота должна быть не менее 1,6-1,8 м.
Такие же размеры рекомендуются и для секции с верхней одеждой. Для пиджаков, рубашек будет достаточно 1,2 м. Оптимальный размер полок – 30-35 см.
Глубина шкафов рассчитывается, исходя из ширины плеч, и может колебаться от 50 до 70 см.
Верхнюю часть гардеробной часто отводят под хранение внесезонных вещей, чемоданов, подушек и одеял.
Выше уровня глаз можно устроить полки для шляп, сумок, зонтиков, перчаток.
Средние участки занимают вешалки и полки, под ними – комоды с закрытыми ящиками для белья, в самом низу – сетки и коробки с обувью. Последнюю удобно хранить в наклоненном виде, под углом в 45-60°, а также в крутящихся радиусных конструкциях.
Предусмотрите достаточное количество выдвижных ящиков для аксессуаров – так их будет гораздо легче найти, когда они будут необходимы.
Для мелочей удобно использовать разделители, благодаря чему предметы не будут смешиваться.
Не обойтись без вешалок для брюк, которые могут быть как одинарными, так и двойными. Примерная высота – не менее 60 см.
Лучше выбирать специальные вешалки с защипами. На них можно повесить не только брюки или джинсы, но и юбки любой длины.
Вещи, которым не требуется глажка, можно хранить в корзинках или коробках. Такие емкости делаются из дерева, пластика или даже ткани. Их можно установить на полках или использовать модели на специальных колесиках.
Для хранения пылесоса можно предусмотреть отдельный шкаф, а складную гладильную доску никто не заметит, если спрятать эту полезную вещь в узкой нише между секциями гардероба.
https://youtube.com/watch?v=siOx70PNvaM
Исполнение гардеробных комнат
- В зависимости от выделенного свободного пространства гардеробную комнату можно разместить:
- в углу комнаты;
- в любой освобожденной части помещения (встроенный вариант).
Угловая гардеробная
Угловые гардеробные комнаты очень функциональны, занимают минимум пространства и по сравнению с обычным линейным расположением дают возможность хранить вдвое больший объем вещей.
Угловая конструкция, выполненная в современном дизайне, будет выглядет очень стильно и станет настоящей изюминкой в общем интерьере помещения.
Угловой вариант размещение систем хранения является оптимальным для владельцев небольших квартир, позволяет эффективно использовать пространство в комнатах с ограниченной площадью – спальнях, прихожих, детских, мансардах.
Отделить гардеробную можно с помощью раздвижных дверей-купе – как стандартных, так и радиусных (полукруглых). Для высоких помещений подойдут перегородки с дверным проемом, выполненные из фанеры или гипсокартона, а также различные ширмы или шторы.
Встраиваемые гардеробные шкафы
Универсальной конструкцией для хранения вещей и одежды, а также удобным местом для переодевания является гардеробная комната встроенного типа. Разнообразие возможных комплектаций шкафов позволяет создавать любой интерьер на свой вкус.
- Существуют три базисных элемента встроенной мебели:
- платяные шкафы;
- шкафы купе;
- частично встроенные гардеробные шкафы.
Функциональные элементы гардеробной комнаты позволят организовать удобное и комфортное хранение вещей. Помимо привычных полок и выдвижных ящиков используются всевозможные штанги, вешала, обувницы, специальные приспособления для хранения брюк и галстуков.
Современное оснащение газовыми лифтами и кронштейнами обеспечивает свободный доступ к вещам и позволяет задействовать каждый сантиметр пространства.
Значительно экономят и украшают пространство квартиры двери купе, декорируемые в соответствии со стилевым решением помещения.
Маленькая гардеробная комната
Даже на небольшой площади можно установить выдвижные шкафы вертикального расположения для верхней одежды, разместить полочки и шкафчики для белья, а нижние ряды отвести под обувь.
Стоит отметить, что оборудуя систему хранения в мини-гардеробной, имеет смысл отказаться от применения каркасных конструкций. Все внутренние элементы – полки, стеллажи и штанги нужно крепить прямо к стенам. Это значительно экономит внутреннее пространство.





