Обустройство спальни 6 кв м – фото
Кроме того, даже маленькая спальня может удивить. Интересным элементом интерьера может стать, например, стена позади кровати, отделанная декоративными обоями. Деревянная кровать и тумбочки завершат композицию.

Маленькая спальня 6 кв м, фото
Интересным декоративным элементом может стать полка или картины над кроватью. Маленькие прикроватные тумбочки и кровать небольшого размера прекрасно поместятся в небольшое пространство. Завершат дизайн красивые абажуры для ламп, которые декорируют комнату интересным освещением.

Обычный деревянный стол может играть роль рабочего стола. Установите его рядом с кроватью, под висящей полкой, которая занимает всю стену от двери до кровати и получите удобное место для работы и отдыха. Стены и навесные полки лучше выбирать в светлых тонах, чтобы они не загромождали интерьер.

Навесные шкафы, занимающие всю стену за кроватью, обеспечат достаточно места для хранения вещей, а полки на высоте матраса послужат в качестве тумбочек, которые займут оставшееся место.

Другие фото интересного дизайна вы можете увидеть в галерее
Отделка пола, потолка и стен
Источник фото //remstroiblog.ru
Для небольшой спальни большое значение имеет правильный выбор отделки. Лучше всего выбирать материалы светлых оттенков с простыми текстурами. Например, для пола оптимально подходят ламинат или массивная доска со спокойными оттенками, например, темно-серым, песочным, светло-коричневым. Ковролин или паркет для такой спальни не подходят, так как они визуально сделают пространство меньше. При обустройстве пола можно сразу смонтировать невысокий подиум для кровати, расположив под его поверхностью встроенные ящики для белья, постельных принадлежностей или одежды. Преимуществом этого решения является то, что кровать уже не нужна – подиум является основанием для матраса, оставляя место радом для небольшого светильника.
Источник фото //of-stroy.ru
Для потолков можно использовать различные варианты, при высоких потолках можно использовать многоярусные подвесные конструкции с карнизной или скрытой подсветкой
Но при выборе типа гипсокартонного потолка очень важно соблюдать меру – излишне сложные конструкции только сделают комнату визуально меньше. Для спален с низкими потолками рекомендуются натяжные конструкции с глянцевой поверхностью
Такие отражающие потолки зрительно расширят пространство, придадут обстановке больше гармонии и света.
Источник фото //www.ristroy.ru
Для стен можно использовать различные варианты – обои, декоративную штукатурку, фотообои, краски. При выборе обоев рекомендуется отдавать предпочтение однотонным покрытиям светлых и пастельных оттенков, с мелким рисунком или линейным, геометрическим орнаментов, в тонкую полоску
Фотообои надо подбирать крайне осторожно – слишком яркие варианты сделают комнату визуально меньше. Идеально подходят легкие пейзажи, городские визы с небольшим количеством деталей, изображения в стиле винтаж или флористические композиции
Использовать такие покрытия рекомендуется на стене за кроватью, акцентируя на ней внимание
При выборе декоративной штукатурки следует отдавать предпочтение тонкослойным покрытиям, имитирующим поверхность натурального камня. Полупрозрачные слои, тонкие переливы цвета и легкий перламутровый налет придадут спальне больше изящества и легкости.
Хорошим выбором для отделки стен станут узкие зеркала с пескоструйным рисунком или геометрическим рельефом. Они сделают интерьер более современным и интересным, придадут ему индивидуальность. Но размещать зеркала следует так, чтобы в них не отражалась кровать
Особенности дизайна узкой спальни
Создание дизайна спальни, как и любой другой комнаты, начинается с разработки общей планировки. Если комната узкая, этот процесс будет зависеть не только от желаний и потребностей жильцов, но и от особенностей геометрической формы помещения. Обустройство узкой спальни может вызвать некоторые затруднения, если необходимо поставить двуспальную кровать. Комнату такой формы можно встретить в основном в «хрущевке».
Конечно, все зависит от ширины комнаты. Если помещение имеет ширину около 3 м, то особых проблем положение кровати вызвать не должно. Независимо от ее положения, вдоль комнаты или поперек, останется достаточно места для прохода. Стандартом считается 70 см. Таким образом, даже если кровать будет иметь длину 2.3 м, то необходимый минимум будет обеспечен
Заметим, что длинные кровати, как правило, имеют в изголовье дополнительную секцию с полками. За счет этого увеличивается и общая длина. Такая модель будет актуальна в спальне шириной 2,5 м, поскольку если поставить ее поперек комнаты – места для прохода практически не останется. А если расположить вдоль, то при ширине матраса 1,8 м, сбоку как раз останутся необходимые 70 см для прохода. Однако в этом случае она будет придвинута к стене. Но это зависит от хозяев и, возможно, кого-то устроят и более узкие проходы с двух сторон.
Наибольшую трудность представляют очень узкие комнаты площадью 2 на 4 м. Стандартная длина матраса 2 м, поэтому сама кровать будет на несколько сантиметров длиннее. Соответственно, если комната имеет ширину четко 2 м, поперек комнаты такая кровать не встанет. Таким образом либо придется изготавливать ее на заказ, либо ставить вдоль комнаты. В этом случае сбоку останутся не задействованы 20–30 см. Для такой маленькой комнаты это довольно приличная площадь, которая не должна пропадать. Это расстояние отлично подходит для сооружения полок. Таким образом, получится весьма эргономичная зона хранения.
Прямоугольная комната может быть как с одним окном, так и с двумя. В комнате с окном в конце проще расставить мебель. В помещении с двумя окнами приходится отталкиваться от расположения окон, а если площади мало – это может вызвать трудности.
Цвет
Цветовое оформление интерьера зависит от индивидуальных предпочтений, выбранной стилистики, особенностей помещения. Чаще всего для отделки ванной комнаты площадью 6 кв. м. используют натуральные светлые оттенки, которые визуально увеличивают пространство.
Современное оформление ваннойИсточник topdizz.com
Большинство моделей сантехники в магазинах представлены в белом цвете, к которому значительно проще подобрать любые оттенки светлой цветовой гаммы.
Санузел в светлых тонахИсточник dizainvfoto.ru
Английский стиль кантри характеризуется преимущественным использованием коричневых, красных, бежевых, белых, серых оттенков. Элементы декора могут содержать рисунок в виде разноцветных клеток.
Санузел в стиле кантриИсточник homify.ru
Для стиля прованс характерно использование светлых, пастельных оттенков зеленого, бежевого. Декоративные элементы могут быть украшены цветочным принтом.
Дизайн ванной комнатыИсточник comfortoria.ru
Основные акценты поможет подчеркнуть бежевый фон, это одно из лучших цветовых решений для ванной 6 кв. м. К оттенкам бежевого подойдет декор любого цвета.
Современное оформление санузлаИсточник interiorexplorer.ru
Яркие оттенки, например, красный, смотрятся довольно эффектно
Важно правильно подобрать цвета-компаньоны, чтобы не перегрузить интерьер
Выбор цвета санузлаИсточник steklonarezka.ru
Дизайн ванной комнаты в серых тонах смотрится довольно стильно, особенно хорошо этот цвет раскрывается в комбинации с деревянными деталями.
Санузел в серых тонахИсточник evrookna-mos.ru
Варианты стилей
Современный стиль – это лаконичная мебель без лишнего декора. Для дизайна спальни отсутствие нагромождающих предметов и деталей – выигрышный вариант.

Перед тем как обставить помещение, нужно продумать все моменты планировки до мелочей.
Отличительные черты стиля.
- Отделка стен и потолка в светлой гамме: бежевой, серой, кремовой.
- Металлическая, хромированная фурнитура на мебели.
- Акцент в виде картины, вазона или торшера.
- Светодиодное точечное освещение.

Желательно просмотреть несколько вариантов дизайна: фотографии, схемы, эскизы.
Классический вариант спальни – для ценителей элегантной роскоши. Все дело во вкусе и индивидуальных предпочтениях. Если по душе комната 6 кв м в классическом стиле, следует выполнить следующее.
- Создать лепной декор на стенах, около люстр.
- Роскошную декоративную отделку потолка в сочетании с хрустальной люстрой в середине комнаты.
- Благородную цветовую гамму: жемчужный, оливковый, шоколадный, изумрудный.
- Мебель из натурального дерева.

Миниатюрная спальная комната 2 х 3 м имеет свои преимущества.
Интересно знать: дорогие материалы имеют более дешевые синтетические аналоги. Современный классический стиль может стать бюджетнее, чем раньше.

Не всем людям нравятся огромные комнаты.
Минимализм – наилучший вариант для дизайна маленькой и уютной спальни 6 кв м фото примеры которой, можно найти в интернете. В таком дизайнерском решении нет ничего лишнего. Здесь присутствуют:
- гладкие и ровные поверхности;
- хромированные светильники простых форм;
- светлый, однотонный текстиль.

Минимум мебели, приглушенное освещение, умело выбранный декор – все это делает сон здоровым, а расслабление – полным.
Прованс – нежный и утонченный. Тут отсутствует грубая и массивная мебель.
Важно использование преимущественно светлой, приглушенной цветовой гаммы. Основные характеристики стиля
Основные характеристики стиля.
- Текстиль с вышивкой.
- Занавески и портьеры из натуральных материалов, как правило – льна.
- Обои с цветочным принтом.
- Имитация деревянного покрытия.

Рациональное использование каждого квадратного сантиметра полезной площади.
Комната 10 метров: как расставить мебель
Дизайн маленького помещения визуально воспринимается легким. Пространству противопоказана габаритная мебель и обилие элементов. В интерьере спальни в 10 квадратов кровать устанавливают возле главной стены. Если комната узкая или совмещает функции рабочего места (кабинета), то вместо массивного ложа используют складывающийся диван.
По бокам от спальной зоны устанавливают тумбы. Компактные модели не занимают полезных метров. На столешницах располагают лампы с абажурами. Вместо одного элемента дизайнеры советуют организовать косметический столик. Зеркало вешают на стене, а табурет прячут в противоположном углу. Напротив ложа монтируют телевизионную панель.
Маленькая спальня Источник budremont.info
В маленькой прямоугольной комнате сложно обустроить системы хранения. Чтобы спальня 10 кв. м оставалась уютной и незахламленной, нужны шкафы. Узкие пеналы до потолка устанавливают по углам помещения. Над дверным проемом монтируют арку из стеллажей или закрытые модели для одежды.
Система хранения в спальне Источник ic.pics.livejournal.com
Если комната узкая, то рекомендуем отказаться от комодов. Постельное белье держат в выдвижных ящиках под кроватью. Ложе устанавливают возле одной из глухих стен без окон, с противоположной стороны – купе. Над зоной отдыха дизайнеры часто оборудуют систему хранения в виде арки из шкафов и антресолей. Чтобы визуально откорректировать вытянутость помещения, рекомендуем использовать зеркальные фасады.
Крохотная спальня с декором Источник dizainer-mebel.ru
Если комната с выходом на балкон, то застекленное пространство оборудуют под кабинет или будуар. В лоджии поместится мягкое кресло и стол (компьютерный или косметический). Чтобы спальня 10 кв. м не выглядела захламленной, в зону перемещают систему хранения. С узких сторон конструкции монтируют высокие платяные пеналы.
Зона отдыха в лоджии Источник yellowhome.ru
Объединенное пространство Источник dizainvfoto.ru
Выбор стиля
Даже 6-7 кв. м может оказаться достаточной площадью для создания интерьера, оформленного в каком-то ярко выраженном стилистическом направлении. Для этого необходимо знать основные принципы этого стиля и проявить свою фантазию. Комната, выдержанная в каком-то определенном стиле, всегда смотрится более выигрышно, чем просто красиво обставленное помещение. Стилистическое решение делает интерьер завершенным, гармоничным, цельным.
Конечно, не все направления будут одинаково гармонично смотреться в небольшой комнате. Особенно это касается пышных, помпезных, вычурных стилей (барокко, рококо или арт-деко). Они предполагают наличие массивной мебели, ярких красок, богатого декора. Однако есть и несколько более лаконичных направлений, которые будут смотреться не менее интересно, стильно и красиво. Это классика, минимализм, прованс, эко-стиль, восточные направления. Данные стили подразумевают светлые цветовые решения в оформлении, лаконичный, изящный декор, классическую мебель.
Расскажем о них более подробно:
Современный стиль. Спальня, оформленная в этом стиле, предполагает спокойные оттенки, красивую мебель, отсутствие пышного декора. Для оформления стен, потолка и пола используются однотонные материалы. В качестве украшений может использоваться красивая фурнитура, зеркало, мебель из полированного дерева. Обстановка допускает наличие небольших торшеров или классических бра, комнатных растений, керамических украшений.
Классика. Классическая спальня никогда не выходит из моды. Поэтому классический стиль является одним из самых популярных. Он не кричащ, не вульгарен, для него характерны утонченность, изящество, благородство в расцветках и мебели. Нежные оттенки бежевого, молочного, персикового, розового, сиреневого, зеленого, песочного и других цветов делают интерьер очень светлым, воздушным.
Интерьер «под старину». Декор в виде старинной лепнины, серебряных или керамических украшений, хрусталя помогают создать даже в самой маленькой комнате атмосферу роскошного дворца. Для оформления используются красивые материалы: бархат, атлас, шелк, жаккард. Но их не должно быть слишком много, все очень лаконично и сдержанно.
Прованс. Идеальное решение для тех, кто предпочитает французскую утонченность и изящество. Для отделки используется исключительно нежная, светлая палитра: бело-розовый, голубой, сиреневый, зеленый, желтый цвет. Обязательны текстильные дополнения и аксессуары: покрывало, плед, шторы с мелким орнаментом (горошек, цветы, клетка). Мебель для спальни в стиле прованс должна быть максимально простой и строгой. Приветствуется использование натуральных материалов и композиций из живых и искусственных цветов.
Лофт. Этот стиль характерен для ярких, необычных натур, отвергающих все привычное и устоявшееся. Свое название направление получило от бывших фабрик и промышленных складов, которые в свое время были переоборудованы в жилые помещения. От старых производственных цехов в квартире остались кирпичные стены, лишенные всякой отделки, высокие потолки и открытые окна. Минимум декора, характерный для этого стиля, как нельзя кстати придется для оформления маленького помещения. Цветовая гамма достаточно ограничена: черный, белый, серый, коричневый цвет. Дополнительную стилизацию под заброшенное фабричное помещение придают открытые лампы без плафонов, стены, имитирующие кирпичную кладку или бетон, дощатый пол.
Минимализм. Минимализм – еще одно очень удачное направление для отделки крошечной комнаты. Для этого стиля характерно полное отсутствие каких-либо излишеств в оформлении (завитушек, розочек, кистей, бантов, рюш, оборок). Цветовое решение обычно состоит из сочетания двух контрастных или близких по цвету оттенков. Дизайн интерьера выстроен в четких, правильных геометрических линиях, мебель очень стандартна, никаких необычных форм. Такой интерьер придется по душе деловым людям, которые предпочитают рациональность во всем, в том числе, и в оформлении своего жилища.
Скандинавский стиль. Отличительной особенностью стиля является сочетание разных очень светлых, прозрачных, холодных тонов. Это, прежде всего, белый, серый и голубой цвет. Такое стилистическое решение будет оптимальным для комнаты, чьи окна выходят на солнечную сторону. Холодная цветовая гамма подарит ощущение свежести и зимней прохлады даже в самый жаркий и солнечный день.
Объединение с другими помещениями
Если квартира отличается маленькой площадью, то в таких условиях сложно создать все необходимые по функционалу комнаты. Но есть вариант соединения спальни со смежными помещениями.
Совмещение маленькой спальни с гостиной
Такой вариант чаще всего применяется в квартирах студиях. Спальное место при этом можно просто закрыть ширмой, балдахином или шкафом. Есть возможность создать дополнительную перегородку из гипсокартона. Так получится идеальное место для сна без необходимости устраивать его и гостиную в разных помещениях.
Совмещение маленькой спальни с балконом или лоджией Если из маленькой спальной комнаты имеется выход на лоджию или балкон, то это позволяет немного увеличить полезную площадь помещения. За счет демонтажа окна и двери на балкон, а также его утепления получается свободное место для устройства в спальне рабочей зоны или любого другого по функционалу уголка.
https://youtube.com/watch?v=ZWsYW_XD5rU
Цветовая гамма и материалы
Источник //divia.users.photofile.ru
Оформляя дизайн для небольшой спальни, надо большое внимание уделить выбору цвета и материалов. Для таких помещений идеально подойдут светлые оттенки, что придаст атмосфере больше легкости и зрительно расширит помещение
Это все оттенки белого, песочный, пастельные тона, при этом сочетать рекомендуется два-три оттенка с использованием какого-либо яркого акцента. Для пола допускается использование более темных тонов с естественной фактурой, например, массивной доски или ламината приятного темно-серого, коричневого тонов, выбрав для подоконников материал с аналогичными цветовыми решениями.
Для потолка лучше всего использовать натяжной, который поможет «вытянуть» помещение, визуально сделать его больше и уютнее. Для подвесных ГКЛ систем можно выбрать декоративный карниз, имитирующий элегантную лепку с небольшой шириной. Многоярусные сложные потолки с массивными элементами декора для маленькой спальни не подойдут вообще. Поэтому никаких деревянных балок, сложных декоративных элементов или зеркал – все должно быть просто и в стиле минимализма, обеспечивая ощущение простора и свободы.
Источник //znatokpotolka.ru
При отделке стен можно использовать светлые однотонные обои или покрытия с тонкой полоской, краски с легкой фактурой, декоративную штукатурку. Не рекомендуются деревянные и МДФ панели, покрытия с крупным декором, сложные текстуры, которые только создают ощущение тесноты. Также для стен можно использовать узкие зеркала с пескоструйным рисунком или рельефом. Они помогут зрительно расширить пространство и придать ему больше гармонии. Но ставить зеркала надо таким образом, чтобы они не мешали спокойному отдыху.
Для маленькой спальни также идеально подойдет такие приемы визуального увеличения пространства:
- зеркальные и глянцевые створки для шкафов;
- отражающие материалы для натяжных потолков;
- легкие светопрозрачные ткани для окон;
- стеклянные полки;
- использование для декора геометрического, линейного орнамента или мелкого рисунка;
- акценты в виде высоких комнатных растений (без пышной кроны), статуэток, высоких ваз или модульных картин.
Выбирая декор, очень важно не увлечься – достаточно одного-двух элементов, в противном случае маленькая комната будет очень тесной и неуютной
Способы визуального увеличения пространства
При оформлении небольшого помещения полезно знать некоторые хитрости, которые помогут визуально расширить пространство.
Варианты отделки стен:
Обои. Широкие вертикальные полосы на обоях добавят высоты потолку.
Краска. Глянцевая светлая краска поможет зрительно увеличить комнату. Существует еще такой вариант — нижнюю часть стен оформить более темным цветом, а ближе к потолку оставить светлые оттенки.
Фотообои. Одну из стен можно украсить фотообоями, либо повесить крупную картину
Это поможет создать правильный акцент и привлечь внимание к данной детали комнаты.
Подсветка. Можно добавить светящиеся полосы на стене у кровати
Такой прием зрительно отодвигает стену и приподнимает потолок.
Плинтус. При недостатке высоты помещения можно выбрать довольно высокий плинтус, который создаст эффект поднятия потолка.
Варианты отделки окон:
- Подсветка. Закарнизная подсветка создает необычный эффект.
- Шторы. Предпочтительно выбирать легкие ткани светлых оттенков. Лучше, если это будут рулонные или римские шторы, которые не доходят до пола.
Напольное покрытие. В маленьких помещениях часто используют светлую паркетную доску или ламинат небольшого размера, уложенные по диагонали.
Зеркала и стекла. Напротив окна можно разместить зеркало или зеркальное панно, которое будет отражать естественный свет и делать помещение более воздушным. Небольшие зеркальные и стеклянные элементы помогут размыть границы комнаты и создать дополнительную игру света.
Освещение. Для достижения лучшего эффекта можно разбить спальню на несколько зон, и в каждой сделать свое освещение с помощью отдельных точечных светильников и бра.
Балкон. Дополнительным преимуществом станет наличие балкона. Его можно утеплить и совместить с основным помещением.
https://youtube.com/watch?v=KCfLUv2VK_0
Освещение
Не используйте в качестве основного светового источника большую люстру с многочисленными деталями. Она только подчеркнет маленькие размеры комнаты, визуально опустит потолок. Лучше воспользуйтесь компактным светильником, обладающим лаконичной конфигурацией, с минимальным количеством украшений.
В качестве дополнительных источников освещения применяйте настольные лампы и бра на стенах.

Отдавайте предпочтение небольшим светильникам с неброским внешним видом.
Если в спальне потолком служит натяжная конструкция, рассмотрите вариант со светодиодными лампочками, расположенными по периметру комнаты. Шкаф и изголовье кровати можно декорировать локальными светильниками.

Выбор стиля
Для полноценного расслабления очень важно, чтобы окружающая обстановка была приятной. Поэтому выбираются те предметы и цвета, которые доставят максимальное удовольствие при их разглядывании
При этом необходимо учитывать, чтобы эти наборы гармонировали между собой и не портили общий интерьер.
Спальня в тринадцать квадратных метровИсточник houser.su
Поскольку у каждого есть свои предпочтения, а дизайнеры уже разгруппировали все составляющие, то остается только выбрать один из стилей оформления.
Прованс
Наверное, самое распространенное направление для отделки спальни. Его выбирают за простоту и нежность пастельных оттенков. Еще за благородство, поскольку в нем используется натуральная деревянная мебель под старину. Стилю подходят простые обои, рисунок которых крайне ненавязчив. Для маленькой спальни особенно хорош мелкий цветочек.
Прованский стиль в интерьере спальниИсточник dizainexpert.ru
Минимализм
Когда в наличии спальня 13 кв, то выбрав это направление проиграть невозможно. Стиль приветствует отсутствие мебели, а поскольку в помещении будет только самое необходимое, то отпадает нужда делить его на зоны. А если в комнату нужен телевизор, его располагают на стене.
Минимализм в спальне, оформленной в серых тонахИсточник comfortoria.ru
Современный
Маленькая комната хорошо подходит для модного ныне направления хай-тек или модерн. Стили не любят ничего лишнего, а из мебели предпочитают многофункциональную. Поэтому хорошо будет смотреться кровать-трансформер и шкаф-купе.
Спальня в современном стиле темнаяИсточник Pinterest
Экзотика
Интересным решением будет оформить спальню в африканском стиле. Песочные или оранжевые оттенки на стенах, вместе с бамбуковыми занавесками создадут иллюзию саваны. Подчеркнут направление детали. На полу будет отлично смотреться шкура животного, а на стену в изголовье кровати лучше наклеить фотообои из жизни тропиков.
Африканский стиль в интерьере спальниИсточник dizainvfoto.ru
Восточный
Этот вариант имеет два решения. Либо подбирается декор, передающий настроения арабских сказок, либо останавливаются на японских или китайских мотивах. В первом случае при оформлении необходимо максимально сгладить яркость красок. Иначе будет трудно полноценно расслабиться.
Спальня в арабском стилеИсточник homeli.ru
11 вариантов планировок маленькой спальни площадью 7 кв.м. прямоугольной формы
Спальня площадью 7 кв. м — сегодня это уже не такое редкое явление, каким было, может быть, раньше. Сейчас сплошь и рядом застройщики создают не квартиры, а клетушки площадью по 20-25 кв. м. В таких квартирах приходится жить семьям с детьми. И, конечно же, понятно желание владельцев такого жилья отделить спальную зону от остальной части квартиры.
Ниже представлены варианты спальных комнат площадью всего 7 кв. м. По понятным причинам, разместить в такой спальне кровать 1.8 м * 2м — довольно трудное дело. Поэтому я все планировки сделал для кровати 1.6 метра шириной. Я старался сделать так, чтобы доступ был хотя бы к двум сторонам кровати, а лучше к трем.


В первом варианте кровать расположена изголовьем к окну. Это позволяет нам сделать доступ к кровати со всех трех сторон. Планировка спальни интересна тем, что если вход в комнату будет по центру, то можно обвязать вход неглубокими шкафами. Да, в них войдет не так много, но и спальня у нас совсем небольшая. Часто такие спальни (7 кв. м) являются гостевыми, поэтому большие шкафы там не нужны.
Во втором варианте такой же самой комнаты кровать я развернул вдоль окна. Такое расположение спального места позволило во-первых, увеличить свободное пространство по центру комнаты, а во-вторых, разместить достаточно объемные шкафы-купе.


Немного нетрадиционный вход — с краю комнаты. Но, даже для него я придумал вам пару вариантов.
Шкафчики по бокам кровати — это выход из ситуации, когда места в обрез.
В первом варианте окно свободно и изголовье расположено правильно. Здесь даже получилось разместить небольшой туалетный столик.
Во втором варианте кровать зажата в угол и доступ к ней только с двух сторон, но зато здесь у нас имеется и нормальный шкаф, и удобный небольшой столик.


В этих вариантах вход в спальню расположен с угла комнаты напротив окна.
В первом варианте кровать встает более-менее удобно, к ней свободно можно подойти со всех трех сторон, но из-за шкафа в комнате стало тесно.
Во втором варианте кровать находится в углу и доступ к ней только с двух сторон. Зато по центру комнаты есть свободное место.


Вход с угла в спальне 7 кв. м позволяет распределить мебель по противоположным углам.
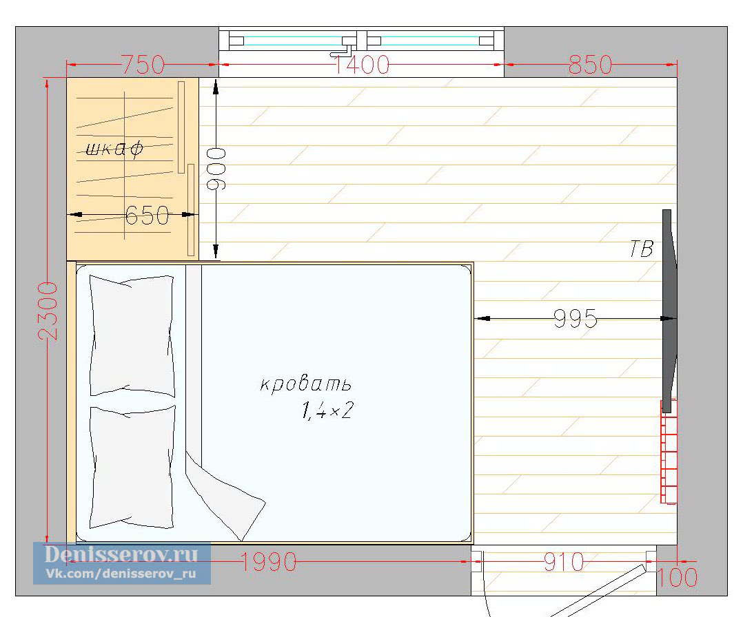
В первом варианте кровать шириной всего 1.4 метра. Так как, если взять кровать размером больше, она сюда уже не войдет. Но зато в этом варианте удалось поставить в спальню достаточно большой шкаф-купе.
Во втором варианте планировка более компактная. Шкаф удобно встал в свободный промежуток между стеной и кроватью.


Неплохой вариант получается в том случае, если вход находится по центру комнаты.
В первом варианте, вместо мини-тумбочек, использованы шкафчики на заказ. Сам вход в спальню обрамлен так же неглубокими шкафами. Благодаря ширине кровати — всего 1.4 метра, по бокам осталось достаточно много места.
Второй вариант достаточно простой. Мебель в спальне расположена по периметру, а в центре остается немного свободного пространства.
Подводя итоги, можно сказать следующее:
Планировка спальни 7 кв. м возможна. Но, почти всегда приходится идти на компромиссы. Либо кровать зажата в угол и доступ к ней невозможен с обеих сторон, либо кровать находится в центре, но в комнату не входит ни стол, ни нормальный шкаф.





