Подготовка чертежа
Размеры скамьи должны соответствовать индивидуальным требованиям. Для этого можно воспользоваться стандартными параметрами:
- длина опор составляет 97–122 см;
- расстояние между стойками — 52 см;
- высота передней части лавки — 83 см, задней — 34 см;
- параметры подставки под задние опоры — 30 см, под передние — 22 см.
Длина лежака регулируемой конструкции в задней части достигает 16 см, в передней — 94 см. Наклонная скамья для жима имеет другие параметры: в задней части — 36 см, в передней — 114 см. Показатели ширины лавки зависят от комплекции спортсмена и площади помещения, в котором будет стоять тренажер. В среднем размеры достигают 29–32 см. Специалисты не рекомендуют использовать габариты меньше стандартных, поскольку это может негативно отразиться на деятельности мышечной системы, а значит, и на результате тренировки.
Чертежи можно составить самостоятельно либо найти готовые в открытом доступе. На эскизе должны отображаться все конструктивные особенности будущего изделия, размеры каждого элемента. При необходимости исходные параметры меняют в соответствии с индивидуальными требованиями. Спортсмены, которые ходят в тренажерный зал и занимаются на профессиональном оборудовании, смогут снять мерки и на их основе разработать собственную схему.
Советы по изготовлению скамейки-трансформера для дачи своими руками
Обычная скамья для пресса
Этот вариант тренажёра довольно простой в изготовлении. Он обеспечивает полноценное занятие тренировок и за счёт него можно добиться хорошего результата в короткие сроки. Чтобы соорудить конструкцию, необходимо купить следующие материалы:
- Прочная деревянная доска для пресса шириной 30 см и длиной 100 см. Толщина 3 см, если применить доску меньшей толщины, то она будет выгибаться под телом, следовательно, эффективного результата будет сложно добиться.
- Металлические трубы диаметром 5 см, могут быть квадратного и круглого типа.
- Поролон или другой материал чтобы не расцарапать спину о доску.
Перед изготовлением скамьи нужно высушить доску и выполнить обработку антисептиком. В процессе высыхания древесины, следует заняться сборкой металлического каркаса.
На ширину доски укладываются две трубы длиной 120 см, а вверху и внизу вырезаются две штуки на ширину доски, только одна должна быть длиной на 60 см – это необходимо для устойчивости скамьи для пресса. Она монтируется на основании площадки. Конструкция должна напоминать прямоугольник.
Далее соединяются две трубы по Т-образной схеме. В центре монтируется перекладина для ног. После изготовления, конструкцию в форме «Т» необходимо перевернуть и приложить к прямоугольнику. Они соединяются куском трубы большего сечения, допускается использовать уголок.
Далее на доску набивается мягкое покрытие. В трубе делаются отверстия под болты, желательно 5 штук на одну сторону и 2 на основание. В конце осуществляется закрутка доски. Металлический каркас можно покрасить в чёрный цвет. Сборка каркаса делается при помощи сварки.
https://youtube.com/watch?v=2shI3TldERc
Как сделать скамейку для жима лёжа своими руками
Если в вашем арсенале отсутствуют спортивные достижения на поприще самостоятельных занятий тренировками, то на первом этапе будет вполне достаточно соорудить простую скамью без опорной спинки. Да и сделать её проще простого без всяких чертежей. Прикинуть необходимые параметры можно просмотрев пару видеоуроков в сети.
Эта скамейка представляет собой доски, закреплённые на каркасе. Последний отделан дермантином или кожей. Никаких стоек или перекладин для жима здесь не предусмотрено. Через какое-то время, когда упражнения усложнятся, скамейку дорабатывают.
Никаких сложностей с монтажом скамьи для жима лёжа не возникает. Все данные есть в сети, а если потребуется, то размеры всегда можно снять прямо в зале с заводского тренажёра. Наиболее громоздкая скамейка имеет четыре опоры, но её считают не очень удобной.
Хуже ли громоздкая скамейка? В общем нет. Просто нет смысла громоздить дополнительные конструктивные элементы.
Простой вариант
Основой конструкции скамьи для жима лёжа в данном случае служит профильная труба. Наиболее подходящим является её размер 40х40 мм. Отроги на стойках делают из полос металла шириной около 40 мм. Нужной конфигурации можно легко добиться, загнув полоски ударами молотка, а затем приварив готовое изделие сверху на профтрубу. Заключительный этап – просверлить дыры для крепёжной фурнитуры и закрепить на раме подходящую по размеру доску или лист фанеры.
Изготовление наклонной скамьи для жима лёжа
Этот тип популярного тренажёра немного сложнее предыдущего.
Не нужна такая приставка – используйте обычную опорную трубу диаметром 40х40 мм, как и в предыдущем варианте.
Спинка в данном случае должна обязательно регулироваться. Для этого нужно прочно приварить к опорной раме металлическое продолговатое кольцо. Никаких дополнительных отверстий в скамье делать не нужно – доска крепится на регуляторе. Для прочности регулируемая спинка снабжается каркасом, сваренном из профтрубы диаметром 20х20 мм.
Затем сверлят четыре отверстия на каждой из стоек. Лучше всего сверлить их обычной дрелью, точно по нанесённой заранее разметке. Такую спинку называют простой, т. к. она имеет всего пять положений. Её наклон не превышает 45 0 .
Сборка скамьи со стойкой и спинкой
Установить спинку на 90 0 можно только соорудив дополнительный каркас с упором в нижней области скамейки. Стойки в держателях не нуждаются.
В каркасе насверлено множество дыр, а фиксация штырём открывает широкий выбор наклона спинки. Надёжно зафиксирует опоры штырь, продетый в боковое отверстие рамы.
Как выполнить стойки? Стойки, которые легко выдвигаются, можно сделать используя дополнительную конструкцию. Делают их из профтрубы диаметром 30х30 мм при использовании опор 40х40 мм. Держатели стоек изготавливают из металлической полосы. Монтаж этих составляющих ничем не отличается от вышеописанного.
Для повышения функциональности скамейки для жима лёжа можно на стойки закрепить поручни и использовать их как брусья.
Чем обшить скамейку? За основу скамьи можно взять фанеру (12 мм) и обшить её дермантином.
Для большего комфорта при занятиях на тренажёре под слой дермантина следует положить поролон. Во избежание смещения материала, на дермантин предварительно наносят клей. Крепление обивки проводится металлическими скобами из специального пистолета.
Таким образом, вы видите, что довольно просто самостоятельно сделать скамью для жима лёжа
Важно – набраться опыта, изучив предлагаемые инструкции, чтобы в вашем доме появился отличный тренажёр для постоянных спортивных занятий
УНИВЕРСАЛЬНАЯ СКАМЬЯ (4 чертежа)
Также позволяет установку в малогабаритной квартире. Включает в себя:
горизонтальную скамью; наклонную скамью; параллельные брусья; стойки для приседаний; блочную конструкцию для выполнений трицепсовых разгибаний.
Основной недостаток тренажера заключается в том, что блочная конструкция не имеет направляющих, из-за чего происходит раскачивание груза при выполнении трицепсовых разгибаний. Кроме того, стойки для приседаний далеко не идеальны для выполнения приседов, с точки зрения безопасности. В остальном — прекрасный тренажер для установки в малогабаритной квартире.
Скамья для жима лёжа своими руками: чертежи
Где взять чертежи для изготовления скамьи для жима лёжа? В сети их достаточно много, причём имеются различные чертежи для изготовления скамьи: со спинкой и без, с фиксаторами и самые примитивные варианты. Если вы — начинающий спортсмен и пока не можете похвастать выдающимися результатами в сфере проведения силовых тренировок без тренера, то обычная простая скамья без спинки вам вполне подойдёт на начальных этапах, тем более, что делать её проще всего, и чертежи для этого не потребуются. Достаточно будет просмотреть несколько видеороликов по теме для того, чтобы понять, что и к чему.
Такая скамья будет представлять собой обычные доски на каркасе, оббитые дерматиновым или кожаным покрытием, без каких-либо стоек или специальных брусьев для отжиманий. Со временем, по мере усложнения упражнений, можно будет усовершенствовать скамью под себя.
Если у вас есть желание сделать скамейку для выполнения жима лёжа, то никаких препятствий для этого быть не должно. Изучите чертежи в Интернете, а при необходимости — снимите размеры с готового тренажёра в спортивном зале. Самая тяжёлая скамья — на четырёх опорах, она же считается наиболее громоздкой и неудобной. Поэтому поговорим о том, как сделать своими руками скамейку на трёх опорах из трёх стоек.
Как влияет на функциональность скамьи её громоздкость? Никак, просто использовать для её изготовления лишние конструкции не имеет смысла.
Критерии выбора
Если скамью для жима лежа, все же решено купить, нужно придерживаться таких критериев:
- Практичность изделия, которая достигается качеством материала.
- Отсутствие заеданий при регулировке элементов тренажера;
- Наличие гипоаллергенного и водоотталкивающего покрытия;
- Если тренажер будет складной, это позволит убирать скамью после занятий, освобождая тем самым свободное пространство.
- При отсутствии партнера по занятиям, нужно выбирать изделие со страховочными упорами, которые обеспечивают безопасные занятия без возможности падения штанги на грудь или получения других травм.
Данные критерии также актуальны и при изготовлении скамьи своими руками. Для получения качественного результата необходимо использовать только качественный и прочный материал.
Для чего нужна скамья для жима и ее основные характеристики
Для занятий силовым тренингом дома потребуется скамья для жима и подставка под штангу, поскольку класть между подходами снаряд на пол крайне сложно и неудобно. Задача облегчается, когда рядом есть партнер, но случается это редко, поскольку, тренировки, как правило, проводятся самостоятельно.
В интернет много статей, которые описывают, как изготовить самодельную скамью для жима, являющуюся одним целым со стойкой для штанги – такой себе тренажер для жима два в одном. Вариант этот наиболее простой, но облегчающий проведение тренировок.
Но он в изготовлении посложнее. Высоту стойки для штанги легко изменять, сама же она – отдельный элемент тренажера. Изготавливают конструкцию согласно приведенным ниже чертежам, оборудуют трубкой, которая разрешает делать захват ногами. Это дает возможность выполнять на тренажере другие упражнений: разгибание на трицепс, прокачку пресса и т.д.
С помощью чертежей и фантазии легко собрать много комбинаций: самодельную скамью для жима в положении «лежа» можно выполнить как одно целое с регулируемой по высоте подставкой под штангу, а так же, выполнить их как два отдельных элемента – самодельная скамья для жима и подставка неизменной высотой.
Трубку для захвата ногами по желанию – делать или нет. Это решает мастер, взявшийся изготовить тренажер. В результате получиться должна конструкция, аналогичная предлагаемой ниже.

Теперь подробнее о процессе изготовления.
Карточки (таблички) ошибок
После того как сигнализация сработает и появятся зажженные световые сигналы, судья (судьи), не засчитавший поднятый вес, должен поднять соответствующую карточку (табличку), указывающую на причины неудачного подхода. Система номерных судейских сигнальных карточек (табличек) для сообщения о причинах неудачного подхода
Цвет карточек:
Ошибка № 1 – красная карточка
Ошибка № 2 – синяя карточка
Ошибка № 3 – желтая карточка
| Приседание | Жим лежа на скамье | Тяга |
|
1 (красная)
Ошибка в сгибании ног в коленях и опускании туловища до такого положения, когда верхняя часть поверхности ног у тазобедренных суставов находится ниже, чем верхушка коленей |
1 (красная)
Штанга не выдержана в неподвижном положении на груди с определенной и видимой паузой |
1 (красная)
Неполное выпрямление ног в коленях при завершении упражнения Ошибка в принятии вертикального положения с отведенными назад плечами |
|
2 (синяя)
Ошибка в принятии вертикального положения с полностью выпрямленными в коленях ногами в начале и в конце упражнения Всякое перемещение грифа из стартового положения вниз вдоль спины атлета более чем на толщину (диаметр) самого грифа во время выполнения упражнения |
2 (синяя)
Любое явное (чрезмерное) неравномерное выпрямление рук во время выполнения жима Любое движение штанги вниз во время выполнения жима Отсутствие выжимания штанги на полностью выпрямленные руки при завершении упражнения |
2 (синяя)
Любое движение штанги вниз прежде чем она достигнет финального положения. Если штанга оседает при отведении плеч назад, то это не является причиной того, чтобы не засчитывать поднятый вес Поддержка штанги бедрами во время подъема. Если штанга скользит по бедрам при подъеме вверх, но при этом ими не поддерживается, это не является причиной того, чтобы не засчитывать поднятый вес |
|
3 (желтая)
Шаги назад или вперед, хотя боковое горизонтальное движение подошвы и покачивание ступней между носком и пяткой разрешаются Ошибка в соблюдении сигналов старшего судьи при начале или завершении упражнения Двойное вставание (подскакивание) из нижнего положения приседа или любое движение вниз во время вставания Касание штанги или спортсмена страхующими (ассистентами) между сигналами старшего судьи для облегчения выполнения приседания Касание ног локтями или плечами; разрешается легкое касание, если оно не помогает подъему штанги Любое бросание или сваливание штанги на помост после завершения приседания Несоблюдение любого из требований, содержащихся в описании правил выполнения приседания |
3 (желтая)
Поднятие и опускание, подскакивание или движение вниз (вдавливание в грудь) штанги после того, как она была зафиксирована в неподвижном положении на груди таким образом, что это помогает атлету Ошибка в соблюдении сигналов старшего судьи при начале или завершении упражнения Любое изменение в исходном положении во время выполнения упражнения, т.е. любой подъем (отрыв) плеч, ягодиц от скамьи или ступней ног от поверхности помоста (блоков), или передвижение рук по грифу. Допускаются легкие или незначительные движения ступней ног. Носки и каблуки должны оставаться на поверхности помоста (блоков) Касание штанги или спортсмена страхующими (ассистентами) между сигналами старшего судьи для облегчения подъема штанги Любое касание ступнями ног атлета скамьи или ее опор Умышленное касание грифом стоек при выполнении жима, которое облегчает подъем штанги Несоблюдение любого из требований, содержащихся в описании правил выполнения жима лежа на скамье |
3 (желтая)
Опускание штанги до получения сигнала старшего судьи Опускание штанги на помост без контроля обеими руками, т.е. выпускание штанги из рук Шаги назад или вперед, хотя боковое горизонтальное движение подошвы или покачивание ступней между носком и пяткой разрешаются Несоблюдение любого из требований, содержащихся в описании правил выполнения тяги |
Сборка скамьи для жима лежа [ править | править код ]
Сама сборка выглядит так. Станина устанавливается в штатное положение и поперчина на ее левой колонне разворачивается на 90 градусов (см. чертеж №3). Затем правая часть станины приподнимается, под нее подводится верхняя перекладина стоек, и два вертикальных болта В1 и В2 (см. чертеж №2) в верхней части станины входят сверху в соответствующие отверстия А1 и А2 перекладины. Далее нижняя перекладина стоек прижимается к нижней части правой колонны станины, при этом в отверстие перекладины А3 проходит горизонтальный болт В3, выступающий из колонны, и на этот болт закручивается гайка с приваренной ручкой. Таким образом, верхние болты В1 и В2 не дают стойкам поворачиваться в вертикальной плоскости, а нижний В3 — наклоняться стойкам и подниматься станине относительно стоек (что привело бы к выпадению верхних болтов из отверстий верхней перекладины стоек)
Последнее немаловажно, поскольку при выполнении разгибания ног на рычаге полной нагрузки бывает достаточно для того, чтобы левая часть начинала перевешивать и стойки приподнимались, в таких случаях приходится навешивать со стороны стоек дополнительный груз
Скамья кладется на станину таким образом, чтобы отверстия А4 и А5 (см. чертеж №4) в крепежных уголках скамьи совпали с отверстием А6 (см. чертеж №3) в левой верхней части станины, после чего в эти отверстия продевается металлический стержень. Затем правая часть скамьи приподнимается, и под нее подводится стальная труба, которая своими концами ложится на специальные уголки, привинченные с внутренней стороны стоек. Этих уголков две пары: нижняя (У1) используется для крепления скамьи в горизонтальном положении, верхняя (У2) — в наклонном. Правая сторона скамьи опирается на эту трубу как раз той частью, которая укреплена металлическими уголками. Нагрузка от скамьи направлена вниз, и при наклонном положении — еще и вправо, поэтому труба оказывается зажатой между стенками стоек справа, уголками снизу и скамьей сверху, что делает такое соединение надежным без дополнительных креплений.

Рычаг крепится к станине одним болтом, проходящим через отверстия А8 и А9 (см. чертеж №3) в специальных пластинах левой части станины и отверстие А7 в рычаге.
Таким образом, стойки крепятся всего одной гайка с ручкой, скамья — стержнем, рычаг — одним болтом (гайка здесь необязательна). Такая конструкция позволяет разбирать и собирать тренажер всего за минуту и без помощи инструментов.
Изготовление деревянной римской скамьи
Сделать деревянную римскую скамью может даже начинающий мастер. Для нее потребуются бруски, доски. Если досок в наличии нет, то подойдет обычный лист фанеры.
Этот тренажер выполняется по следующему принципу:
- Потребуется взять подходящую по размерам скамью, которую можно изготовить из одной широкой доски толщиной от 3 до 5 см.
- Необходимо приобрести две вертикальные стойки. Их сечение должно составлять около 50×50 мм, а высота — 1 метр. От краев каждой стойки нужно сделать отверстия диаметром около 3 см, в которые затем надо вставить края перекладины для ног.
- Чтобы изготовить перекладину для ног, следует взять круглый брус длиной в 1 метр и диаметром около 3 см. Края перекладины нужно вставить в отверстия.
- Потребуется опорная перекладина длиной в 1 метр и сечением 50×50. Она будет соединять 2 стойки, закрепить ее нужно в середину.
- Опора, которая потребуется для сиденья. С ее помощью спинка закрепится на перекладине. Изготовить ее можно из бруса или доски шириной от 3 см. Опора по длине должна быть немного короче сиденья.
- Ребра жесткости. Сиденье будет более надежным, если для усиления будут использоваться ребра жесткости. Снизу к спинке нужно прикрепить ребро из утолщенного материала.
- При сборке конструкции стоит использовать обычные саморезы.
Главным недостатком этого тренажера является его громоздкость. В маленькие квартиры установить такую конструкцию не получится.
Какие материалы понадобятся
Даже та сумма, которая потратится на различные материалы, все равно будет меньше, чем стоит уже готовая, сделанная на заводе скамья для жима лежа. Своими руками придется сделать очень многое. Но это, безусловно, того стоит.
Прежде всего, перед началом работы стоит приготовить материалы, из которых будет сделана скамья для жима своими руками. Чертежи и подсчеты подскажут, сколько и чего нужно закупить. Какие же материалы понадобятся для изготовления данного снаряда?
Сделать скамью для жима своими руками лучше всего из профильной трубы. Это такой вид металлопроката, который продается в строительных магазинах и на рынках. Он бывает квадратным и прямоугольным. Лучше всего, конечно, брать квадратный, так как он более практичный. Такого металлического профиля нам понадобится всего лишь один вид, из которого будет сделана вся конструкция скамьи и стойки. Размеры данного профиля должны быть сорок на сорок миллиметров. Толщина стенок (поперечного сечения) равняется двум миллиметрам.
Еще понадобятся две стальных пластины прямоугольной формы. Желательно, чтобы толщина их была не менее полусантиметра. Из них будут изготавливаться держатели штанги. На каждом конце их следует загнуть так, чтобы получился крючок. Также нужны болты с гайками и резиновые подкладки. Из-за того, что вся конструкция сделана из металла, она слишком шумит и может царапать пол. Для того чтобы избежать этого, их наклеивают на все основание скамьи. Так она становится более устойчивой, а значит, лучшей.
Сам лежак будет сделан с помощью доски, поролона и кожзаменителя. Такое ложе выйдет очень прочным, мягким и практичным, а самое главное — долговечным.
Преимущества и недостатки
Очень сложно оценивать плюсы и минусы скамьи, если говорить о тренажере в общем. Намного проще рассматривать каждую модель отдельно. Тем не менее существуют общие критерии оценки, которые включают как преимущества, так и недостатки.
К основным преимуществам относят:
- Широкие возможности для тренировок (скамья со штангой и парой гантель позволяет тренировать почти все мышцы тела).
- Простоту установки в доме даже в условиях ограниченного пространства.
- Высокую безопасность при выполнении упражнений (считается одним из самых безопасных тренажеров).
- Простое применение и понятные упражнения. Даже новички понимают, как правильно использовать скамью в жимах и других движениях.
- Долговечность и износостойкость. Вся конструкция обычно покупается с расчетом на долгую эксплуатацию.
- Финансовую выгоду. Даже профессиональные модели дешевле остальных тренажеров, что делает скамью максимально доступной.
Теперь рассмотрим возможные недостатки. Основным минусом считается надежность. Но это зависит от желания сэкономить у владельцев спортзалов, а не от самих атлетов. Естественно, разболтанная или ненадежная конструкция должны вызывать опасения, особенно если вы работаете с большими весами.
Вторым недостатком считается «болезнь» большинства дешевых моделей с раздельной конструкцией. В таких тренажерах ухудшается устойчивость, а сама рама может «плавать» вперед и назад. Также условным недостатком могут выступать неудобные фиксаторы на стойке, которые либо ненадежно удерживают гриф, либо мешают возвращать штангу на место.
Существует несколько видов жимовых скамеек, которые отличаются своими функциями. Рассмотрим их и выясним главное преимущество каждого вида:
Универсальная. Позволяет регулировать уровень наклона спинки (от горизонтального к наклону вверх). Подходит для жимов под любым углом, но не отличается прочностью конструкции.

Горизонтальная нерегулируемая скамья. Классическая модель, которая есть в любом зале. Состоит из самой скамьи и рамы. Чаще всего никак не регулируется.

Для жима под любым углом. Спинка может подниматься вверх или опускаться вниз в зависимости от упражнения.

- Скамья без рамы. Обычно состоит из лежака с регулируемой спинкой. Применяется для силовых рам и тренажеров Смита.
- Обычная скамья без регулируемой спинки. Самая простая конструкция, которая есть в зале. Применяется для разных упражнений.
- Тренажер для жима в положении сидя – отличается сидением с вертикальной спинкой и высокой рамой.

По типу конструкции тренажеры делятся на моноблоки и трансформеры. Первые отличаются целостностью конструкции, здесь рама и лежак едины. Трансформеры представляют собой блочные многофункциональные конструкции. Такие модели оснащены дополнительными съемными блоками для выполнения разных упражнений (на пресс, гиперэкстензии, отжиманий на брусьях и прочих).
В спортзалах предпочитают устанавливать цельные конструкции благодаря их надежности, в то время как трансформеры я больше рекомендую для домашних залов. С их помощью можно расширить свой арсенал тренировочных возможностей.
Разные скамейки
Самая простая, но и замечательно прочная спортивная лавка-«ипполитовка» может быть изготовлена по чертежу на рис; настил – прочная доска от 40 мм. С ней хорошо знакомы те, кто проходил в армии курс молодого бойца; по крайней мере, в прошлые времена. «Духи»-горожане скоро начинали смотреть на ипполитовку с изумлением и опаской: сколько, оказывается, всяких упражнений можно на ней проделывать! И она же отлично входит в состав 4-опорного тренажера.

Каркас спортивной лавки
На след. рис. – наклонная скамья для пресса. Такую, ввиду ее компактности и пользы, не помешает завести отдельную, если места в жилище достаточно. Вследствие отсутствия прямых углов материал послабее – профтруба 40х40. Упоры для ног – пруток 10 мм с резьбой на концах, обрезиненный до нужного размера. Резиновые муфты съемные: нижний упор регулируемый, а верхний убирается, если необходимо делать упражнения, при которых он мешает.

Чертежи наклонной скамьи для пресса
Далее на рис. – компактная силовая скамья со стойками для штанги. Упражнения на ней делают в основном сидя.Можно также качать пресс, глубоко прогибая спину. В таком случае упорами ног будет поперечная балка А, и тогда ее нужно обтянуть чем-то мягким или надеть резиновую муфту. Материалы – профтруба 40х40, а держатели штанги из стальной полосы толщиной от 6 мм.

Компактная силовая скамья
Следующий образец – атлетическая скамья уже для крепких ребят, уверенно управляющихся со штангой веса, равного их собственному, т. наз. парта Скотта. Материалы, соответственно – профтруба 60х60х2,5 и 50х50х2. Держатели грифа из такой же полосы, как и в пред. случае; сиденье и столик из фанеры от 20 мм.

Скамья с партой для упражнений с тяжестями
Несколько тренажеров
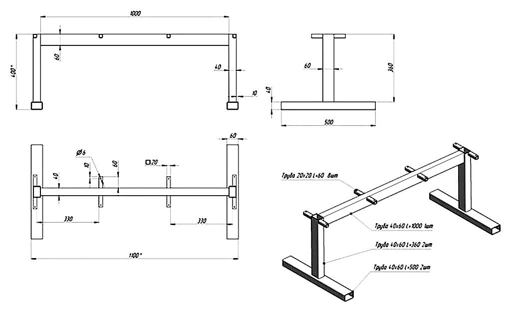
Как намертво связать скамью-«ипполитовку» со стойкой для штанги, превратив в достаточно компактный 4-опорный тренажер, показано слева на рис. Там же справа – размеры и конструкция скамейки-трансформера под ту же раму. Основной материал там и там – профтруба 40х60. О фиксаторах стоек с держателями штанги вспомним ниже.

Домашний тренажер и скамья-трансформер к нему

Простой трехопорный домашний тренажер
Наконец, далее на рис. – чертежи и спецификация элементов на полнофункциональный домашний тренажер со скамьей-трансформером для жима и пресса
Обратите внимание на узел, выделенный красным. Это – наиболее простой и надежный для исполнения в домашних условиях способ фиксации стоек штанги
Штыри-фиксаторы (диаметром от 12 мм) будут, конечно, понемногу изнашиваться, но их никогда не заклинит и не закусит.

Полнофункциональный домашний тренажер
Еще о штанге
Как уже сказано, не удержанная на весу штанга способна причинить тяжелые увечья, вплоть до фатального исхода. И направить ее гриф в держатели в таких случаях нереально. Зато реально – предусмотреть 2 отрезка цепи, надежно закрепленные на стойках штанги. На других концах цепей – карабины, их набрасывают на гриф. Длину цепных страховочных звеньев берут такой, чтобы, держа штангу на полностью вытянутых руках, цепи провисали, но гриф отпущенной штанги не доставал до груди. Чтобы карабины не сползали на грифе, их достаточно примотать скотчем. Вдруг штанга рухнет, скотч, конечно, не выдержит, оба карабина съедут на один конец грифа, но дело обойдется испугом и, возможно, побитым полом.
О деревянных атлетических скамьях
Со штангой на деревянных спортивных снарядах заниматься нельзя, их конструкция не выдержит. Зато в ситуациях, возникающих вследствие неловкости тренирующегося, дерево «отдает» по телу куда менее чувствительнее, чем металл. Поэтому деревянными скамейками для жима и пресса предпочтительно пользоваться начинающим и несовершеннолетним. Кроме того, деревянные спортивные скамьи и тренажеры можно соорудить на даче или в загородном доме из остатков стройматериалов.

Чертежи наклонной деревянной скамьи для пресса
Конструкция наклонной деревянной скамьи для пресса и спецификация к ней показаны на рис., а на след. рис. – чертежи деревянного тренажера с наклоняемой скамьей и рычагом для упражнений ногами с грузом. Чтобы дерево держало эксплуатационные нагрузки, применена блочная система подвешивания грузов: они висят на нисходящих ветвях троса А. Поперечные балки Б – стальные обрезиненные.

Деревянный домашний тренажер
Что собой представляет и зачем вообще нужна
Жимовая скамья считается одним из главных тренажеров в любом зале. Конкуренцию по востребованности могут составить лишь силовая рама, стойка и пара других тренажеров. Это неудивительно, потому что на лавке можно выполнять до 60-65% всех упражнений.
И я говорю не только о базовых упражнениях. Речь идет о многих движениях: от жимов со штангой и разводок, до выпадов, и даже кардионагрузок. Также можно делать разные упражнения на мелкие мышечные группы: речь идет о сгибаниях/разгибаниях на предплечья, суперменах с весом и других движениях.

Скамейки бывают разными, поэтому для начала рассмотрим строение тренажера. Классическая горизонтальная скамья представляет собой единую конструкцию, которая включает лавку и стойку для штанги с фиксаторами. Стойка и скамья могут быть раздельными, хотя это чаще присуще моделям категории «эконом» и оборудованию для тренировок в домашних условиях. Сама штанга не является обязательным элементом скамьи, хотя многие модели продаются с олимпийским грифом и блинами.
Хочу акцентировать ваше внимание на том, что существует несколько видов скамеек и они имеют существенные отличия. Это касается не только моделей от разных производителей (в основном это высота и общие размеры), но и функциональности
Если же говорить об основном назначении, то скамья направлена на развитие мышц груди и плечевого пояса.
Модификации конструкции
Скамейки для жима подразделяются на два вида: горизонтальные и регулируемые. Они отличаются как визуально, так и функционально. Горизонтальная скамья для жима лежа на четырех фиксированных опорах – самая простая базовая конструкция. Она подразумевает только лежачее положение пользователя во время тренировки. Такой спортивный инвентарь малофункционален и подходит в основном для проработки грудных мышц, а также фронтальных дельтовидных.
В конструкции с тремя опорами две стойки служат для установки различного снаряжения и лепестков для штанги. Чаще всего ее комплектуют таким спортоборудованием:
- блоком для ног – предназначен для выполнения упражнений на бедра, икры, ягодицы, а также на скручивания для работы пресса;
- дополнительными поручнями – позволят эффективно тренировать нижнюю часть пресса;
- выдвигаемыми стойками – дают возможность выполнения упражнений со штангой без дополнительной страховки.
- брусьями – для отжиманий.
Еще один вид спортивного снаряда для жимов лежа – регулируемая скамья. В ней лежак (спинка) может настраиваться по высоте. В комплектацию входят стойки с различными приспособлениями: скобами, стопорами, фиксаторами. Занятия на такой скамье можно проводить как сидя, так и лежа, используя снаряжение для гантелей и штанги. На этом тренажере можно выполнять жим под разными углами, прокачивая многие группы мышц. Такая регулируемая скамейка наиболее удобна для установки в квартире и не требует использования других тренажерных снарядов, так как выполняет много функций.
Горизонтальная на четырех фиксированных опорах
С тремя опорами
Регулируемая
Бесплатные Бонусы
В комплекте со Сборником Вы дополнительно получаете 3 электронные книги совершенно бесплатно:
Бонус #1 «Справочник по питательным веществам и калорийности продуктов питания» (объем 310 Kb).
Содержание питательных веществ в основных продуктах питания: белков, жиров, углеводов, витаминов, минералов, калорий.
Незаменимая вещь при разработке индивидуальных диетических программ.
Бонус #2 «55 рецептов приготовления коктейлей (Железный Коктейль)» (объем 314 Kb).
В книге даны рецепты приготовления коктейлей, смесей и напитков для наращивания мышечной массы, восстановления после тренировок, обеспечения организма необходимым количеством калорий, и пр.
Для спортсменов-силовиков. Электронная книга с возможностью распечатки рецептов.
Бонус #3 «PFT (Power Factor Training) — Новая Методика Травмобезопасного и Фантастически Быстрого Наращивания Массы и Силы» (объем 359 Kb).
С помощью методики, разработанной Джоном Литтлом, Вы сможете поднять тренировочные веса до 150% по сравнению с обычными весами, не опасаясь получить травму. Методика основана на частичных повторах. На презентации системы PFT она была проиллюстрирована примером культуриста с 15-летним стажем. Принято считать, что после такого длительного срока тренировок мышечная масса исчерпывает потенциал роста и адаптации. С помощью PFT культурист прибавил в весе 7,7 кг за неделю! Причем его показатель в жиме лежа вырос на 22,7 кг за неделю! Для эффективной практики метода необходима силовая рама.
Виды тренажеров для пресса
Существует несколько разновидностей тренажеров для пресса.
В тренажерных залах обычно используются:
- Типовая скамья для пресса. Такая скамья может располагаться под разным углом. Больший угол наклона доски требует больших усилий, но при этом позволяет добиться внушительного результата. Подобная скамья считается самым дешевым вариантом и стоит в пределах двух тысяч рублей.
- Доски с регулируемым наклоном спинки. Прекрасный вариант для развития сразу нескольких групп мышц: живота, талии, ягодиц и спины. Средняя стоимость составляет около трех тысяч рублей.
- Скамьи с выгнутой спинкой. Тренировки с данной скамьей проходят с повышенным уровнем нагрузки. В основном такие тренажеры используют продвинутые атлеты, которые занимаются несколько лет.
- «Римские» скамейки для пресса. Считаются самым «продвинутым» видом тренажера. Позволяют накачать кубики живота с поднятыми ногами. При постоянных тренировках можно добиться красивого рельефа.
Скамья для пресса практически не имеет недостатков. Стоит учесть, что высоким людям крайне проблематично подобрать доску под индивидуальные параметры тела.

Преимущества использования скамейки
Купив или изготовив скамейку самостоятельно, можно приступать к первым активным тренировкам.
Достоинства использования скамьи для пресса:
- Возможность контролировать каждое свое движение.
- С помощью специального контроля можно увеличивать или уменьшать нагрузки, когда это потребуется.
- Выполнять упражнения на скамье с дополнительным весом намного безопаснее.
- Обычные тренировки становятся не только удобнее, но и в несколько раз продуктивнее.
- На скамье для жима и пресса можно выполнять намного больше типов физических упражнений.
Используя в арсенале оборудование такого типа, можно добиться прогресса достаточно быстро. Рельефный пресс и накачанное тело не заставит себя долго делать. С помощью скамьи можно выполнять намного больше упражнений, в том числе с гантелями и штангой.





