Некоторые дизайнерские хитрости
Значительную роль в визуальном расширении пространства и создании эффекта легкости малогабаритной квартиры играет правильное сочетание цвета, рисунка и материала отделки стен, пола и потолка. Дизайн двухкомнатной квартиры в хрущевке может основываться на некоторых хитростях, которые порой используют дизайнеры и профессионалы интерьерного дела:
- Пастельные цветовые тона с преобладанием светлых оттенков создают необходимый зрительный эффект, в то время как яркий и интенсивный цвет обеспечивает эффект визуального сжатия.
- Для небольших комнат подходит мелкий цветовой рисунок, орнамент.
- Высота комнаты зрительно увеличивается при белом или близком к белому цвете потолка. Можно использовать натяжные потолки.
- Эффект высоты обеспечивает разноуровневая конструкция потолка из гипсокартона. Правильный подбор осветительных приборов позволяет усилить эффект.
- Покрытие пола может быть светлым или цветным, но должно совпадать с общей цветовой палитрой комнатного интерьера. Цвет напольного покрытия тоже способен визуально раздвигать стены.
- Выбор мебели — важный элемент. Дизайн двухкомнатной квартиры в хрущевке подразумевает минимизацию количества предметов. Их следует подбирать в тон общему оформлению. Для маленьких комнат наиболее оптимальны раскладные столы, диваны раздвижного типа, многофункциональные комоды.
- Фотообои несколько вышли из моды, но при их правильном выборе можно обеспечить воздушность и визуальную безграничность помещения.
- Занавески на окнах дополняют общее впечатление об интерьере. В небольших помещениях не стоит развешивать громоздкие шторы, особенно темных оттенков. Лучше всего использовать легкие ткани светлой цветовой гаммы.
Выбор стиля и отделки
Главное требование дизайнеров при обустройстве двухкомнатной «хрущёвки» — это поддержание единой стилистики оформления интерьера для всех комнат. Если в точности придерживаться этого требования, то можно получить функциональное и очень красивое пространство. Подобное жилище отличает индивидуальный характер, а малометражность уходит на второй план
Согласитесь, мало кто станет обращать внимание на размер комнаты, если она будет отделана в духе лофт. Это помещение воспринимается как творческое пространство, а не простая «хрущёвка»
Грамотным решением для малометражки считается скандинавский подход. Его отличают светлые оттенки, природные текстуры и утончённая геометрия в дизайне декора. Такое сочетание удивительным образом придаёт помещению ощущение простора, лёгкости и света.
Современный стиль объединяет в себе всё самое лучшее от остальных дизайнов. Его отличает эстетика обстановки и продуманность каждой детали. Мебель здесь многофункциональная, преобладают зеркала, светильники и цветовое оформление — всё это играет на визуальное увеличение общего пространства и при этом выигрышно смотрится в интерьерах.
Неплохо вписывается в «хрущёвку» классика. Благодаря богатому текстилю и элегантной мебели можно создать изысканный интерьер, в подобной обстановке можно будет позабыть о скромных габаритах «хрущёвок». Особняком стоит хай-тек — это стиль будущего. Его отличает глянец, подсветка, светлые колеры и округлая мебель. Такой дизайн словно растворяет все границы и преображает «хрущёвку» до неузнаваемости.
Оптимальные варианты меблировки
Правильная меблировка двухкомнатной квартиры хрущевок обеспечит комфорт проживания, сделав план обстановки более функциональным. Цвет, форма мебели должны гармонировать с общей стилистической идеей интерьера, соответствуя цветовому решению отделки. Проверенные советы основываются на основных стилистических приемах:
- минимальное количество элементов мебели;
- применение модульных конструкций;
- легкие, складные варианты;
- стеклянные предметы, или зеркальные вставки;
- компактная угловая и подвесная мебель.
https://youtube.com/watch?v=TwzmeQfgRBs
Продажа современных барных стоек, оригинальных ширм и перегородок поможет разделить пространство, не утяжеляя его. Мебель должна быть максимально практичной и функциональной. Дизайн и варианты мебельного оформления как на фото при совмещении жилых помещений с кухней, или проходной план, предусматривают выбор предметов с устойчивой обивкой, или поверхностью, устойчивой к влаге, различным воздействиям. Следует подбирать элементы, учитывая легкость чистки.
Расстановка мебели в хрущевке в гостиной
Для гостиной в хрущевке характерна небольшая площадь, потому не стоит загружать имеющееся пространство громоздкой мебелью, обустроить комнату в духе минимализма либо в стилях модерн или хай-тек.
Оптимальным набором предметов мебели, при помощи которого одновременно удастся добиться комфорта, уюта и функциональности следует считать сочетание дивана либо небольшого мягкого уголка, тумбы и шкафа-купе.
При расстановке мебели в гостиной хрущевки имеется несколько вариантов, зависящих от количества комнат в квартире:
- В однокомнатной квартире следует правильно разграничить имеющуюся территорию и предпочесть раскладывающуюся мягкую мебель, которую можно использовать для каждодневного сна – выдвижные кровати и диваны;
- Если в квартире имеется две и более комнаты, то в гостиной следует предусмотреть установку мебели, имеющую ниши для хранения личных вещей, белья и одежды.

Примеры планировки двухкомнатной хрущевки разной площади
Большое количество типов хрущевки связано с тем, что здания строили по разным стандартам и на «скорую руку». Особых ГОСТов не соблюдали, так как главной задачей было – создать как можно больше жилищного пространства для граждан. Поэтому встретить можно как простую двушку в 42 метра, так и просторную квартиру с тем же количеством комнат, но на 50 кв. метров. Ниже предстоит разобрать уже готовые проекты, которые открывают перспективную перепланировку такого жилья.

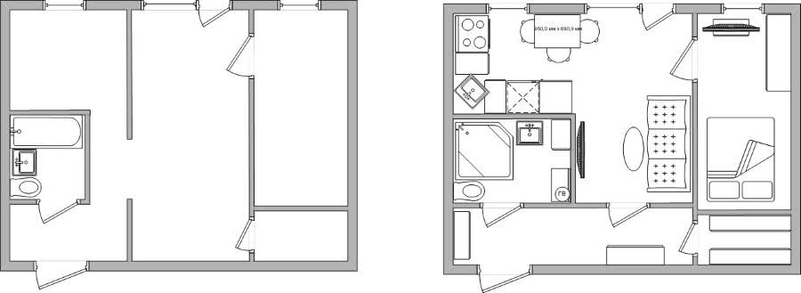
Двухкомнатная хрущевка до и после перепланировки – расширен санузел, кухня объединена с гостиной, значительно увеличена площадь входной зоны
42 кв м
Такие квартиры встречаются довольно часто. Усугубляется нехватка пространства тем, что раньше устанавливали встроенные места для хранения. Если их убрать, те же 42 кв. метра будут выглядеть совершенно по-другому. Ниже представлены варианты стандартной перепланировки, которой можно воспользоваться.

Варианты перепланировки двухкомнатной хрущевки площадью 42 кв. м.
43 кв м
Демонтаж антресолей и хранилищ позволит расширить часть коридора и санузла. Это положительно скажется на комфорте большой семьи. Фото перепланировки квартиры 2 х комнатной квартиры помогут разобраться с ограниченным пространством.

Благодаря перепланировке можно создать довольно просторную спальную комнату
44 кв м
Здесь можно поработать над увеличением гостиной за счет привлечения пространства, которые выделялось под балкон. Если он уже остеклен, то не составит большого труда убрать перегородку и отеплить эту часть.

На утепленном балконе можно организовать место для отдыха или рабочий кабинет
При переносе отопления необходимо вызвать специалиста, который спроектирует план и подготовит документацию к оформлению. Самостоятельно заниматься переносом в старых постройках строго запрещенное.
45 кв м
В данном случае можно полностью избавиться от узких коридоров и глухих стен. Проекты многих зданий имеют нелогические тупики, которые легко исправит стандартный план перепланировки. С основными деталями можно ознакомиться на готовых проектах перепланировки хрущевки и качественных фото 2 х комнатной квартиры.

Узкий коридор можно расширить, передвинув перегородку в глубь комнаты
И другие
В постройках, которые обладают площадью более 46 кв. метров, предусматривается вариант увеличения гостиной за счет присоединения коридора и кухни. Есть несколько положительных сторон такого варианта:
- Не будет глухих и бессмысленных стен.
- Экономия на освещении – будет больше попадать солнечного света.
- Пространство заметно становится больше, что позволяет воплотить даже смелые идеи.
Проекты перепланировки и ремонта двухкомнатной хрущевки – помогут разобраться с основными нюансами.

Яркий интерьер прихожей хрущевки после переноса перегородок
Варианты перепланировки
Внутренние стены и перегородки в «хрущевке» не несущие, потому сделать новую геометрию пространства можно без особого труда. Но все же лучше уточните у специалистов: дело в том, что некоторые люди уверены, что живут именно в «хрущевках» и начинают ломать несущие стены. Как бы это ни было парадоксально, именно так и бывает.
Рассмотрим распространенные варианты перепланировки.
«Еврооднушка». Маленького размера кухни и санузлы становятся основными минусами «хрущевки». С помощью перепланировки можно изменить метраж кухни. Так, жильцы решают убрать стену между кухней и соседней комнатой (чаще всего – проходной) и так в жилье получается просторная кухня-гостиная. Спальня в квартире остается изолированной, а совмещение кухни и гостиной выглядит достойным компромиссом. Лишняя стена уходит, а значит, для мебели остается больше места.
Демонтаж антресолей, кладовых, встроенных шкафов, ниш

Громоздкая антресоль
Главной загвоздкой в таких демонтажных работах является то, что одна или несколько стенок в подсобных помещениях всегда примыкает к несущей плите.
При сносе нужно быть предельно аккуратными, чтобы их не повредить.
При разборе встроенного шкафа или антресоли действуйте последовательно:
- Сначала освободите дверцы от петель
- Далее уберите дверные каркасы и навесы
- Аккуратно распилите деревянные планки и отделите их от конструкции
- Уберите крепления и освободите стену

Как сделать детский домик своими руками: из дерева и других материалов. Чертежи с размерами | (80 Фото Идей & Видео)
Первые шаги
Для оформления лучшего дизайна хрущевки необходимо заранее продумать будущий образ помещения с учетом личных предпочтений и имеющихся ресурсов (техники мебели и прочего). После станет ясно, что требуется докупить. Желательно заранее придумать весь интерьер, что и где разместить.

Одной из основных проблем хрущевок является недостаток места. Обычно такие квартиры малогабаритные и увеличить место не получится, зато можно использовать имеющееся пространство максимально эффективно. Лучше убрать лишние перегородки между комнатами, создав одно большое помещение.
Объедините вместе прихожую, гостиную, кухню. Вторую комнату можно оставить в качестве отдельной спальни. Либо сделать одну большую комнату. Рекомендуется разделить помещение квартиры, выделив пол разными цветами. Можно даже использовать для этого разные материалы. Например, если в гостиной квартиры был постелен ламинат, то пол кухни застелите линолеумом.
Статья по теме: Картины в современном интерьере: стиль и акценты

Также уберите стену между ванной и туалетом. Если вместо самой ванной установить душевую кабинку, найдется место чтобы установить стиральную машину.
Однокомнатная хрущевка: перепланировка
Молодые семьи, как правило, покупают однокомнатные квартиры. Однокомнатную хрущевку легко переделать в квартиру студию, что является для молодых людей отличным вариантом. В таком случае, избавляются от перегородок, отделяющую комнату и кухню, а также прихожую.
В том и другом случае, такое помещение, как санузел, остается не тронутым, поскольку его перемещать нельзя, если это не первый этаж.
На фото выше видно, что перепланировка частично коснулась и санузла, за счет перемещения двух стен на значительное расстояние. Это стена, обращенная в зал, и стена, отделяющая прихожую. За счет незначительного увеличения площади удалось поместить стиральную машинку. В малогабаритных комнатах всегда ощущается недостаток места, когда требуется установить современную бытовую технику. Хотя прихожая и получается не большая, зато в комнате достаточно места и можно установить гардеробную.
На другом фото представлен еще один вариант перепланировки 1 комнатной хрущевки. Этот вариант отличается тем, что объединили кухню и коридор. Двери в комнату смещены дальше от входа, что дало возможность, более оптимально использовать жилое пространство. В результате такого дизайна появилось место в коридоре под шикарный встроенный шкаф. Это не повлияло на функциональность кухни, а ее площадь увеличилась на 0,2 метра квадратных.
В последнее время многие жильцы практикуют еще один способ увеличения жилой площади – это совмещение лоджий и балконов. Но для этого нужно тщательно произвести утепление стен балконов и лоджий, а также, провести туда отопление. В результате можно получить еще одну комнату с оптимальной температурой, где можно разместить, например, рабочий кабинет.
Существует еще один вариант перепланировки однокомнатной хрущевки, расположенной в кирпичном доме. Здесь очень маленькие площади санузла и кухни, но перегородки размещены стандартно.
В данном случае, желательно отказаться от ванны в пользу душевой кабинки. Это позволит оптимизировать полезное пространство в санузле, расположив правильно сантехнику и поместив туда стиральную машину. При этом, одна из стенок получается скошенной, а площадь кухни не значительно, но увеличивается, хотя площадь прихожей несколько уменьшается.
Жилую площадь можно увеличить за счет расширения на балкон, утеплив его соответствующим образом. На балконе можно установить шкаф и рабочий стол. Подобная перепланировка довольно актуальна, если семья состоит из пяти человек: 3-х детей и 2-х взрослых. При этом, желательно установить одну двухэтажную кровать для детей. На очередном фото можно увидеть подобный вариант переделки жилой квартиры.
К сожалению, не всем по душе иметь квартиру-студию, как не все воспринимают санузел, где совмещены ванна и туалет. Многим не нравится отсутствие стен, когда нельзя посидеть на кухне незамеченным для окружающих, тем более, что это актуально при наличии детей, да еще в однокомнатной квартире.
В таком случае, перепланировка осуществляется за счет переноса перегородок, в зависимости от приоритетов. Боковую стенку прихожей нужно сдвинуть в сторону комнаты, а лицевая стенка подвинута, почти вплотную к двери в санузел. После подобных действий увеличивается площадь прихожей и теперь появляется возможность установки в прихожей встроенного шкафа и гардеробной.
Естественно, что площадь комнаты уменьшается, поэтому придется компенсировать недостаток площади за счет кухни. Несмотря на это, после переноса стены ближе к двери ванной, образовалось место для холодильника. В результате подобной перепланировки столовая часть кухни сдвинулась в комнату. Чтобы оптимизировать пространство, следует установить двери раздвижные или двери-гармошку.
При этом, комната получила Г-образную форму, где можно установить перегородку, чтобы разделить комнату на взрослую и детскую зону. По такому же принципу, можно из однокомнатной квартиры сделать двухкомнатную. Это имеет серьезное значение при наличии детей.
Существует еще один вариант перепланировки 1 комнатной квартиры, но только с другой изначальной планировкой. В данном случае переделка минимальная и сводится к обустройству перегородки из гипсокартона. Ее устанавливают так, чтобы она занимала не больше половины промежутка, чтобы во второй части было доступно освещение.
Как вариант, предлагается перепланировка угловой однокомнатной хрущевки, в квартиру студию с выделением спального места. В этой части квартиры может поместиться лишь кровать и шифоньер, но имеется один существенный плюс: спальня получается изолированной.
Гениальные варианты перепланировки хрущевки
Watch this video on YouTube
Составляем проект ремонта хрущевки
Успех преображения хрущевки будет зависеть от того, насколько качественно и детально вы продумаете все работы. И первое, с чем нужно определиться, – какую квартиру вы хотите получить после ремонта. Если не уделить этому этапу достаточного внимания, ваша работа не будет иметь конкретной цели, поэтому у вас не будет ориентира.
Чтобы четко обозначить желаемый результат, составьте хотя бы любительский план-чертеж будущего жилища. Его можно сделать как от руки, так и при помощи специальных компьютерных программ. Третий вариант более обстоятельный и дорогой – обращение к профессиональному дизайнеру.
Перед началом ремонта продумайте все детали
В плане должны быть указаны следующие сведения:
- площадь каждого отдельного пространства квартиры;
- тип отделки в комнатах;
- расположение мебели, техники, перегородок и прочих крупных элементов интерьера;
- границы зонирования помещений;
- цветовые решения каждой зоны.
Только после того, как все тонкости учтены в проекте, можно приступать к реализации задуманного.
Тонкости оформления поверхностей маленьких помещений
Отделка и оформление поверхностей поможет не только украсить интерьер, но и создать желаемый эффект расширения пространства. Контрастное оформление белого потолка с легким глянцем и темного пола станет оптимальным решением для небольшой жилплощади 44 кв метра. Подъем пола, или комбинирование различных материалов органично подчеркнут дизайн и раздел помещения на зоны.
В качестве отделочных материалов, чтобы декорировать несущие стены, используются камни, жидкие обои, фактурная штукатурка, лепнина. Продажа современных фактур и цветовых вариаций обоев позволяет легко создать красивое оформление. Несмотря на низкие потолки, нестандартный план помещений, допускается использовать натяжные, гипсокартонные потолочные конструкции. Органичные переходы многоуровневых вариантов помогут в зонировании даже проходной комнаты
Во время ремонта, выполняемого своими руками, особенно важно учитывать практичность и качество отделочных материалов
Стандартная планировка и размеры
«Хрущёвки» — это жилые помещения в панельных пятиэтажках, которые строились во времена СССР вплоть до 90-х годов прошлого столетия. В те годы правительство поставило перед страной задачу обеспечить каждую семью отдельной жилплощадью. Чтобы максимально ускорить этот процесс, массово возводилось мелкогабаритное жильё: 42, 43, 45 или 46 квадратов.

Несмотря на скромные размеры, такие квартиры в любом случае были более комфортными для проживания, нежели коммуналки.

Подобные дома строились по схожим проектам, поэтому «хрущёвки» во всей стране имеют свои типичные особенности, которые отличают их от любых других планировок:
- гостиная в большинстве случаев проходная;
- небольшая кухня площадью не более 6 кв. м.;
- совмещённый санузел;
- маленький коридор;
- наличие кладовки;
- на первых этажах отсутствует балкон.

Самой распространённой планировкой считается «книжка», она же признана самой неудачной. Проходная комната в таких домах играла роль столовой. В семьях с детьми одну комнату отводили под спальню малыша. В подобном пространстве было практически невозможно добиться уединённости. Чтобы разделить помещение, приходилось жертвовать частью комнатыНекоторые двухкомнатные квартиры строились по типу «трамвайчик». Такая планировка предполагала две расположенные друг за другом комнаты, напоминающие купе вагонов. Гостиная с балконом была проходной. Одной из самых удобных планировок была «распашонка», в народе её прозвали «бабочкой». Она предполагала, что два помещения разделяются кухней. Однако, этот вид «хрущёвки» встречается редко.
Современные жители выделяют следующие недостатки «хрущёвок»:
- небольшая площадь комнат;
- очень маленький коридор, не более 3 кв. м., в некоторых случаях он отсутствует вовсе;
- низкие потолки до 2,5 м;
- тонкие стены и, как следствие, низкий уровень звукоизоляции.
Цветовые вариации
Белый цвет, несомненно, выступит идеальной основой для дальнейшего оформления, зрительно расширяя пространство, создавая эффект уюта, чистоты. Привнести нотки тепла и натуральности поможет выполнение стены в цвете, имитирующем фактуру, тон натурального дерева. Особенно актуален выбор для эко интерьеров.
Ограниченный размер кухни хрущевок не позволяет обустроить в ней полноценную обеденную зону. Можно применить контрастное сочетание желтых и фиолетовых красок в гостиной, в области расположения обеденного стола, стульев, выполнив оформление своими руками. Обои с мелким цветочным принтом или географическим рисунком на поверхности стены, положительно повлияет на восприятие пространства, поможет сделать его шире, просторнее.
Эффективно применяется прием оформления одной стены в контрастном или яркую вертикальную полоску фото. Таким образом, можно выделить одну из зон, или выполнить визуальное разграничение пространства. В красках должна превалировать лаконичность, простота. Рекомендуется выбрать три основных интерьерных цвета, после чего использовать для оформления игру их оттенков. Цвет мебели должен органично сочетаться с общим оформлением.
Продумываем перепланировку
Собственники бюджетных двушек хрущёвского периода обычно решаются на перепланировку квартиры. Это правильное решение, поскольку переделка позволяет отделить комнаты, увеличить свободное пространство. Перестройка даёт возможность зонировать помещение и изолировать детей с родителями друг от друга.
Самый распространённый вариант — это объединение комнаты и кухни. Современные хозяйки зачастую приходят в ужас от малых габаритов кухни, на которой сложно разместить даже самые необходимые принадлежности (кухонные шкафчики, холодильник и плиту).
Если снести стену между двумя помещениями, то можно получить просторную кухню-гостиную, а вторую комнату оставить как спальню. Такое решение выполняет сразу несколько задач:
- расширяет кухонное пространство;
- увеличивает гостевую зону;
- высвобождает свободное место, которое можно оригинально меблировать.

Необычным и смелым решением станет снос всех внутренних стен, за исключением санузла. На выходе получается просторная квартира-студия, её оформление может быть самым стильным и разнообразным. Чтобы зонировать такое помещение, можно прибегнуть к одной из следующих техник.
- Монтаж облегчённых перегородок.
- Подбор разных отделочных материалов, к примеру, в гостиную уложить ламинат, в кухонную зону — плитку. Очень эффектно смотрятся жилые помещения, в которых между отдельными зонами установлены облегчённые раздвижные конструкции. При их раскрытии создаётся иллюзия квартиры-студии. В случае необходимости створки закрывают и таким образом получают изолированные помещения. Квартиры-студии без таких перегородок оптимальны для проживания одинокого человека или супружеской четы без детей, в домах с детьми такие варианты неэффективны.

Семьи, в которых имеется несколько детей, всё чаще прибегают к решению, позволяющему создать из «двушки» «трёшку». Конечно, в этом случае отдельные комнаты существенно уменьшатся в размерах, а одна из них, скорее всего, полностью лишится дневного освещения.

Планируя перепланировку в «хрущёвке», необходимо принимать во внимание особенности каждого помещения. Например, если гостиная будет проходной, то оборудовать в ней рабочий уголок вряд ли получится, поскольку в этом случае нельзя будет добиться необходимой тишины и уединения
То же самое касается и спальни — это функциональное помещение требует интимной обстановки. Поэтому, строя и разбирая новые стены, обязательно следует предварительно продумать функционал комнат.
Почти каждая «хрущёвка», кроме квартир, расположенных на первом этаже, оборудована балконом. Чаще всего эта площадь используется как кладовка или склад. При желании можно отказаться от всех неиспользуемых предметов, расчистить дополнительное пространство и обустроить там небольшую комнату — это может быть рабочий кабинет или место отдыха. Для этого придётся остеклить эту зону и утеплить.
Интересные идеи дизайна
Размеры хрущевской «двушки», конечно, не позволят создать роскошный интерьер в стиле ампир, но это и не требуется в малогабаритной квартире. Лучше ориентироваться на современные минималистические стили – скандинавский, хай-тек, средиземноморский. В этих интерьерах максимум простора сочетается с простой утилитарной мебелью удобных лаконичных форм, что освободит пространство.
При выборе варианта модернизации следует учитывать потребности домочадцев, комфортно ли будет им в одном большом помещении и спать, и отдыхать, и учить уроки, и принимать гостей. Может лучше оставить изолированные комнаты. Если выбран способ объединения, то есть определенные методы в отделке, которые нужно знать.


Для пространственного зонирования «распашонки» очень популярны раздвижные двери. Они могут изолировать зону спальни или кухни при необходимости. Дизайн дверей в одном помещении должен быть выполнен в одном стиле, вплоть до входной двери. если она тоже включена в общее пространство. Лучше, если они будут одного цвета со стенами, ведь несколько дверей в одной комнате могут дробить общую панораму интерьера.


Шкафы лучше устанавливать во всю стену тоже с раздвижными дверьми, это сэкономит пространство. Отделку шкафов предпочтительней выбирать светлую или под цвет обоев, это визуально увеличит комнату, оформление дверей и фасадов корпусной мебели должны гармонировать между собой. Темный цвет стоит использовать для конструктивных элементов, это хорошо организует пространство.
Для стен и потолков лучше выбирать белые, бежевые или насыщенные оливковые, розовые, голубые тона. Крупный рисунок на обоях или потолке лучше использовать в акцентных местах, для обозначения какой-то зоны, например над обеденным столом. Не надо все стены оклеивать обоями с крупным орнаментом. Это зрительно уменьшит масштаб комнаты.


Глянцевые поверхности мебели или потолка визуально расширят пространство. Многоуровневый потолок, с сочетанием глянцевой и матовой поверхности в разных уровнях, тоже один из способов отделения одной зоны от другой.
Арки и стеллажи традиционно применяются для разграничения комнаты. Красиво и стильно оформленный стеллаж не только отделит рабочую зону от гостиной, но и станет художественным акцентом комнаты.
В отделке пола для обозначения какой-то зоны применяют разные материалы, например – комбинируют плитку и паркет, камень и плитку. Также делают разноуровневый пол, чтобы отделить спальню от гостиной или кухню от зала.
Для малогабаритных квартир конструкторы создали широкий выбор трансформирующейся мебели. Кровать с дополнительным выдвижным спальным местом экономит пространство.





