Необходимая мебель для бани

Комната отдыха (предбанник)
Если это отдельная комната, то ограничений в выборе материала мебели нет. А если она совмещена с душевой, предпочтение стоит отдать влагостойкому сырью с минимумом текстиля.
Часто в бане ставят деревянную мебель, оформленную в стилях кантри, шале, прованс.

Для небольших комнат подходят откидной стол, скамейки или табуретки, а также кухонные уголки из дерева.

При наличии места можно поставить в комнату отдыха кожаный диван с креслами и стеклянным столиком, а возле камина – кресло-качалку.
Парилка
Основная мебель парной – полки.
Делают их из дерева, преимущественно лиственных пород. В их составе нет смол, которые нагреваются при высокой температуре и могут спровоцировать ожоги.

Для создания полок хорошо подходят пиломатериалы:
- липы;
- осины;
- ольхи;
- дуба.
Полки должны быть такими, чтобы на них было удобно сидеть.
Рекомендуемые размеры следующие:
- длина — от 1,4 до 2 м;
- ширина — 40-150 см;
- расстояние от пола до нижней полки — 20 см;
- от верхней полки до потолка — не менее 1 м.
Располагаться полки могут по-разному:
- Ступенями. Вдоль стены в два или три яруса.
- В форме буквы Г. Первая и последняя лавка крепятся к одной стене, средняя – к боковой. Плюс принцип купе ‒ две полки идут друг над другом, верхняя из них поднимается.

На фото выше примеры разного крепежа полок в парной.
Прочие помещения бани
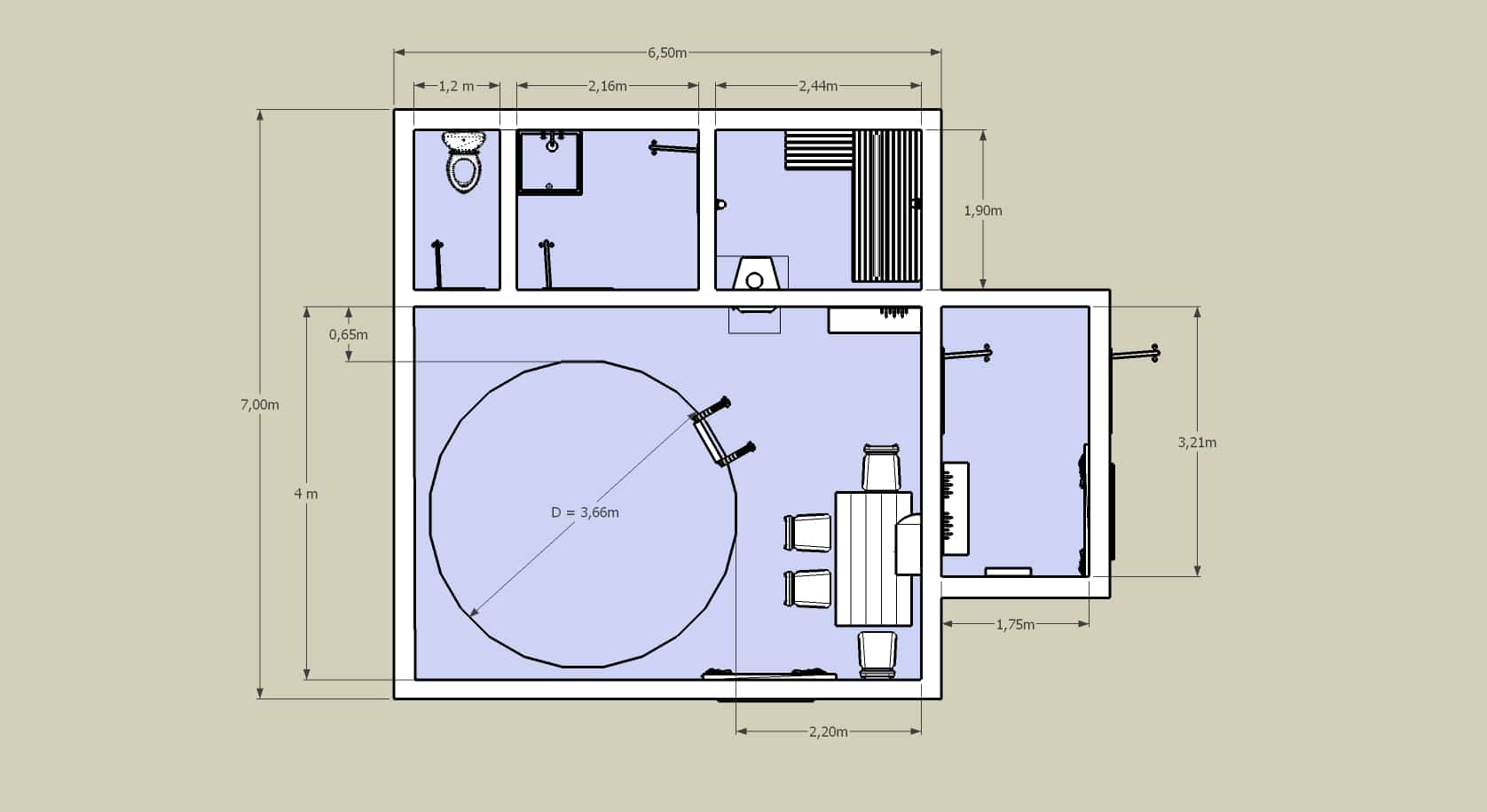
- Мойка.
Эта комната должна иметь больший размер по сравнению с парной. Здесь, как правило, располагают тазики, баки с водой, душ или душевые кабинки, а также различные полочки и скамейки, занимающие немало места. Поэтому для комфортного пребывания нескольких человек потребуется не менее 6 м².
- Комната отдыха.
Ее размеры зависят от общих размеров бани и от того, для каких целей вы планируете ее использовать. В любом случае пространство помещения должно быть достаточным, для того чтобы в нем можно было комфортно отдохнуть за чашкой чая одновременно нескольким людям.
В ней должны поместиться небольшой стол, кресла или диван – в среднем это не менее 8-9 м² площади.
- Бассейн и санузел.
Если ваши возможности и площадь земельного участка позволяют построить баню с отдельным помещением для бассейна, то получится настоящий банный комплекс! Помещение с бассейном займет не менее 10 м².

Планировка бани с бассейном
Мебель для бани
При выборе мебели особое внимание уделяется следующим нюансам:
- Древесина. Материал должен отличаться низкой степенью теплопроводности, плотностью, а также содержать минимальное количество смол. Древесина должна иметь устойчивость к высоким температурам и повышенному уровню влажности. Идеальными породами являются липа и осина.
- Расстановка полок в парилке. Поскольку они предназначены не для сиденья, их размеры составляют: 1,4 – 2 м – длина; 0,4 – 1,5 м – ширина, а промежуток между ступенями варьируется от 40 до 60 см. Первый ярус располагают на уровне 20 см и выше от пола, а верхняя ступень – не более 1,2 м до потолка.
- Скамейки в парной. Существует три способа расположения полок: ступени (вдоль стены размещают от двух до трёх ступеней), г-образный тип (первая и последняя ступени устанавливаются на одной стене, а средний ярус на боковой) и купе (две полки размещаются друг над другом, верхнюю из которых можно поднимать).
Видео описание
Какие особенности строительства бани и домов ручной рубки? Как правильно выбрать материалы и на что обратить внимание? Ответы смотрите в этом видео:
https://youtube.com/watch?v=Sskz64a8AJg
Особенности банных помещений
Подводя итоги, следует отметить некоторые хитрости банной атмосферы. Например, пар недостаточной влажности может привести к охлаждению гостей в парном помещении. Так, при относительном его уменьшении на 30% влага будет значительно быстрее испаряться из кожи человека, что приведёт к остыванию тела.
Именно для контроля этого процесса в парильной вешают сразу два градусника – один стандартный, а второй имеет кончик, обмотанный влажной тканью, что позволяет показывать температуру кожного покрытия человека, который находится в парилке.
Термометр для использования в банеИсточник oglasi.svet24.si
Заключение
Подбор проекта парной зависит от количества посетителей, которые будут одновременно принимать банные процедуры, эффективности и размеров печи, а также ваших личных предпочтений. Для эффективного использования пространства парной максимально уменьшается площадь пола в пользу пространства для лежаков и полок.
Каждый базовый вариант парилки можно скорректировать под индивидуальные потребности и оформить в едином стиле с остальными постройками на участке.
Основы банной эргономики
На самом деле в бане только одно специфическое помещение, все остальные можно рассматривать как аналоги известных жилых помещений. Поэтому говорить здесь мы будем только о парилке.
Итак, что собой представляет парилка и как организуется пространство в ней?
Чаще всего мы имеем дело с парной либо русской, либо финской бани. Они разные. Они отличаются не только температурно-влажностными режимами, но и способами их достижения. А это значит, что одной и той же печи скорее всего (не всегда, но часто) будет недостаточно, чтобы воспроизвести оба режима. Отличаются и системы вентиляции, и конструкции полков.
Кроме того, объем помещения нагревается неоднородно, в нем можно выделить зоны с разной степенью нагрева. Размеры этих зон и температура в них зависит от конвекции тепловых потоков, а она определяется расположением вентиляционных отверстий.
Но об этом вы найдете много материала на нашем сайте, мы подробно освещали каждую из тем для того и другого типа бань. Если же говорить об эргономике, то предметом ее будет человеческое удобство, обусловленное анатомическими особенностями человека.
А можно сказать так: эргономика решает вопрос о том, как приспособить мебель и прочее окружение к нашей анатомии. Потому что сидеть, лежать, наклоняться, приседать и т.д. нам удобно только в том случае, если учтены наши габариты и возможности.

На этой схеме показано, как обычно сидят или лежат в бане. Вы видите, что минимальная ширина сиденья должна быть не менее 40 см, а 60 см в глубину достаточно для того, чтобы сидеть, удобно отклонившись к стенке. Глубины сиденья в 90 см уже достаточно для того, чтобы сидеть на нем, подобрав под себя ноги.
Так вот, финны бы сделали три яруса полков с шириной 40 см на «ступеньку». Следовательно, в глубину их полок занимал бы всего лишь 3х40=120 см. Длина его бы варьировалась в зависимости от габаритов помещения и количества людей в парной.
Почему они бы сделали так? Потому что в сауне принято сидеть на полке, а не лежать. Они сидят и потеют, вот и вся банная процедура. Температура при этом достигает 70-90 градусов, влажность — 5-15%.
Воду на камни они льют очень мало, пар у них густой, как из чайника, а вентиляция работает так, что всегда есть, чем дышать — кислород постоянно прибывает из вентиляции и быстро нагревается от печки.
В русской бане полок шириной 40 см не годится. Потому что на нем принято лежать. А другой человек должен парить лежащего. Минимальная годная ширина составляет 60 см. Но лучше отталкиваться от величины между свободно лежащими вдоль тела руками паруемого. Только в этом случае ему будет действительно комфортно лежать.
СОВЕТ! Замерьте эти габариты у самого широкого из частых посетителей вашей бани и делайте полок по нему.
Русский полок — это лежак, часто двухуровневый, первый уровень которого может использоваться как ступенечка для парующего, а может быть сиденьем. Поэтому ему можно быть узким — 30-40 см в глубину. А второй уровень как раз широкий, под лежащего человека. Длина его, понятное дело, должна быть соответствующая — 180-220 см.

Полок в русской бане
Возможно, вас привлекут варианты с упорами для ног, но тут надо исходить из конкретики вашей бани, попробуйте сами рассчитать такой вариант.

На заметку! На нашем сайте много других материалов, проясняющих разнообразные нюансы относительно парилок. Возможно, вам будет интересно узнать об устройстве русской парилки, ее дизайне, планировке банного пространства в целом, оптимальных размерах парильного помещения, а также об его отделке — обшивке, обработке, утеплении, об особенностях электропроводки и устройстве пола.
Дополнительные параметры
Чтобы определить оптимальный размер парилки в бане, нужно продумать, в каком положении парильщики будут находиться во время процедур – сидя или лежа. Кроме того, могут быть предусмотрены иные варианты – сидя на полке, согнув ноги, или лежачее положение с ногами на подставках. Следовательно, значительным образом влияет на габариты парной расположение лежаков, их количество и размер.
Если речь идет о небольшой парной, рассчитанной на четверых посетителей, где полки позволяют, как сидеть, так и прилечь, стартовые размеры будут начинаться с 150×200 см.

Прибавив к этому значению площадь подходов к лежанкам и габариты печи-каменки, можно говорить о приемлемых размерах парилки.
В парных отделениях с принудительным вентилированием, как правило, не предусматривают никаких окон. Однако если такой системы нет, для проветривания и просушки парилки потребуется оконце с размерами 40×40 см. Его размещают в противоположной от печи стороне на уровне верхнего полка. Остекление делают двойным.
Несколько слов о бане
Чрезмерно большие габариты парилки, также как и слишком маленькие, будут создавать неудобства. На прогрев большого помещения будет уходить значительное количество топлива, что приведет неэффективному расходованию ресурсов. Так как любое пространство ограничено, то увеличение парилки повлечет за собой уменьшение остальных помещений, например, комнаты отдыха. Поэтому уже на стадии проектирования нужно позаботиться о том, какие будут оптимальные размеры для конкретной бани.
В расчет площади основной комнаты в бане берется не только предполагаемое количество человек, которое будет находиться внутри, но и размер печи. Рядом с ней должно оставаться достаточно пространства, чтобы никто не получил ожог или другое повреждение.
https://youtube.com/watch?v=kE2wo2tuFKs
Пример плана бани с парной и комнатой отдыха
Топливом служит газ, уголь, дрова, электричество. В каждом случае будет разная внутренняя компоновка. Больше всего места занимают кирпичные печи на дровах. Положительным качеством в этой ситуации служит то, что на них не нужно устанавливать дополнительную защиту от воздействия на стены, с ними тяжелее получить ожог.
Подбирая оптимальный размер парилки в бане, стоит брать в расчет то, в какой позе будут париться посетители:
- для позиции сидя потребуется минимум места;
- промежуточные положения полусидя/полулежа нуждаются в большем пространстве;
- значительного места требуют бани, в которых любят париться лежа.
Чаще всего оптимальный размер бани для 3 человек в сидячем положении ограничивается значениями 1,3х1,8 м. То же помещение бани для 4 человек понадобится расширить до 1,5х2,0 м. В эти габариты не включена печь. Под нее также нужно выделить место исходя из ее эксплуатационных характеристик.
Габариты полки (ширину) выбирают по тому, как большее время будут себя вести посетители:
- достаточно 0,4 м ширины от стенки для сидячего положения среднего человека;
- посидеть с поднятыми ногами на полке удастся на ширине около 0,8-0,9 м;
- принять полулежащую позицию получится с расстоянием до стены 1,5 м;
- во весь рост удастся полежать на лавке не менее 1,8 м, но чаще всего в таком случае располагаются уже вдоль стены.
Выбирая оптимальные размеры полки в бане, стоит учесть, что их устанавливают часто в несколько этажей.
- Наименьшая ширина у нижней ступени. Она используется для детей или в качестве подставки для банных принадлежностей.
- Вторую полку используют чаще всего, поэтому у нее наибольшая ширина.
- Высота от поверхности третьей полки до потолка не должна быть меньше метра, чтобы оставалась возможность там сидеть комфортно.
Высота между полками остается примерно 0,3-0,4 м. Доски на поверхности прибиваются с зазором в 3-4 мм для улучшения циркуляции воздуха.
Дверь из парилки всегда должна открываться наружу, чтобы обеспечить безопасную эксплуатацию бани.
Какой размер полок в парной нужно делать – советы из практики
При выборе подходящей для изготовления полков древесины следует обращать внимание на породы, не выделяющие смолу при нагреве, которая не поранит и не обожжет кожу. Оптимально для этого подходят лиственные деревья
Чтобы лежаки в парилке прослужили достаточно долго, их древесина не должна бояться высокой влажности и температуры (прочитайте: “Как сделать лежак в баню своими руками – советы мастера”)
Кроме того, стоит обращать внимание на степень ее теплопроводности
Желательно изготавливать полки из дерева с низкой теплоотдачей, которое не склонно к перегреву, не обожжет кожу человека, а, значит, на такой лежанке можно расположиться без прослойки в виде простыни.
Чаще всего скамьи в парилке изготавливают из липы, осины или абачи.
При условии правильной заготовки и выбора осиновых бревен, это дерево способно прослужить достаточно долго и не доставлять неудобств при уходе.
Липа признана одним из лучших видов древесины, используемой для производства мебели для бани.
Преимущества липовых досок состоят в следующем:
- удобство в обработке, красивый внешний вид, наличие приятного запаха дерева, создающего в парной особый микроклимат;
- способность сохранять приемлемую для кожи температуру и отсутствие темных пятен от пота;
- длительный срок эксплуатации деревянных изделий, без гнили, сколов и трещин, хотя первоначальный цвет может потемнеть.
Экзотическое дерево абачи, или африканский дуб, отличается невероятной устойчивостью к температурному и влажностному влиянию, хорошо переносит нагрузки. Поскольку степень теплопроводности у такой древесины очень низкая, оно очень медленно прогревается, следовательно, угрозы обжечься в парной, можно не бояться.
Стоит отметить, что абачи относится к весьма дорогостоящим сортам дерева, поэтому позволить себе такой материал может не каждый. Абачи поступает в точки продажи со светлым и темным цветом древесины. При условии предварительной обработки, это дерево долго остается в неизменном виде.
Что учесть при создании проекта
На дачных и загородных участках востребованы конструкции площадью от 15 до 25 квадратов. В эту категорию попадают бани 4 на 5, 3 на 5 и 5 на 5 метров. Владельцам, желающим поставить подобную баню на своем участке, при планировке надо будет продумать следующие вопросы:
Проект должен соответствовать участку, особенно, если у того небольшие размеры. Место выбирают, руководствуясь в первую очередь санитарно-гигиеническими и пожарными строительными нормами, и лишь потом своими предпочтениями
Важно выдерживать минимальные расстояния между объектами.
Выбор места строительства. Он также зависит от особенностей окружающей местности
Если, например, участок граничит с водоемом, удобнее всего поставить баню на берегу.
Планировка должна учитывать среднее число посетителей. В этом отношении баня 5 на 5 имеет преимущества в создании комфортного пространства.
При выборе места учитывают расстояние до жильяИсточник conceptualhouseplans.com
- Бюджет строительства. От него зависит, какие материалы, в том числе и отделочные, вы приобретете, какого размера будет парилка.
- Кто будет строить. Приглашение профессионалов увеличит бюджет строительства, но положительно повлияет на скорость появления бани, а также избавит от возможных ошибок.
Создаем дизайн-проект бани: размеры парной
Современные парные поражают разнообразием проектов. Фантазия дизайнеров, специализированных строительных фирм и частных строителей очень богата, поэтому сейчас можно встретить парные любой конфигурации, планировки и размера.
Конечно же, можно построить парилку на большее количество людей. Но тогда стоит учесть и такой момент, что строительство и обслуживание парной с большой площадью обойдется гораздо дороже.
Ну а если размер земельного участка и финансовые возможности позволяют, можно построить целый банный комплекс со множеством функциональных помещений и большой парной. Выбор только за вами!
Одним из главных помещений бани является парная. Для ее обустройства подбираются только высококачественные натуральные материалы. Размеры парилки зависят от нескольких факторов:
- Количество человек, на которое рассчитана парная.
Ее посетители должны себя комфортно и свободно чувствовать, располагаясь в различных положениях, лежа или сидя на полках.
- Тип печи.
Если вы намерены строить баню с железной печью, парилка должна иметь достаточную площадь. Лучистое тепло твердого топлива настолько сильное, что оно может нагреть воздух до обжигающей кожу температуры.
Размеры помещения должны позволять располагать полки на безопасном расстоянии от нагревательных элементов.
Что касается электрической печи, то большие габариты парной приведут к значительным затратам на электроэнергию, а это вряд ли окупится каким-либо комфортом.
- Конфигурация и количество полок.
Если планируется обустройство помещения парной 3-мя полками, то нижняя должна быть самой узкой. На ней, как правило, сидят дети или размещаются различные банные принадлежности.
Верхняя полка должна располагаться на высоте не менее 1 м от потолка, чтобы с нее было удобно вставать. Да и сидеть наверху можно было, не упираясь головой в потолок. Расстояние между полками стандартное, выдерживается в 30 – 45 см.
Если строится баня на 2 человека или более, позаботьтесь о том, чтобы в ней не было неудобных мест, которые могут достаться одному из ваших гостей, что заставит их чувствовать себя не очень комфортно.
Специалистами был рассчитан оптимальный объем парилки:
- Высота потолков – около 2,1 м.
Если высоту помещения сделать ниже, находиться в нем будет не очень комфортно. Да и пар в банях с низкими потолками быстрее испаряется через вентиляционные отверстия.
Слишком высокие потолки делать бессмысленно, так как пар будет подниматься к ним, не давая нужного эффекта. Плюс большие затраты на отопление.
- Площадь помещения.
Одна из сторон парилки должна быть не менее 2 м. Тогда размер полок будет позволять не только сидеть, но и лежать на них, выпрямившись в полный рост.
Стандарты высоты потолков в бане, сауне

Фото: расчет высоты полоков в финской сауне и русской бане Основной критерий высоты потолков в бане – максимальный рост отдыхающих, поэтому минимальный показатель высота потолка – 2,1 м, оптимальный (для удобного размаха веником) – 2,5 м.
Чтобы париться сидя, к уровню верхней полки добавляют 1 м. Для массажных процедур с веником придется прибавить еще полметра. Уровень верхней полки делается выше, чем слой камней на печке.
Порог перед входом в парилку делается высоким, хотя бы на 10 см выше уровня пола. Так пар будет лучше и дольше удерживаться внутри комнаты.

В сауне подход к определению оптимальной высоты несколько другой. Здесь идет равномерная циркуляция воздушных потоков снизу-вверх и не нужно размахивать веником. Отдыхающие парятся в сидячем положении.
Внутренне оформление парилки
При покупке или изготовлении предметов мебели для бани необходимо принимать во внимание следующие нюансы:
- Выбор древесины. Для этого подойдет исключительно плотный, с низким показателем теплопроводности материал, содержащий незначительное количество смольных веществ. Дерево должен быть устойчивым к высоким температурам и повышенной влажности. Данным требованиям идеально соответствует липа, осина и африканское дерево абаши.
- Линейные параметры полок в помещении парилки. Скамейки в этом помещении не предназначаются для сиденья, поскольку на них посетители лежат, приподняв свои ноги выше головы. Поэтому размеры полков должны быть рассчитаны на то, что человек может вытянуться в полный рост или, на крайний случай, полулежать. Обычно скамья имеет такие размеры: длина 140 –200 сантиметров, ширина — 60, 90 или 150 сантиметров, расстояние между соседними ступенями – от 40 до 60 сантиметров. При этом нижний ярус располагают не ниже 20 сантиметров от напольной поверхности, а верхний – не более 120 сантиметров до потолка.
- Расположение скамеек в парной. Имеется три способа положения полок (см. фото). Первый из них – ступени (вдоль стены устанавливают 2 -3 ступеньки). Второй вариант – Г-образный (верхнюю и нижнюю ступень располагают на одной стене, а на боковой стенке – среднюю). Третий способ получил название «Купе». Он предусматривает размещение двух полок друг над другом, при этом верхнюю полку можно поднимать.
Для комфортного передвижения по полу парной предусматривают использование подставок под ноги и подголовники из дерева (подробнее: «Как сделать подголовник в баню – проверенные способы»).
На микроклимат в парной влияет особенность нагревательной конструкции. Вне зависимости от того, делается выбор печи для маленькой парной или просторного помещения, площадь излучающих тепло поверхностей должна быть максимальной. Оптимальным решением будет кирпичная печь, способная обеспечить равномерное распределение тепловой энергии в парилке.
Особенности банных помещений
Подводя итоги, следует отметить некоторые хитрости банной атмосферы. Например, пар недостаточной влажности может привести к охлаждению гостей в парном помещении. Так, при относительном его уменьшении на 30% влага будет значительно быстрее испаряться из кожи человека, что приведёт к остыванию тела.
Именно для контроля этого процесса в парильной вешают сразу два градусника – один стандартный, а второй имеет кончик, обмотанный влажной тканью, что позволяет показывать температуру кожного покрытия человека, который находится в парилке.
Термометр для использования в банеИсточник oglasi.svet24.si
Габариты предбанника и комнаты отдыха
Предбанник представляет собой специальную раздевалку, которая расположена непосредственно перед парной или моечной. Некоторые проекты предусматривают совмещение предбанника с комнатой отдыха.
В предбаннике посетители раздеваются и подготавливаются к проведению основных процедур, а также отдыхают после мытья.
В большинстве предбанников расположены скамьи, стулья, зеркала и вешалки для одежды. Некоторые оснащаются компактными бассейнами для проведения термических процедур. Для любителей массажа может быть установлен специальный топчан. Здесь же находится всевозможная утварь для оздоровительных процедур – ведра, ковши, топливо для каменок.
В средней бане предбанник имеет следующие габариты – 20 кв.м., в малогабаритных строениях – до 6 кв.м.

Отдельную комнату для отдыха рекомендуется обустраивать в средних и больших строениях. Некоторые проекты предусматривают наличие открытых или закрытых террас, которые в большинстве случаев используются в качестве комнат отдыха.
Для компании из 4 человек достаточно комнаты отдыха на 8 кв.м. В ней вполне может уместиться компактный столик, стулья и даже раскладной диван. Дополнительно можно оборудовать место для проведения чайной церемонии. Для компаний на 6–10 человек лучше предусмотреть помещение размером до 15 кв.м.
Высота дополнительных помещений
На то, какие размеры бани получатся в итоге, влияет высота дополнительных помещений и этажность бани.
В комнатах, моечной и раздевалке допустим диапазон высоты потолков 2,4 — 2,7 м. При этом напольное основание предбанника и комнаты отдыха занижается минимум на 10 см относительно парной. Пол моечного отделения также занижают относительно других помещений на 6-10 см – это поможет предотвратить утечку воды за пределы мойки.
Чтобы определить внешнюю высоту бани, нужно учитывать толщину материала для строительства, толщину утеплителя, высоту фундамента или свай, если они предусмотрены.
Необходимая мебель для бани

Комната отдыха (предбанник)
Если это отдельная комната, то ограничений в выборе материала мебели нет. А если она совмещена с душевой, предпочтение стоит отдать влагостойкому сырью с минимумом текстиля.
Часто в бане ставят деревянную мебель, оформленную в стилях кантри, шале, прованс.

Для небольших комнат подходят откидной стол, скамейки или табуретки, а также кухонные уголки из дерева.

При наличии места можно поставить в комнату отдыха кожаный диван с креслами и стеклянным столиком, а возле камина – кресло-качалку.
Парилка
Основная мебель парной – полки.
Делают их из дерева, преимущественно лиственных пород. В их составе нет смол, которые нагреваются при высокой температуре и могут спровоцировать ожоги.

Для создания полок хорошо подходят пиломатериалы:
Полки должны быть такими, чтобы на них было удобно сидеть.
Рекомендуемые размеры следующие:
- длина — от 1,4 до 2 м;
- ширина — 40-150 см;
- расстояние от пола до нижней полки — 20 см;
- от верхней полки до потолка — не менее 1 м.
Располагаться полки могут по-разному:
- Ступенями . Вдоль стены в два или три яруса.
- В форме буквы Г . Первая и последняя лавка крепятся к одной стене, средняя – к боковой. Плюс принцип купе ‒ две полки идут друг над другом, верхняя из них поднимается.

На фото выше примеры разного крепежа полок в парной.
Комната отдыха или предбанник
Предбанник — это последняя комната, которая также должна быть в любой классической русской бане. В ней вы сможете отдохнуть после парных процедур, поговорить со своими друзьями, выпить лечебный травяной чай.
Помимо этого, не стоит забывать и о главном предназначении предбанной комнаты, а именно температурный барьер. Все дело в том, что не рекомендуется выходить на улицу распаренным, поскольку так вы можете заболеть, а комната отдыха позволяет привести свою температуру тела в норму перед выходом на улицу.
Если вы планируете париться небольшой компанией, состоящей из 3-4 человек, то оптимальные размеры предбанника составляют 1,3х3 метра. Этой площади хватит чтобы поставить стол, лавки, повесить вешалку для одежды, а также разместить небольшой запас дров.
Варианты бань из бруса
Строительные организации предлагают желающим обзавестись собственной парной разные проекты деревянных бань. Это небольшие бани, которые имеют только предбанник, раздевалку и парилку, просторные, которые дополнительно включают душевую, комнату отдыха, отдельный санузел. Есть варианты двухэтажных бань, у которых вверху расположено жилое помещение. Такие парные можно использовать как дачный домик, отказавшись от строительства коттеджа.
По своей площади бани из бруса могут быть разные. Это и совсем небольшие строения размером 4х4 кв. м, большие – 10х5 кв. м, которые по площади могут соперничать с компактным жилым домом. Также есть парные, проектом которых предусмотрен балкон, мансарда, крыльцо и веранда.
Чем больше площадь и сложнее архитектура деревянной бани, тем она дороже. Но это не значит, что такое строение будет лучшим. Выбирать парную надо, учитывая следующие параметры:
- площадь участка, на котором будет стоять парилка;
- как часто люди планируют пользоваться парной;
- нужны ли владельцам дополнительные помещения;
- финансовые возможности собственников участка.
Зависимость между площадью и количеством парящихся
Владелец бани обычно имеет представление о том, какое количество людей в парной для него было бы наиболее приемлемым, но обычно это все-таки от 2 до 5 человек, дальше начинается что-то вроде «общественной бани». При этом никаких реальных ограничений на количество гостей в вашей бане это не накладывает — если их больше, то париться будут «сменами».
В сущности, парная рассчитывается на обычное число парящихся. Но с учетом того, что парная не должна быть слишком большой — не только из соображений экономии
Важно найти баланс между мощностью печи, объемом помещения, вентиляцией (в сауне), качеством и количеством пара (в русской бане)
Планирование дверей и окон
Немаловажный параметр при обустройстве комфортной бани – размер дверей и окон.
При входе в парную рекомендуется устанавливать дверь с высоким порогом. Чтобы сохранить тепло, уровень пола в парной должен быть на 10-20 см выше, чем в других помещениях. Размеры дверей для парной – от 75 на 175 см. По правилам техники безопасности дверь должна открываться наружу, вне зависимости от того, ведет она в предбанник или наружу.
Следующий этап – выбор остекления. Открывающееся окно необходимо для улучшения вентиляции и быстрого проветривания парной. Размер окна в бане оказывает влияние дополнительные теплопотери, поэтому оптимальная высота окна в парилке будет 35-60 см, а ширина 35-70 см.
Планирование дверей и окон
Немаловажный параметр при обустройстве комфортной бани – размер дверей и окон.

При входе в парную рекомендуется устанавливать дверь с высоким порогом. Чтобы сохранить тепло, уровень пола в парной должен быть на 10-20 см выше, чем в других помещениях. Размеры дверей для парной – от 75 на 175 см. По правилам техники безопасности дверь должна открываться наружу, вне зависимости от того, ведет она в предбанник или наружу.

Следующий этап – выбор остекления. Открывающееся окно необходимо для улучшения вентиляции и быстрого проветривания парной. Размер окна в бане оказывает влияние дополнительные теплопотери, поэтому оптимальная высота окна в парилке будет 35-60 см, а ширина 35-70 см.


Сердце бани
Впрочем, оптимальный размер бани каждый ее владелец выбирает, как говорится: «на свой вкус и цвет». Кому-то по нраву огромные дворцы, в которых может найтись место не только бане, но и прочим удовольствиям, начиная от каминного зала и оканчивая огромным бильярдом. Кто-то наоборот, использует банное помещение чисто в узких утилитарных оздоровительных целях и не стремится к гигантизму. Но в любом случае вся баня, какой бы она не была: огромным дворцом или небольшим домиком строится вокруг одного-единственного помещения – парилки, которая и является ее сердцем.
Для того, чтобы определиться с оптимальным размером парилки в бане вам прежде всего необходимо решить, какое максимальное число людей вы в ней планируете размещать одновременно.
Чертежи для устройства парилки на всю кампанию
Что влияет на размеры бани
Чтобы высчитать оптимальный размер бани, следует учесть исходную площадь территории под строительство, частоту пользования баней, сезонность её работы, количество человек, которые будут посещать парилку одновременно.

Так, круглогодичная баня будет занимать большую площадь в сравнении с летней. Постройка зимней бани требует дополнительные сантиметры для утепления стен и потолка, а также наличие тамбура для удержания тепла.
Размер бани на участке целесообразно высчитывать исходя из доступной площади под застройку: чем меньше габариты участка, тем компактнее должна быть баня. Для небольшой бани достаточно будет обустроить парную и предбанник. Однако, допускаются варианты, где баня состоит только из парной.
Придать комфорт и уникальность бане могут дополнительные помещения: комнаты отдыха, душевые, санузлы, купели, бассейны, террасы. Если позволяет площадь, то дом с баней можно превратить в полноценное жилище.






