Монтаж инсталляции своими руками
Необходимые инструменты:
- Бур и перфоратор. Размер диаметра бура зависит от диаметра дюбелей. Хорошо подойдут для газобетонных стен и ракушечника анкерные болты.
- Два разводных ключа.
- Уровень и рулетка. Не стоит забывать — верхняя часть должна находиться на 45 мм от напольного покрытия.
- Герметик на основе силикона. На случай, если нет демпфирующей прокладки между унитазом и стеной.
Алгоритм работы
- Прежде, чем установить инсталляцию, отмечаем отверстия для крепежа, используя уровень и учитывая необходимые расстояния.
- С помощью перфоратора проделываются отверстия, устанавливается рама инсталляции.
- Производим подключение трубопровода с холодной водой к бачку. Вариант подключения нужно выбирать в зависимости от индивидуальных условий.
- Далее – подключение к канализации. Если возможно – врезку в канализационный стояк сделать наименьшей длины.
- После всех подключений можно зашить инсталляцию. Для этого можно использовать влагостойкий гипсокартон.
- Ставится заглушка на место кнопки слива.
После проделанной работы можно выкладывать плитку или кафель. Спустя сутки после облицовки кафелем можно устанавливать унитаз:
- Подгоняются канализационные и сливные трубы.
- Подвешивается унитаз.
- Можно установить демпфирующие прокладки между стеной и унитазом или применить силиконовый герметик.
- Затягиваются все крепления.
- Подключается кнопка слива.
https://youtube.com/watch?v=guAwylWPOcQ
Монтаж чаши подвесного унитаза
Завершающим этапом установки навесного унитаза с инсталляцией является установка на намеченное место чаши и монтирование панели смыва. Продолжать работы можно только дождавшись полного высыхания плиточного клея.
Чаша подвесного унитаза навешивается и закрепляется на специальные длинные болты. Выходное отверстие соединяется с патрубком канализации.
На панель управления устанавливается панель с кнопками, которые регулируют смыв.
Выполнив все работы нужно обязательно проверить работоспособность и герметичность. Открываем кран для подачи воды в бачок. Дождавшись полного заполнения резервуара, произвести смыв. Если отсутствуют какие-либо проблемы и течи, значит все манипуляции выполнены правильно.
В последнее время большую популярность в строительно-отделочном деле завоевывает тенденция установки подвесного унитаза. Данный вид водопроводно-канализационного оборудования наверняка присутствует в каждом жилище. В двух третях домов унитазы еще устанавливаются старым проверенным методом — посредством напольного крепления. Сегодня же, все чаще и чаще отдаётся предпочтение указанным подвесным конструкциям.
В чем же популярность изделия такого плана? Подвесные унитазы выглядят качественнее и современнее, что наверняка влияет на популярность товара. На установке унитаза такого формата удастся сэкономить немало денег. Для этого потребуется сделать одну вещь — научиться монтировать подвесной унитаз собственноручно. Это задача из разряда невыполнимых?
Отнюдь, такое по плечу всем, кто ознакомится с инструкциями и советами по установке. Первый шаг на пути к осваиванию процесса самостоятельного крепления подвесного унитаза — вникание в главные аспекты конструкции аппарата.
Почему так важно разобраться в особенностях устройства подвесного унитаза? Да потому что после этого гораздо вероятнее удастся преуспеть в процессе установки устройства. Итак, стандартно унитаз такого типа состоит из трех частей, к которым относятся:
1. Стальная рама (укрепленный элемент, так как он — основа для крепления наиболее крупного и тяжелого элемента унитаза, его чаши). Процесс установки подвесного унитаза настоятельно рекомендуется начинать именно с этой составляющей. Раму необходимо зафиксировать на стене, а также прикрепить к полу, таким образом, в будущем унитаз сможет полностью выдержать нагрузку в виде веса взрослого человека. По этой причине раму ни в коем случае нельзя крепить на непрочные стенки, примером которых являются гипсокартонные перегородки (есть вероятность, что крепление будет ненадежным и унитаз просто упадет).
2. Сливной бачок (изготавливается из пластика, от человеческих глаз скрывается в процессе монтирования посредством установки в самой стене). По своей форме не похож на бачок стандартного напольного унитаза, потому что обязан помещаться в довольно зауженном пространстве. На передней стенке бачка присутствует специальный вырез, необходимый для монтирования спускового механизма. В современных бачках подвесных унитазов почти всегда присутствует функция дозированного слива, благодаря которой можно выбирать объем воды, используемого для смывания.
3. Чаша (единственный не скрываемый от человека элемент конструкции подвесного унитаза. Также является наиболее активно эксплуатируемой его деталью. Стандартная форма данной составляющей: овальная, хотя сегодня на рынке подобной сантехнической продукции можно встретить и унитазы с чашами круглой, прямоугольной или даже треугольной формы).
Еще одной неотъемлемой составляющей конструкции подвесного унитаза является набор крепежных материалов, посредством которых и проходит установка и монтаж устройства к стене и полу. К числу таких материалов относится лента из тефлона, полиэтиленовый отвод, эластичный шланг, а также шпильки.
ТОП-5 инсталляций для унитаза
Рейтинг составлен с учетом мнения покупателей за 2018 год. Упомянутые модели заслужили высокие оценки как среди потребителей, так и среди специалистов-сантехников.
Grohe Rapid SL
Рамная инсталляция с надежным антикоррозийным покрытием от немецкой компании Grohe. Чтобы избежать подделок, следует найти на деталях логотип фирмы. Монтаж осуществляется с помощью 2х креплений на полу и 2х – на стене. Предусмотрена пневматическая смывная система, имеющая 3 режима, а также повышенная шумоизоляция. В комплект не входит унитаз, поэтому чашу рекомендуется покупать одновременно с инсталляцией, чтобы проконтролировать совпадение размеров.

Специалисты отмечают простоту монтажа Grohe Rapid SL, так как для подключения к коммуникациям не требуется дополнительных инструментов. Несмотря на довольно высокую цену, модель Grohe Rapid SL заняла самое высокое место в рейтинге.
Из недостатков потребителями отмечена высокая цена и вероятность купить подделку.
Cersanit Delfi S-Set-Delfi/Leon/Cg-w
Продукт от польского производителя Cersanit имеет узкую рамную конструкцию, отличается доступной ценой. В комплект входят подвесной унитаз, кнопка слива и крепления. Потребители отмечают большой запас для регулирования высоты.

Из недостатков в отзывах отмечается, что иногда западает кнопка смыва, крепежные шпильки подходят не всегда, а также существуют трудности с поиском запасных комплектующих для ремонта.
Geberit Duofix
Рамное изделие швейцарской компании Geberit с каркасом из сварного профиля со специальными перемычками. Удобна для монтажа в труднодоступных местах благодаря прочным крепежным шпилькам длиной 500 мм. Отмечается сравнительно невысокая цена и надежность модели, которая подходит для людей с большим весом до 150 кг.

Wisa-8050.4З5051
Модель от голландского производителя отличается качественной сборкой и удобными размерами. Потребители отмечают стабильную и надежную работу системы. В целом оборудование получило множество положительных отзывов. Предусмотрен выпуск модели как в пристенном, так и в угловом вариантах, возможна регулировка по высоте. В комплект входит унитаз, оснащенный крышкой с микролифтом.

Из недостатков можно отметить достаточно сложный монтаж из-за большего веса рамы каркаса и отсутствие поэтапной инструкции к нему.
AlcaPlast A100/1000 Alcamodul
Продукт чешской компании, блочная инсталляция по бюджетной цене. Востребована для установки в малогабаритных квартирах. Имеет двойной слив, компактный размер, выдерживает нагрузку 400 кг. Пластиковый бачок имеет изоляцию от конденсата.

Недостатки – установка только на несущей стене. Кроме того, модель не предназначена для людей с большим весом.
Выбрать инсталляцию, будет просто, если правильно определить приоритеты, взвесить плюсы и минусы дополнительных функций, которые предлагают различные производители. Сопоставив желаемое изделие с финансовыми возможностями, нетрудно при выборе отсечь все лишнее и выбрать товар, максимально подходящий целям и задачам покупателя.
Плюсы и минусы инсталляции для унитаза
Применение такой системы отличается удобством. С ее помощью можно установить сантехнику, чтобы она была спрятана за стеной с дополнительной шумо- и теплоизоляцией. Снаружи остается заметна сама чаша унитаза. Дополнительно можно установить гигиенический душ. Среди преимуществ выделяют следующие:
- Инсталляция для туалета компактная, что помогает использовать пространство по-максимуму.
- Практически бесшумная работа бочка, благодаря монтированию его в стену.
- Удобство в уборке помещения.
- Возможность оформления ванной комнаты любым дизайном.
- Экономия, благодаря двум кнопкам, обеспечивающим большой и малый поток воды.
- Конструкции практически долговечные, хорошо выдерживают нагрузку.

Среди недостатков указана стоимость, которая выше, чем установке стандартного унитаза. Кроме того, конструкция создает трудности при обнаружении протечки. Иногда при замене одной из частей конструкции требуется полный разбор стен для частичного или полного ремонта. При наличии таких недостатков инсталляция продолжает активно использоваться в квартирах и домах.
Рамочные
Конструкция реализована на раме из стали, оснащенной крепежом, обязательными соединениями, водосливными системами и канализационными соединениями.
- Типы инсталляций можно разделить по способам крепежа.
- Рамный, прикрепляемый к стене в 4 точках. Здесь придется искать вариант крепления только на капитальную стену.
- Разновидность, имеющая специальные опоры, устанавливаемая на напольное покрытие.
- Рамный, который прикрепляют и к стене и напольному покрытию на 2 крепления к каждой поверхности.


Отдельно выделяют рамные типы угловых инсталляций. Сегодня для удовлетворения потребностей покупателя торговые марки производят варианты инсталляций, которые закрепляют на стены, а также в угол. Это может сделать внешний вид помещения привлекательным и позволит использовать полезную площадь более эффективно. Разумеется, стоить такие конструкции будут дороже.
Правила установки
При выполнении качественной установки инсталляции на стену либо напольное покрытие придется подчиниться требованиям.
К ним относятся определение области производства монтажа, а также места укрепления напольных рамок.
- После этого необходимо закрепить устройство.
- Затем производят фиксацию на стене.
- Следующая операция – монтаж самого унитаза.
- Затем выполняют проверку по уровню установки.
- Последней операцией будет закрепление крышки стульчака.


Возможна ситуация, что не совсем ясно предназначение крепежных деталей
На это нужно обращать особое внимание. При установке следите за расположением монтажных крепежных лапок
При монтаже на внутреннем простенке это существенно. При неверном размещении лапок нагрузка распределяется неравномерно.
Это послужит в дальнейшем причиной деформации простенка, на который был смонтирован унитаз. Регулировать раму необходимо, пока нужную высоту не удастся зафиксировать. Отделку надо начинать только после завершения монтажа. Чашу унитаза крепят к готовой стене.


Процесс установки
Для того чтобы установить инсталляцию на стену или на пол, вам, возможно, понадобится инструкция. В ней вы найдете четкую последовательность действий, которая в основном сводится к следующему:
Инсталляция спрятана за стеной
- Определяется место для установки конструкции и происходит крепление рамы к полу.
- Устройство фиксируется на месте.
- Инсталляция крепится к стене.
- Монтируют унитаз.
- Проверка уровня конструкции.
- Крепление крышки унитаза.
Нужно быть внимательным к деталям крепежа, чтобы не перепутать их. Посмотрите, как располагаются лапки креплений. Если вы монтируете инсталляцию не на несущей стене, а на внутренней перегородке, то это будет иметь существенное значение в будущем. Если лапки были размещены неправильно, то нагрузка будет распределена неравномерно. Из-за этого может произойти деформация перегородки.
Раму нужно регулировать до тех пор, пока вы не получите желаемую высоту для размещения унитаза. Данный тип крепления обычно позволяет проделать это достаточно хорошо. Отделка проводится после того, как монтаж инсталляции был полностью завершен. Чаша унитаза помещается на готовую стену и крепится при помощи все тех же шпилек.
Виды и размеры инсталляций
По типу устройства бывают блочными, или навесными, и рамными. Эти варианты отличаются техническими характеристиками и особенностями монтажа. Не все инсталляции имеют одинаковые размеры.
Даже разные модели одной линейки бренда могут отличаться по габаритам. Еще есть отдельные решения, предназначенные для детей, людей с ограниченными физическими возможностями или крупным телосложением.
Блочные
Данные системы бюджетные, надежные и компактные, отличаются простотой монтажа. Установка возможна только на капитальную стену в существующую или предварительно подготовленную нишу.
Необходимо прочное бетонное основание, покрытое керамической плиткой. Высота большинства конструкций — 80 см-1 м, глубина — от 10 до 15 см.
Размеры блочной системы унитазов.
Рамные
Представлены в широком ассортименте и разных размерах. Это позволяет подобрать подходящий вариант для любого помещения.
Виды рамных инсталляций:
- напольная (опора приходится на ножки);
- настенная (каркас монтируется в стену);
- комбинированная (крепления расположены в четырех точках).
Главная часть рамной конструкции — стальной корпус с обработкой, предотвращающей коррозию. На основе закрепляются туалет, бачок и др. Чтобы уменьшить вес инсталляции, можно выбрать не керамические сантехнические изделия, а изготовленные из качественного пластика.
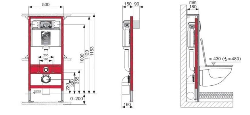
Средние размеры инсталляций:
- сливной бак — 50 х 9 см;
- высота конструкции — 1,2-1,4 м (20 см должны быть углублены в основание);
- ширина рамы — 50 см;
- глубина установки — 15-30 см;
- высота от пола до центра трубы слива — 22,9 см, до крепежных отверстий — 32 см;
- расстояние между крепежными отверстиями — 18 или 23 см.
Размеры рамной инсталляции.
Какие выделяются стандартные размеры инсталляций под унитаз
Стандартными размерами встроенного унитаза считаются следующие:
- глубина – 50-60 см;
- ширина – 30-40 см;
- высота – 35-45см.
Перечисленные параметры, хоть и считаются стандартными, но все равно, в зависимости от модели, они могут меняться, потому как сейчас производят отдельно небольшие унитазы для детей и чаши увеличенных размеров, рассчитанные на людей, имеющих инвалидность, крупное телосложение или большой вес. Отдельно следует сказать и о дизайнерских моделях, выполненных под заказ, которые могут иметь совершенно другие параметры.

Свободное пространство между передним краем унитаза и стеной должно составлять 50–60 см
Сливные бачки для инсталляций отличаются от стандартных моделей не только материалом изготовления, но и размером. Обычно толщина подвесного пластикового бачка находится в пределах 9 см, ширина – 50 см, а по высоте встроенный бачок чаще всего немного больше стандартного керамического варианта и в этом случае составляет 55-60 см.
Стандартным размером бачка считается объем 6-9 л, но из-за уменьшенных габаритов подвесных конструкций объем варьируется от 3 до 5 л
При установке очень важно учитывать размер короба под инсталляцию унитаза, поэтому перед покупкой нужно тщательно изучить все чертежи, а также качественно провести замеры. В случае приобретения инсталляции, которая не будет соответствовать необходимым параметрам, придётся корректировать размеры подготовленной ниши
Размеры инсталляции для установки зависят от выбранного типа. Например, рамная конструкция характеризуется глубиной 15-30 см (чаще это 15 см), высота изменяется от 85 до 140 см, максимальная ширина – до 60 см. Следует отметить и другие параметры:
- Расстояние от напольного покрытия до центральной точки канализационной трубы составляет 220 мм.
- Отверстия для крепежа отдалены друг от друга на 18-23 см.

Сливные бачки для подвесных унитазов изготавливают из пластика при толщине 85-95 мм, ширине до 500 мм
Минимальные размеры инсталляции для унитаза блочного типа обычно не сильно отличаются от рамных конструкций: глубина в этом случае составляет 10-15 см, высота – 1 м
При этом важно отметить, что в некоторых ситуациях осуществляется раздельный монтаж скрытого бачка и унитаза, который можно повесить напрямую к стене
Статья по теме:
Если покупать полный комплект инсталляции, то все крепежи и инструкции будут прилагаться к товару. Как правило, к навесной конструкции, требующей крепления к капитальной стене, в комплекте идёт несколько анкерных болтов, каждый из которых рассчитан на нагрузку до 400 кг, поэтому нет смысла сомневаться в прочности установки. Однако специалисты рекомендуют покупать комплектующие детали и все элементы для крепления в одном месте. В этом случае можно будет сразу удостовериться, что все размеры соответствуют друг другу. Это позволит избежать неприятных сюрпризов в процессе монтажа.

При установке унитазов параметры ниш в ванной комнате должны подходить под их габариты по чертежу
https://youtube.com/watch?v=ZrzbmTomT7U
https://youtube.com/watch?v=zUtTUHYZbkU
https://youtube.com/watch?v=WjbLMKON_s8
Система смыва
Существует несколько видов инсталляций, намного больше брендов и моделей, но у всех есть общий узел – система смыва, состоящая из панели с кнопкой, сливного устройства, бачка и обвязки.
Смывная панель бывает более 10-20 см в длину и ширину. Это обусловлено двойным функционалом: помимо управления спуском воды она декорирует ревизионное окно, предусмотренное для ремонта арматуры бачка. Кнопки выпускаются из пластика, металла или стекла.
Сливные устройства делятся на механические, пневматические и электронные. Механика работает по тому же принципу, что и в обычном унитазе, открывая клапан воздействием толкателя на систему передач. Благодаря простоте подобные узлы надежней прочих и дешевле.

Электронные конструкции оснащаются автоматическим приводом. Смыв запускается инфракрасным датчиком, когда человек покидает уборную, или прикосновением к сенсорной панели. Наличие второй опции в домашнем туалете желательно, ведь ершиком удобней пользоваться во время смыва или после. Недостаток этого варианта – высокая стоимость.

Сенсорная смывная панель Viega.
Также бывают экономичные системы – двухрежимные и с опцией «смыв-стоп». Первые позволяют выбор между сливом всей воды из бачка или половины (порой 2/3), вторые останавливают процесс повторным нажатием на любой стадии.
Иногда полезна опция, противоположная предыдущим. В ряде моделей предлагается режим непрерывного смыва, когда поток воды не останавливается автоматически, требуется ручное отключение.
Бачки скрытого монтажа изготавливают из пластика. Их внешний вид по понятным причинам не важен
При выборе надо обратить внимание, с какой стороны сделана подводка воды. У бюджетных моделей обычно лишь один вариант, у более дорогих возможны несколько
Хороший бачок имеет изоляцию от конденсата (это важно, чтобы в холодное время года за облицовкой не выросла плесень), а также достаточно просторное для проведения осмотра и ремонта ревизионное окно. Бывают модели без резервуара, осуществляющие смыв потоком, поступающим непосредственно из трубопровода, под контролем системы управления
Их глубина меньше за счет отсутствия бачка, но качество смыва зависит от напора в водопроводе
Бывают модели без резервуара, осуществляющие смыв потоком, поступающим непосредственно из трубопровода, под контролем системы управления. Их глубина меньше за счет отсутствия бачка, но качество смыва зависит от напора в водопроводе.

Какие выделяются стандартные размеры инсталляций под унитаз
Стандартными размерами встроенного унитаза считаются следующие:
- глубина – 50-60 см;
- ширина – 30-40 см;
- высота – 35-45см.
Перечисленные параметры, хоть и считаются стандартными, но все равно, в зависимости от модели, они могут меняться, потому как сейчас производят отдельно небольшие унитазы для детей и чаши увеличенных размеров, рассчитанные на людей, имеющих инвалидность, крупное телосложение или большой вес. Отдельно следует сказать и о дизайнерских моделях, выполненных под заказ, которые могут иметь совершенно другие параметры.

Свободное пространство между передним краем унитаза и стеной должно составлять 50–60 см
Сливные бачки для инсталляций отличаются от стандартных моделей не только материалом изготовления, но и размером. Обычно толщина подвесного пластикового бачка находится в пределах 9 см, ширина – 50 см, а по высоте встроенный бачок чаще всего немного больше стандартного керамического варианта и в этом случае составляет 55-60 см.
Стандартным размером бачка считается объем 6-9 л, но из-за уменьшенных габаритов подвесных конструкций объем варьируется от 3 до 5 л
При установке очень важно учитывать размер короба под инсталляцию унитаза, поэтому перед покупкой нужно тщательно изучить все чертежи, а также качественно провести замеры. В случае приобретения инсталляции, которая не будет соответствовать необходимым параметрам, придётся корректировать размеры подготовленной ниши
Размеры инсталляции для установки зависят от выбранного типа. Например, рамная конструкция характеризуется глубиной 15-30 см (чаще это 15 см), высота изменяется от 85 до 140 см, максимальная ширина – до 60 см. Следует отметить и другие параметры:
- Расстояние от напольного покрытия до центральной точки канализационной трубы составляет 220 мм.
- Отверстия для крепежа отдалены друг от друга на 18-23 см.

Сливные бачки для подвесных унитазов изготавливают из пластика при толщине 85-95 мм, ширине до 500 мм
Минимальные размеры инсталляции для унитаза блочного типа обычно не сильно отличаются от рамных конструкций: глубина в этом случае составляет 10-15 см, высота – 1 м
При этом важно отметить, что в некоторых ситуациях осуществляется раздельный монтаж скрытого бачка и унитаза, который можно повесить напрямую к стене
Статья по теме:
Если покупать полный комплект инсталляции, то все крепежи и инструкции будут прилагаться к товару. Как правило, к навесной конструкции, требующей крепления к капитальной стене, в комплекте идёт несколько анкерных болтов, каждый из которых рассчитан на нагрузку до 400 кг, поэтому нет смысла сомневаться в прочности установки. Однако специалисты рекомендуют покупать комплектующие детали и все элементы для крепления в одном месте. В этом случае можно будет сразу удостовериться, что все размеры соответствуют друг другу. Это позволит избежать неприятных сюрпризов в процессе монтажа.

При установке унитазов параметры ниш в ванной комнате должны подходить под их габариты по чертежу
Выбор инсталляции
Если разница между подвесными унитазами сводится по большей части к степени удобства их чистки, то неудачный выбор инсталляции, бачка и арматуры к нему может обеспечить вас проблемами на ближайшие десятилетия. Вспомните: инсталляция будет скрыта в стене, а доступ к коммуникациям и внутренностям бачка сильно затруднен.
В первую очередь стоит обратить свое внимание на именитых производителей. Это как раз тот случай, когда не грех переплатить за имя: это куда лучше, чем постоянно искать источник течей в стене или раз за разом приглашать сантехника для ремонта сливного бачка унитаза
Сантехники, специализирующиеся на установке подвесных унитазов, особенно выделяют немецких производителей – Vega, Geberit и Grohe. Впрочем, это вопрос личных предпочтений; ключевое – остановитесь на производителе с хорошей репутацией.
В большинстве случаев рамная инсталляция предпочтительнее блочной. Несмотря на тот факт, что рамные инсталляции для унитаза размеры имеют несколько больше, они часто позволяют сэкономить место в помещении за счет более рационального использования пространства.
Вспомните – они могут монтироваться в любой точке любого помещения, были бы подведены вода и канализация.
Рамная инсталляция дает больше простора фантазии дизайнера.
Преимущества и недостатки инсталляции
Тот факт, что унитаз будет закреплён на стене, не даст вам много сантиметров свободного пространства в комнате. Однако этот способ монтажа позволит получить такие преимущества:
- эстетизм помещения;
- простота уборки под унитазом;
- вариации в выборе точки установки узла.
По факту вы избавитесь от необходимости вручную удалять забившуюся пыль и бактерии в основании унитазного накопителя, как в случае с напольным аналогом. Все трубки и спускная арматура монтируются за специальной гипсокартонной перегородкой и декоративно облицовываются, поэтому не будут «мозолить глаза».
Встроить их можно в разные места. Это значит, что поместить унитаз вы сможете не в запланированной во время стройки точке, а в другом месте, подстроив под дизайн помещения. Поэтому визуально пространство в туалете расширится. Другие плюсы инсталляции:
- Все модели из сантехнического фаянса имеют стандартизованные крепления.
- Есть тихий режим слива.
- Бачок не покрывается конденсатом.
Важно правильно определить высоту монтажа унитаза
Недостатки инсталляции:
- Только сантехника с инсталляцией обойдётся вам примерно в 2 раза дороже классического варианта. Также она наверняка потребует ремонта в комнате.
- Нарушается принцип свободного доступа к коммуникациям.
- Инсталляция не может размещаться на стенах-перегородках.
Инструкция по установке
Инсталляция спрятана за стеной
Вот краткий порядок действий при установке инсталляции, далее сориентируетесь сами. Производители продумали всё до мелочей, поэтому сложностей не должно быть:
- Определяется место;
- Снимаются параметры;
- Крепится сама инсталляция к стене;
- Затем унитаз;
- Проверяется уровень конструкции;
- Устанавливается крышка от унитаза.
Будьте внимательны с деталями крепления
При снятии параметров, обратите внимание, что чертёж устанавливаемого изделия на стене был ровным
Как правильно подобрать размеры?
Это очень важный вопрос. Размеры должны быть подобраны в соответствии с габаритами унитаза и учитываться надёжность стены, параметры ниши.
Чтобы не было ошибок вы должны тщательно всё замерить. Если совершили ошибку, например, если размер инсталляции не соответствует габаритам унитаза. В таком случае придётся вернуть купленное обратно в магазин или обменять на подходящее. Наиболее чаще встречаются размеры в 112 см в высоту и 50 в ширину. Значит нужно подобрать подходящие для таких габаритов унитаз и нишу.
Как крепится подвесной унитаз
Как уже говорилось, для этого используется так называемая инсталляция – система крепления, которая заодно скрывает бачок, подводку для воды и выпуск канализации.
Какие инсталляции бывают?
Блочная инсталляция крепится только на капитальную стену. Она представляет собой пластиковый бачок с комплектом арматуры, пластины под крепление анкерными болтами и шпильки для крепления унитаза.
Подвесной унитаз с инсталляцией размеры в туалете будет иметь куда меньшие, если инсталляция будет утоплена в нишу в стене.
Основное достоинство конструкции: относительная дешевизна. Основной недостаток: как уже говорилось, инсталляция монтируется на капитальную стену. Легкие перегородки не подойдут в принципе.
Блочная инсталляция утоплена в капитальную стену
Рамная инсталляция. Это уже не бачок с парой шпилек для унитаза, а полноценная массивная рама – крепление, в котором притаился бачок и подводка воды и подключение унитаза к канализации. Рамная инсталляция может крепиться в двух или четырех точках к капитальной стене; может в двух точках к стене и в двух – к полу.
Наконец, она может опираться только на пол. Кроме того, рамная инсталляция может быть прямой, рассчитанной на монтаж у ровной стены или на открытом пространстве, и угловой – предназначенной для установки на стыке двух стен.
Основное достоинство: возможна абсолютная независимость от стен. Рамная инсталляция может быть установлена в любой точке любого помещения, лишь бы были подведены коммуникации. Недостаток: удобство обходится недешево.
Рамная инсталляция может обойтись без стены вообще





